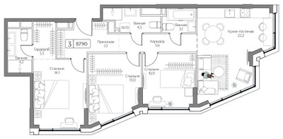
3-Комнатная квартира, 87 м², ID 633723
Обновлено Вчера, 18:59
61 900 158 ₽
711 496 ₽ / м2
- Срок сдачи
- III квартал 2027
- Застройщик
- нет данных
- Общая площадь
- 87 м2
- Этаж
- 19 из 27
- Корпус
- Aqua
- Отделка
- не указана
- ID
- 633723
Расположение
Описание
Трехкомнатная квартира, 87 м2 в ЖК Dream Riva (Дрим Рива) от
Продается трехкомнатная квартира в новостройке ЖК Dream Riva (Дрим Рива) за 61 900 158 р, находящаяся по адресу Москва, Южный (ЮАО), Нагатинский Затон, Нагатинская наб. Застройщик дома Regions Development. Квартира сдается в III квартале 2027 года в 7 минутах на машине от станции метрополитена Коломенская. Общая площадь квартиры - 87 м². Этаж 19. ID квартиры на СтройкиРУ 633723, назовите его когда будете звонить.

















