1-Комнатная квартира, 35.59 м², ID 740912
Обновлено Сегодня, 06:54
19 681 697 ₽
553 012 ₽ / м2
- Срок сдачи
- III квартал 2027
- Застройщик
- нет данных
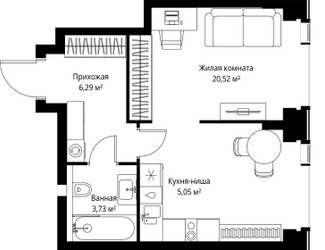
- Общая площадь
- 35.59 м2
- Жилая площадь
- 20.52 м2
- Площадь кухни
- 35.59 м2
- Этаж
- 19 из 48
- Отделка
- не указана
- ID
- 740912
Расположение
Описание
Однокомнатная квартира, 35.59 м2 в Мультиквартал СИТИДЗЕН от
Продается 1-комн. квартира в новостройке Мультиквартал СИТИДЗЕН стоимостью 19 681 697 ₽, по адресу Москва, Северо-Западный (СЗАО), Покровское-Стрешнево, ул Вишнёвая, д 7. Строится компанией MR Group. Квартира сдается в 2 квартале 2029 года в 9 минутах пешком от станции метро Тушинская. Общая площадь квартиры - 35.59 кв. м. Этаж 19 из 56. ID квартиры на СтройкиРУ 740912, скажите его когда будете звонить.





































