1-Комнатная квартира, 35.59 м², ID 740909
Обновлено Сегодня, 06:54
19 573 646 ₽
549 976 ₽ / м2
- Срок сдачи
- III квартал 2027
- Застройщик
- нет данных
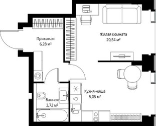
- Общая площадь
- 35.59 м2
- Жилая площадь
- 20.54 м2
- Площадь кухни
- 35.59 м2
- Этаж
- 16 из 48
- Отделка
- не указана
- ID
- 740909
Расположение
Описание
Однокомнатная квартира, 35.59 м2 в Мультиквартал СИТИДЗЕН от
Продается 1-комн. квартира в новостройке Мультиквартал СИТИДЗЕН по цене 19 573 646 ₽, расположенная по адресу Москва, Северо-Западный (СЗАО), Покровское-Стрешнево, ул Вишнёвая, д 7. Строится компанией MR Group. Квартира сдается в 2 квартале 2029 года в 9 минутах пешком от метро Тушинская. Общая площадь квартиры - 35.59 кв. м. Этаж 16 из 56. ID квартиры на СтройкиРУ 740909, сообщите его когда будете звонить.





































