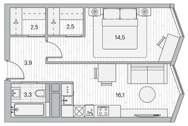
1-Комнатная квартира, 40.9 м², ID 587422
Обновлено Сегодня, 05:41
27 957 000 ₽
683 545 ₽ / м2
- Срок сдачи
- I квартал 2025
- Застройщик
- нет данных
- Общая площадь
- 40.9 м2
- Жилая площадь
- 16.1 м2
- Площадь кухни
- 15.6 м2
- Высота потолков
- 4.1 м
- Этаж
- 18 из 27
- Корпус
- 1
- Отделка
- Черновая
- Санузел
- Раздельный
- ID
- 587422
Расположение
Описание
Однокомнатная квартира, 40.9 м2 в ЖК Береговой-2. Жилой квартал на Москве-реке от
Продается 1-комн. квартира в новостройке ЖК Береговой-2. Жилой квартал на Москве-реке за 27 957 000 ₽, находящаяся по адресу Москва, Западный (ЗАО), Филёвский Парк, Береговой пр-д, д 2. Строится компанией Главстрой. Квартира сдается в 1 квартале 2025 года с черновой отделкой, в 24 минутах пешком от станции метрополитена Фили. Общая площадь квартиры - 40.9 кв. м. Этаж 18. ID квартиры на СтройкиРУ 587422, назовите его когда будете звонить.
Подробнее о ЖК Береговой-2. Жилой квартал на Москве-реке
Особенности
Ход строительства
Документация
- Проектная декларация № 77-002000, корпус 3 14.06.20231.75 мб, pdf
- Экспертиза проектной документации, корпус 3 28.12.2022606.33 кб, pdf
- Проект договора участия в долевом строительстве, корпус 3 25.10.2022848.42 кб, pdf
- Градостроительный план земельного участка, корпус 3 18.07.20224.81 мб, pdf
- Извещение о начале строительства, корпус 3 22.06.20206.45 мб, pdf
- Информация о выданных заключениях о соответствии застройщика и проектной декларации требованиям 214-ФЗ 77-002000 ЗОС/025/77-002000, корпус 3 15.04.2020758.66 кб, pdf
- Схема планировочной организации земельного участка, корпус 3 04.03.202021.03 мб, pdf
- Разрешение на строительство 77-208000-018637-2019, корпус 3 24.12.2019661.01 кб, pdf
- Проектная декларация № 77-002000, корпус 2 14.06.20231.75 мб, pdf
- Экспертиза проектной документации, корпус 2 28.12.2022606.33 кб, pdf
- Проект договора участия в долевом строительстве, корпус 2 25.10.2022848.42 кб, pdf
- Градостроительный план земельного участка, корпус 2 18.07.20224.81 мб, pdf
- Извещение о начале строительства, корпус 2 22.06.20206.45 мб, pdf
- Информация о выданных заключениях о соответствии застройщика и проектной декларации требованиям 214-ФЗ 77-002000 ЗОС/025/77-002000, корпус 2 15.04.2020758.66 кб, pdf
- Схема планировочной организации земельного участка, корпус 2 04.03.202021.03 мб, pdf
- Разрешение на строительство 77-208000-018637-2019, корпус 2 24.12.2019661.01 кб, pdf
- Проектная декларация № 77-002000, корпус 1 14.06.20231.75 мб, pdf
- Экспертиза проектной документации, корпус 1 28.12.2022606.33 кб, pdf
- Проект договора участия в долевом строительстве, корпус 1 25.10.2022848.42 кб, pdf
- Градостроительный план земельного участка, корпус 1 18.07.20224.81 мб, pdf
- Извещение о начале строительства, корпус 1 22.06.2020371.17 кб, pdf
- Информация о выданных заключениях о соответствии застройщика и проектной декларации требованиям 214-ФЗ 77-002000 ЗОС/025/77-002000, корпус 1 15.04.2020758.66 кб, pdf
- Схема планировочной организации земельного участка, корпус 1 04.03.202021.03 мб, pdf
- Разрешение на строительство 77-208000-018637-2019, корпус 1 24.12.2019661.01 кб, pdf






















