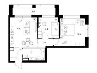
2-Комнатная квартира, 52.8 м², ID 640474
Обновлено Сегодня, 06:01
19 124 000 ₽
362 197 ₽ / м2
- Срок сдачи
- II квартал 2028
- Застройщик
- нет данных
- Общая площадь
- 52.8 м2
- Высота потолков
- 2.66 м
- Этаж
- 7 из 17
- Корпус
- 2.6/1.3
- Отделка
- не указана
- Санузел
- Раздельный
- ID
- 640474
Описание
Двухкомнатная квартира, 52.8 м2 в Бунинская набережная от
Продается двухкомнатная квартира в новостройке Бунинская набережная стоимостью 19 124 000 рублей, по адресу Москва, Новомосковский (НАО), Коммунарка, ул Александры Монаховой. Компания застройщик «ПИК». Квартира сдается в II квартале 2028 года в 18 минутах пешком от станции метро Потапово. Общая площадь квартиры - 52.8 м². Этаж 7. ID квартиры на СтройкиРУ 640474, скажите его когда будете звонить.
Подробнее о Бунинская набережная
“Бунинская набережная” - жилой квартал от “ПИК” в Новой Москве, на берегу Ивановского пруда. Над внешним видом квартала работало бюро “К+К”.
Инфраструктура и благоустройство
До станции метро “Потапово” — 18 минут пешком
Собственная набережная
Вокруг ЖК есть живописные парки: Бутовский лесопарк и природный заказник “Южное Бутово”
В пешей доступности магазины, школы, детские сады, поликлиники и PlayHub “Пирамиды” для прогулок, игр и занятий спортом
На первых этажах предусмотрено место под кафе, магазины и полезные сервисы
Среди лотов есть квартиры с видом на пруд и террасы на верхних этажах
Школы и детские сады в пешей доступности.
Страница ЖК >>


