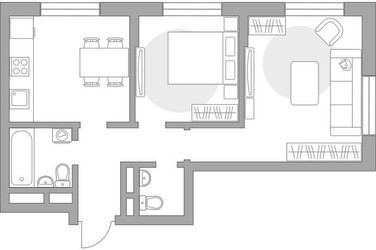
2-Комнатная квартира, 50.2 м², ID 690308
Обновлено Сегодня, 14:39
10 954 635 ₽
218 220 ₽ / м2
- Срок сдачи
- IV квартал 2027
- Застройщик
- нет данных
- Общая площадь
- 50.2 м2
- Жилая площадь
- 27.04 м2
- Площадь кухни
- 50.2 м2
- Этаж
- 4 из 4
- Отделка
- Чистовая
- ID
- 690308
Описание
Двухкомнатная квартира, 50.2 м2 в ЖК Живописный от
Продается двухкомнатная квартира в новостройке ЖК Живописный за 10 954 635 рублей, находящаяся по адресу Видное, деревня Жабкино, ул Троицкая. Компания застройщик Гранель. Квартира сдается в IV квартале 2027 года с чистовой отделкой, в 10 минутах на машине от станции метрополитена Аннино. Общая площадь квартиры - 50.2 м². Этаж 4 из 8. ID квартиры на СтройкиРУ 690308, назовите его когда будете звонить.
Подробнее о ЖК Живописный
Особенности
Ход строительства
Документация
- Проектная декларация № 50-003191, корпус 4.2 06.06.2023488.19 кб, pdf
- Проект договора участия в долевом строительстве, корпус 4.2 14.03.2023338.24 кб, pdf
- Извещение о начале строительства, корпус 4.2 02.02.2023247.47 кб, pdf
- Информация о выданных заключениях о соответствии застройщика и проектной декларации требованиям 214-ФЗ 50-003191 ЗОС/266/50-003191, корпус 4.2 17.06.2021139.76 кб, pdf
- Схема планировочной организации земельного участка, корпус 4.2 02.06.2021604.05 кб, pdf
- Градостроительный план земельного участка, корпус 4.2 02.06.20211.14 мб, pdf
- Разрешение на строительство RU50-21-18276-2021, корпус 4.2 27.04.2021169.96 кб, pdf
- Экспертиза проектной документации, корпус 4.2 13.04.20211.80 мб, xml
- Проектная декларация № 50-003191, корпус 4.1 06.06.2023488.19 кб, pdf
- Проект договора участия в долевом строительстве, корпус 4.1 14.03.2023338.24 кб, pdf
- Извещение о начале строительства, корпус 4.1 02.02.2023247.47 кб, pdf
- Информация о выданных заключениях о соответствии застройщика и проектной декларации требованиям 214-ФЗ 50-003191 ЗОС/266/50-003191, корпус 4.1 17.06.2021139.76 кб, pdf
- Градостроительный план земельного участка, корпус 4.1 02.06.20211.14 мб, pdf
- Схема планировочной организации земельного участка, корпус 4.1 02.06.2021604.05 кб, pdf
- Разрешение на строительство RU50-21-18276-2021, корпус 4.1 27.04.2021169.96 кб, pdf
- Экспертиза проектной документации, корпус 4.1 13.04.20211.80 мб, xml
- Проектная декларация № 50-003191, корпус 3 06.06.2023488.19 кб, pdf
- Проект договора участия в долевом строительстве, корпус 3 14.03.2023338.24 кб, pdf
- Извещение о начале строительства, корпус 3 02.02.2023247.47 кб, pdf
- Информация о выданных заключениях о соответствии застройщика и проектной декларации требованиям 214-ФЗ 50-003191 ЗОС/266/50-003191, корпус 3 17.06.2021139.76 кб, pdf
- Градостроительный план земельного участка, корпус 3 02.06.20211.14 мб, pdf
- Схема планировочной организации земельного участка, корпус 3 02.06.2021604.05 кб, pdf
- Разрешение на строительство RU50-21-18276-2021, корпус 3 27.04.2021169.96 кб, pdf
- Экспертиза проектной документации, корпус 3 13.04.20211.80 мб, xml




















