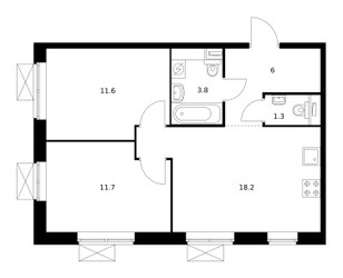
2-Комнатная квартира, 52.6 м², ID 651990
Обновлено месяц назад

20 084 000 ₽
381 825 ₽ / м2
- Срок сдачи
- I квартал 2026
- Застройщик
- нет данных
- Общая площадь
- 52.6 м2
- Высота потолков
- 2.62 м
- Этаж
- 4 из 24
- Корпус
- 6.1
- Отделка
- не указана
- Санузел
- Раздельный
- ID
- 651990
Расположение
Описание
Двухкомнатная квартира, 52.6 м2 в ЖК Волжский Парк от
Продается 2-комн. квартира в новостройке ЖК Волжский Парк стоимостью 20 084 000 ₽, по адресу Москва, Юго-Восточный (ЮВАО), Текстильщики, 1-й Грайвороновский проезд, д 3. Строится компанией «ПИК». Квартира сдается в 1 квартале 2026 года в 22 минутах пешком от станции метро Текстильщики. Общая площадь квартиры - 52.6 кв. м. Этаж 4. ID квартиры на СтройкиРУ 651990, скажите его когда будете звонить.
Подробнее о ЖК Волжский Парк
Особенности
Ход строительства
Документация
- Проектная декларация № 77-002728, корпус 5.2 06.06.20231,000.28 кб, pdf
- Проект договора участия в долевом строительстве, корпус 5.2 29.12.2022169.91 кб, pdf
- Извещение о начале строительства, корпус 5.2 19.09.20221.99 мб, pdf
- Разрешение на строительство 77-204000-020408-2022, корпус 5.2 31.08.2022177.94 кб, pdf
- Градостроительный план земельного участка, корпус 5.2 26.08.20222.08 мб, pdf
- Схема планировочной организации земельного участка, корпус 5.2 26.08.20222.20 мб, pdf
- Экспертиза проектной документации, корпус 5.2 23.08.20221.07 мб, pdf
- Проектная декларация № 77-002728, корпус 5.1 06.06.20231,000.28 кб, pdf
- Проект договора участия в долевом строительстве, корпус 5.1 29.12.2022169.91 кб, pdf
- Извещение о начале строительства, корпус 5.1 19.09.20221.99 мб, pdf
- Разрешение на строительство 77-204000-020408-2022, корпус 5.1 31.08.2022177.94 кб, pdf
- Схема планировочной организации земельного участка, корпус 5.1 26.08.20222.20 мб, pdf
- Градостроительный план земельного участка, корпус 5.1 26.08.20222.08 мб, pdf
- Экспертиза проектной документации, корпус 5.1 23.08.20221.07 мб, pdf
- Проектная декларация № 77-002325, корпус 4.3 20.06.20231.17 мб, pdf
- Схема планировочной организации земельного участка, корпус 4.3 30.05.20233.50 мб, pdf
- Экспертиза проектной документации, корпус 4.3 29.05.2023619.32 кб, pdf
- Проект договора участия в долевом строительстве, корпус 4.3 29.12.2022179.13 кб, pdf
- Разрешение на ввод 77-204000-010701-2022, корпус 4.3 25.03.20221.46 мб, pdf
- Извещение о начале строительства, корпус 4.3 06.10.2021242.22 кб, pdf
- Разрешение на строительство 77-204000-019765-2021, корпус 4.3 24.09.20211.26 мб, pdf
- Градостроительный план земельного участка, корпус 4.3 10.09.20212.24 мб, pdf
- Сведения об уплате застройщиком обязательных отчислений, корпус 4.3 20.02.20205.10 мб, pdf
- Информация о выданных заключениях о соответствии застройщика и проектной декларации требованиям 214-ФЗ 77-001925 77-13-3/20, корпус 4.3 27.01.2020633.01 кб, pdf
- Проектная декларация № 77-002325, корпус 4.4 20.06.20231.17 мб, pdf
- Схема планировочной организации земельного участка, корпус 4.4 30.05.20233.50 мб, pdf
- Экспертиза проектной документации, корпус 4.4 29.05.2023619.32 кб, pdf
- Проект договора участия в долевом строительстве, корпус 4.4 29.12.2022179.13 кб, pdf
- Разрешение на ввод 77-204000-010701-2022, корпус 4.4 25.03.20221.46 мб, pdf
- Извещение о начале строительства, корпус 4.4 06.10.2021242.22 кб, pdf
- Разрешение на строительство 77-204000-019765-2021, корпус 4.4 24.09.20211.26 мб, pdf
- Градостроительный план земельного участка, корпус 4.4 10.09.20212.24 мб, pdf
- Сведения об уплате застройщиком обязательных отчислений, корпус 4.4 20.02.20205.10 мб, pdf
- Информация о выданных заключениях о соответствии застройщика и проектной декларации требованиям 214-ФЗ 77-001925 77-13-3/20, корпус 4.4 27.01.2020633.01 кб, pdf
- Проектная декларация № 77-002325, корпус 4.2 20.06.20231.17 мб, pdf
- Схема планировочной организации земельного участка, корпус 4.2 30.05.20233.11 мб, pdf
- Экспертиза проектной документации, корпус 4.2 29.05.2023619.32 кб, pdf
- Проект договора участия в долевом строительстве, корпус 4.2 29.12.2022169.91 кб, pdf
- Разрешение на ввод 77-204000-010701-2022, корпус 4.2 25.03.20221.46 мб, pdf
- Извещение о начале строительства, корпус 4.2 06.10.2021242.22 кб, pdf
- Разрешение на строительство 77-204000-019765-2021, корпус 4.2 24.09.20211.26 мб, pdf
- Градостроительный план земельного участка, корпус 4.2 10.09.20212.24 мб, pdf
- Сведения об уплате застройщиком обязательных отчислений, корпус 4.2 20.02.20205.10 мб, pdf
- Информация о выданных заключениях о соответствии застройщика и проектной декларации требованиям 214-ФЗ 77-001925 77-13-3/20, корпус 4.2 27.01.2020633.01 кб, pdf
- Проектная декларация № 77-002325, корпус 4.1 20.06.20231.17 мб, pdf
- Схема планировочной организации земельного участка, корпус 4.1 30.05.20233.11 мб, pdf
- Экспертиза проектной документации, корпус 4.1 29.05.2023619.32 кб, pdf
- Проект договора участия в долевом строительстве, корпус 4.1 29.12.2022169.91 кб, pdf
- Разрешение на ввод 77-204000-010701-2022, корпус 4.1 25.03.20221.46 мб, pdf
- Извещение о начале строительства, корпус 4.1 06.10.2021242.22 кб, pdf
- Разрешение на строительство 77-204000-019765-2021, корпус 4.1 24.09.20211.26 мб, pdf
- Градостроительный план земельного участка, корпус 4.1 10.09.20212.24 мб, pdf
- Сведения об уплате застройщиком обязательных отчислений, корпус 4.1 20.02.20205.10 мб, pdf
- Информация о выданных заключениях о соответствии застройщика и проектной декларации требованиям 214-ФЗ 77-001925 77-13-3/20, корпус 4.1 27.01.2020633.01 кб, pdf
- Разрешение на ввод 77-204000-010701-2022, корпус 3.2 25.03.20221.46 мб, pdf
- Сведения об уплате застройщиком обязательных отчислений, корпус 3.2 20.02.20205.10 мб, pdf
- Информация о выданных заключениях о соответствии застройщика и проектной декларации требованиям 214-ФЗ 77-001925 77-13-3/20, корпус 3.2 27.01.2020633.01 кб, pdf
- Разрешение на ввод 77-204000-010701-2022, корпус 3.1 25.03.20221.46 мб, pdf
- Сведения об уплате застройщиком обязательных отчислений, корпус 3.1 20.02.20205.10 мб, pdf
- Информация о выданных заключениях о соответствии застройщика и проектной декларации требованиям 214-ФЗ 77-001925 77-13-3/20, корпус 3.1 27.01.2020633.01 кб, pdf
- Разрешение на ввод 77-204000-010701-2022, корпус 2.2 25.03.20221.46 мб, pdf
- Сведения об уплате застройщиком обязательных отчислений, корпус 2.2 20.02.20205.10 мб, pdf
- Информация о выданных заключениях о соответствии застройщика и проектной декларации требованиям 214-ФЗ 77-001925 77-13-3/20, корпус 2.2 27.01.2020633.01 кб, pdf
- Разрешение на ввод 77-204000-010701-2022, корпус 2.1 25.03.20221.46 мб, pdf
- Сведения об уплате застройщиком обязательных отчислений, корпус 2.1 20.02.20205.10 мб, pdf
- Информация о выданных заключениях о соответствии застройщика и проектной декларации требованиям 214-ФЗ 77-001925 77-13-3/20, корпус 2.1 27.01.2020633.01 кб, pdf
- Разрешение на ввод 77-204000-010701-2022, корпус 1 25.03.20221.46 мб, pdf
- Сведения об уплате застройщиком обязательных отчислений, корпус 1 20.02.20205.10 мб, pdf
- Информация о выданных заключениях о соответствии застройщика и проектной декларации требованиям 214-ФЗ 77-001925 77-13-3/20, корпус 1 27.01.2020633.01 кб, pdf









































