2-Комнатная квартира, 74.7 м², ID 501164
Обновлено позавчера
50 796 000 ₽
680 000 ₽ / м2
- Срок сдачи
- III квартал 2028
- Застройщик
- нет данных
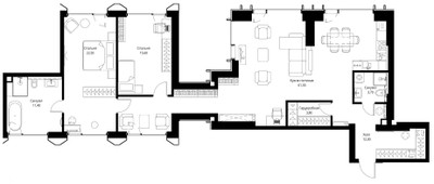
- Общая площадь
- 74.7 м2
- Жилая площадь
- 31.4 м2
- Площадь кухни
- 23.8 м2
- Высота потолков
- 2.85 м
- Этаж
- 59 из 59
- Корпус
- Indigo 1 Ub9
- Отделка
- Черновая
- Санузел
- Раздельный
- ID
- 501164
Расположение
Описание
Двухкомнатная квартира, 74.7 м2 в ЖК Veer (Веер) от
Продается 2-комн. квартира в новостройке ЖК Veer (Веер) за 50 796 000 руб, находящаяся по адресу Москва, Западный (ЗАО), Можайский, ул Верейская, д 29. Застройщик MR Group. Квартира сдается в 3 квартале 2028 года с черновой отделкой, в 23 минутах пешком от станции метрополитена Давыдково. Общая площадь квартиры - 74.7 кв. м. Этаж 59 из 59. ID квартиры на СтройкиРУ 501164, назовите его когда будете звонить.










