3-Комнатная квартира, 296.8 м², ID 100827
Обновлено сегодня
492 688 000 ₽
1 660 000 ₽ / м2
- Срок сдачи
- III квартал 2023
- Застройщик
- нет данных
- Общая площадь
- 296.8 м2
- Жилая площадь
- 66.9 м2
- Площадь кухни
- 86.1 м2
- Этаж
- 3 из 7
- Корпус
- 1
- Отделка
- Черновая
- Санузел
- Несколько
- ID
- 100827
Расположение
Описание
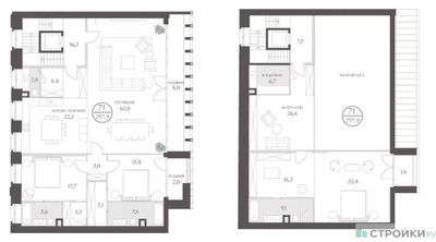
Трехкомнатная квартира, 296.8 м2 в ЖК Тессинский, 1 от
Продается 3-комн. квартира в новостройке ЖК Тессинский, 1 по цене 492 688 000 руб, расположенная по адресу Москва, Центральный (ЦАО), Таганский, Тессинский пер, д 4 стр 1. Застройщик Стрелецкая Слобода. Квартира сдается в 3 квартале 2023 года с черновой отделкой, в 9 минутах пешком от метро Чкаловская. Общая площадь квартиры - 296.8 кв. м. Этаж 3 из 8. ID квартиры на СтройкиРУ 100827, сообщите его когда будете звонить.
Подробнее о ЖК Тессинский, 1
Особенности
Ход строительства
Документация
- Проектная декларация № 77-002069, корпус 1 09.06.2023329.21 кб, pdf
- Экспертиза проектной документации, корпус 1 23.05.202321.97 мб, pdf
- Проект договора участия в долевом строительстве, корпус 1 31.03.2023713.17 кб, pdf
- Схема планировочной организации земельного участка, корпус 1 01.07.20222.04 мб, pdf
- Градостроительный план земельного участка, корпус 1 11.06.20214.33 мб, pdf
- Извещение о начале строительства, корпус 1 07.10.2020149.73 кб, pdf
- Информация о выданных заключениях о соответствии застройщика и проектной декларации требованиям 214-ФЗ 77-002069 ЗОС/085/77-002069, корпус 1 29.09.2020683.95 кб, pdf
- Разрешение на строительство 77-202000-018875-2020, корпус 1 29.04.20201.49 мб, pdf



























