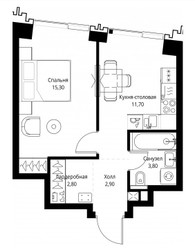
1-Комнатная квартира, 36.7 м², ID 473547
Обновлено 3 дня назад
31 310 000 ₽
853 134 ₽ / м2
- Срок сдачи
- IV квартал 2027
- Застройщик
- нет данных
- Общая площадь
- 36.7 м2
- Жилая площадь
- 15.3 м2
- Площадь кухни
- 11.7 м2
- Высота потолков
- 3 м
- Этаж
- 44 из 46
- Корпус
- Импульс (15 )
- Отделка
- Предчистовая
- Санузел
- Раздельный
- ID
- 473547
Расположение
Описание
Однокомнатная квартира, 36.7 м2 в ЖК Левел Павелецкая Сити от
Продается однокомнатная квартира в новостройке ЖК Левел Павелецкая Сити по цене 31 310 000 р, расположенная по адресу Москва, Южный (ЮАО), Даниловский, ул Дубининская, д 59-69. Застройщик дома Level Group. Квартира сдается в IV квартале 2027 года с предчистовой отделкой, в 10 минутах пешком от метро Тульская. Общая площадь квартиры - 36.7 м². Этаж 44. ID квартиры на СтройкиРУ 473547, сообщите его когда будете звонить.
Подробнее о ЖК Левел Павелецкая Сити
Особенности
Ход строительства
Документация
- Разрешение на ввод 77-05-011402-2023, корпус Марлон (3 ) 28.04.2023168.08 кб, pdf
- Проектная декларация № 77-001973, корпус Марлон (3 ) 21.04.20231.03 мб, pdf
- Проект договора участия в долевом строительстве, корпус Марлон (3 ) 23.03.2022662.97 кб, pdf
- Экспертиза проектной документации, корпус Марлон (3 ) 11.08.2021508.59 кб, pdf
- Извещение о начале строительства, корпус Марлон (3 ) 09.07.20204.54 мб, pdf
- Информация о выданных заключениях о соответствии застройщика и проектной декларации требованиям 214-ФЗ 77-001973 ЗОС/007/77-001973, корпус Марлон (3 ) 03.03.2020689.82 кб, pdf
- Схема планировочной организации земельного участка, корпус Марлон (3 ) 11.02.202021.86 мб, pdf
- Градостроительный план земельного участка, корпус Марлон (3 ) 11.02.20201.54 мб, pdf
- Разрешение на строительство 77-126000-018716-2020, корпус Марлон (3 ) 07.02.20203.38 мб, pdf
- Проектная декларация № 77-002191, корпус Ингрид (9 ) 23.06.2023978.42 кб, pdf
- Проект договора участия в долевом строительстве, корпус Ингрид (9 ) 18.10.2022646.55 кб, pdf
- Информация о выданных заключениях о соответствии застройщика и проектной декларации требованиям 214-ФЗ 77-002191 ЗОС/177/77-002191, корпус Ингрид (9 ) 09.03.2021613.66 кб, pdf
- Схема планировочной организации земельного участка, корпус Ингрид (9 ) 17.02.20213.96 мб, pdf
- Градостроительный план земельного участка, корпус Ингрид (9 ) 17.02.20211.50 мб, pdf
- Разрешение на строительство 77-126000-019400-2021, корпус Ингрид (9 ) 16.02.20211.56 мб, pdf
- Экспертиза проектной документации, корпус Ингрид (9 ) 21.12.20201,011.28 кб, pdf
- Разрешение на ввод 77-05-011402-2023, корпус Фрэнк (2 ) 28.04.2023168.08 кб, pdf
- Проектная декларация № 77-001973, корпус Фрэнк (2 ) 21.04.20231.03 мб, pdf
- Извещение о начале строительства, корпус Фрэнк (2 ) 08.07.20204.54 мб, pdf
- Разрешение на строительство 77-126000-018716-2020, корпус Фрэнк (2 ) 07.02.20203.38 мб, pdf
- Разрешение на ввод 77-05-011402-2023, корпус Грейс (5 ) 28.04.2023168.08 кб, pdf
- Проектная декларация № 77-001973, корпус Грейс (5 ) 21.04.20231.03 мб, pdf
- Извещение о начале строительства, корпус Грейс (5 ) 09.07.20204.54 мб, pdf
- Разрешение на строительство 77-126000-018716-2020, корпус Грейс (5 ) 07.02.20203.38 мб, pdf
- Разрешение на ввод 77-05-011402-2023, корпус Марлон ( 3) 28.04.2023168.08 кб, pdf
- Проектная декларация № 77-001973, корпус Марлон ( 3) 21.04.20231.03 мб, pdf
- Извещение о начале строительства, корпус Марлон ( 3) 09.07.20204.54 мб, pdf
- Разрешение на строительство 77-126000-018716-2020, корпус Марлон ( 3) 07.02.20203.38 мб, pdf
- Проектная декларация № 77-002191, корпус Хамфри (8 ) 23.06.2023978.42 кб, pdf
- Проект договора участия в долевом строительстве, корпус Хамфри (8 ) 18.10.2022646.55 кб, pdf
- Информация о выданных заключениях о соответствии застройщика и проектной декларации требованиям 214-ФЗ 77-002191 ЗОС/177/77-002191, корпус Хамфри (8 ) 09.03.2021613.66 кб, pdf
- Схема планировочной организации земельного участка, корпус Хамфри (8 ) 17.02.20213.96 мб, pdf
- Градостроительный план земельного участка, корпус Хамфри (8 ) 17.02.20211.50 мб, pdf
- Разрешение на строительство 77-126000-019400-2021, корпус Хамфри (8 ) 16.02.20211.56 мб, pdf
- Экспертиза проектной документации, корпус Хамфри (8 ) 21.12.20201,011.28 кб, pdf
- Проектная декларация № 77-002191, корпус Вивьен (7 ) 23.06.2023978.42 кб, pdf
- Проект договора участия в долевом строительстве, корпус Вивьен (7 ) 18.10.2022646.55 кб, pdf
- Информация о выданных заключениях о соответствии застройщика и проектной декларации требованиям 214-ФЗ 77-002191 ЗОС/177/77-002191, корпус Вивьен (7 ) 09.03.2021613.66 кб, pdf
- Схема планировочной организации земельного участка, корпус Вивьен (7 ) 17.02.20213.96 мб, pdf
- Градостроительный план земельного участка, корпус Вивьен (7 ) 17.02.20211.50 мб, pdf
- Разрешение на строительство 77-126000-019400-2021, корпус Вивьен (7 ) 16.02.20211.56 мб, pdf
- Экспертиза проектной документации, корпус Вивьен (7 ) 21.12.20201,011.28 кб, pdf
- Разрешение на ввод 77-05-011402-2023, корпус Мэрлин (4 ) 28.04.2023168.08 кб, pdf
- Проектная декларация № 77-001973, корпус Мэрлин (4 ) 21.04.20231.03 мб, pdf
- Извещение о начале строительства, корпус Мэрлин (4 ) 09.07.20204.54 мб, pdf
- Разрешение на строительство 77-126000-018716-2020, корпус Мэрлин (4 ) 07.02.20203.38 мб, pdf
- Разрешение на ввод 77-05-011402-2023, корпус Чарли (1 ) 28.04.2023168.08 кб, pdf
- Проектная декларация № 77-001973, корпус Чарли (1 ) 21.04.20231.03 мб, pdf
- Извещение о начале строительства, корпус Чарли (1 ) 09.07.20204.54 мб, pdf
- Разрешение на строительство 77-126000-018716-2020, корпус Чарли (1 ) 07.02.20203.38 мб, pdf
- Проектная декларация № 77-002191, корпус Кэрри (6 ) 23.06.2023978.42 кб, pdf
- Проект договора участия в долевом строительстве, корпус Кэрри (6 ) 18.10.2022646.55 кб, pdf
- Информация о выданных заключениях о соответствии застройщика и проектной декларации требованиям 214-ФЗ 77-002191 ЗОС/177/77-002191, корпус Кэрри (6 ) 09.03.2021613.66 кб, pdf
- Градостроительный план земельного участка, корпус Кэрри (6 ) 17.02.20211.50 мб, pdf
- Схема планировочной организации земельного участка, корпус Кэрри (6 ) 17.02.20213.96 мб, pdf
- Разрешение на строительство 77-126000-019400-2021, корпус Кэрри (6 ) 16.02.20211.56 мб, pdf
- Экспертиза проектной документации, корпус Кэрри (6 ) 21.12.20201,011.28 кб, pdf
- Разрешение на ввод 77-05-011402-2023, корпус Чарли 28.04.2023168.08 кб, pdf
- Проектная декларация № 77-001973, корпус Чарли 21.04.20231.03 мб, pdf
- Извещение о начале строительства, корпус Чарли 09.07.20204.54 мб, pdf
- Разрешение на строительство 77-126000-018716-2020, корпус Чарли 07.02.20203.38 мб, pdf
- Проектная декларация № 77-002191, корпус Хамфри 23.06.2023978.42 кб, pdf
- Проект договора участия в долевом строительстве, корпус Хамфри 18.10.2022646.55 кб, pdf
- Информация о выданных заключениях о соответствии застройщика и проектной декларации требованиям 214-ФЗ 77-002191 ЗОС/177/77-002191, корпус Хамфри 09.03.2021613.66 кб, pdf
- Градостроительный план земельного участка, корпус Хамфри 17.02.20211.50 мб, pdf
- Схема планировочной организации земельного участка, корпус Хамфри 17.02.20213.96 мб, pdf
- Разрешение на строительство 77-126000-019400-2021, корпус Хамфри 16.02.20211.56 мб, pdf
- Экспертиза проектной документации, корпус Хамфри 21.12.20201,011.28 кб, pdf
- Разрешение на ввод 77-05-011402-2023, корпус Фрэнк 28.04.2023168.08 кб, pdf
- Проектная декларация № 77-001973, корпус Фрэнк 21.04.20231.03 мб, pdf
- Извещение о начале строительства, корпус Фрэнк 08.07.20204.54 мб, pdf
- Разрешение на строительство 77-126000-018716-2020, корпус Фрэнк 07.02.20203.38 мб, pdf
- Разрешение на ввод 77-05-011402-2023, корпус Мэрлин 28.04.2023168.08 кб, pdf
- Проектная декларация № 77-001973, корпус Мэрлин 21.04.20231.03 мб, pdf
- Извещение о начале строительства, корпус Мэрлин 09.07.20204.54 мб, pdf
- Разрешение на строительство 77-126000-018716-2020, корпус Мэрлин 07.02.20203.38 мб, pdf
- Разрешение на ввод 77-05-011402-2023, корпус Марлон 28.04.2023168.08 кб, pdf
- Проектная декларация № 77-001973, корпус Марлон 21.04.20231.03 мб, pdf
- Разрешение на строительство 77-126000-018716-2020, корпус Марлон 07.02.20203.38 мб, pdf
- Проектная декларация № 77-002191, корпус Кэрри 23.06.2023978.42 кб, pdf
- Проект договора участия в долевом строительстве, корпус Кэрри 18.10.2022646.55 кб, pdf
- Информация о выданных заключениях о соответствии застройщика и проектной декларации требованиям 214-ФЗ 77-002191 ЗОС/177/77-002191, корпус Кэрри 09.03.2021613.66 кб, pdf
- Градостроительный план земельного участка, корпус Кэрри 17.02.20211.50 мб, pdf
- Схема планировочной организации земельного участка, корпус Кэрри 17.02.20213.96 мб, pdf
- Разрешение на строительство 77-126000-019400-2021, корпус Кэрри 16.02.20211.56 мб, pdf
- Экспертиза проектной документации, корпус Кэрри 21.12.20201,011.28 кб, pdf
- Проектная декларация № 77-002191, корпус Ингрид 23.06.2023978.42 кб, pdf
- Проект договора участия в долевом строительстве, корпус Ингрид 18.10.2022646.55 кб, pdf
- Информация о выданных заключениях о соответствии застройщика и проектной декларации требованиям 214-ФЗ 77-002191 ЗОС/177/77-002191, корпус Ингрид 09.03.2021613.66 кб, pdf
- Градостроительный план земельного участка, корпус Ингрид 17.02.20211.50 мб, pdf
- Схема планировочной организации земельного участка, корпус Ингрид 17.02.20213.96 мб, pdf
- Разрешение на строительство 77-126000-019400-2021, корпус Ингрид 16.02.20211.56 мб, pdf
- Экспертиза проектной документации, корпус Ингрид 21.12.20201,011.28 кб, pdf
- Разрешение на ввод 77-05-011402-2023, корпус Грейс 28.04.2023168.08 кб, pdf
- Проектная декларация № 77-001973, корпус Грейс 21.04.20231.03 мб, pdf
- Извещение о начале строительства, корпус Грейс 09.07.20204.54 мб, pdf
- Разрешение на строительство 77-126000-018716-2020, корпус Грейс 07.02.20203.38 мб, pdf
- Проектная декларация № 77-002191, корпус Вивьен 23.06.2023978.42 кб, pdf
- Проект договора участия в долевом строительстве, корпус Вивьен 18.10.2022646.55 кб, pdf
- Информация о выданных заключениях о соответствии застройщика и проектной декларации требованиям 214-ФЗ 77-002191 ЗОС/177/77-002191, корпус Вивьен 09.03.2021613.66 кб, pdf
- Градостроительный план земельного участка, корпус Вивьен 17.02.20211.50 мб, pdf
- Схема планировочной организации земельного участка, корпус Вивьен 17.02.20213.96 мб, pdf
- Разрешение на строительство 77-126000-019400-2021, корпус Вивьен 16.02.20211.56 мб, pdf
- Экспертиза проектной документации, корпус Вивьен 21.12.20201,011.28 кб, pdf


























