3-Комнатная квартира, 59.4 м², ID 612173
Обновлено 5 дня назад
30 936 000 ₽
520 808 ₽ / м2
- Срок сдачи
- I квартал 2026
- Застройщик
- нет данных
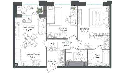
- Общая площадь
- 59.4 м2
- Жилая площадь
- 38 м2
- Площадь кухни
- 6.1 м2
- Высота потолков
- 2.8 м
- Этаж
- 17 из 20
- Корпус
- 5
- Отделка
- не указана
- Санузел
- Раздельный
- ID
- 612173
Расположение
Описание
Трехкомнатная квартира, 59.4 м2 в ЖК Михалковский от
Продается трехкомнатная квартира в новостройке ЖК Михалковский за 30 936 000 р, находящаяся по адресу Москва, Северный (САО), Коптево, ул Михалковская, вл 48. Застройщик дома РГ-Девелопмент. Квартира сдается в I квартале 2026 года в 22 минутах пешком от станции метрополитена Водный стадион. Общая площадь квартиры - 59.4 м². Этаж 17. ID квартиры на СтройкиРУ 612173, назовите его когда будете звонить.
Подробнее о ЖК Михалковский
Особенности
Ход строительства
Документация
- Проектная декларация № 77-001688, корпус 1 02.06.2023453.49 кб, pdf
- Проект договора участия в долевом строительстве, корпус 1 09.01.2023169.83 кб, pdf
- Градостроительный план земельного участка, корпус 1 24.09.20216.12 мб, pdf
- Схема планировочной организации земельного участка, корпус 1 24.09.20211.87 мб, pdf
- Экспертиза проектной документации, корпус 1 23.09.2021194.49 кб, pdf
- Заключение о степени готовности 77-185000-017406-2018, корпус 1 11.09.2019378.30 кб, pdf
- Извещение о начале строительства, корпус 1 18.06.2019473.50 кб, pdf
- Информация о выданных заключениях о соответствии застройщика и проектной декларации требованиям 214-ФЗ 77-001688 77-13-556/8, корпус 1 18.12.2018185.71 кб, pdf
- Разрешение на строительство 77-185000-017406-2018, корпус 1 22.06.20181.15 мб, pdf














