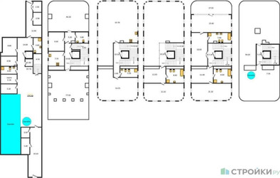
2-Комнатная квартира, 472.6 м², ID 132295
Обновлено Сегодня, 11:04
1 333 330 000 ₽
2 821 265 ₽ / м2
- Срок сдачи
- I квартал 2025
- Застройщик
- нет данных
- Общая площадь
- 472.6 м2
- Жилая площадь
- 54.8 м2
- Площадь кухни
- 67.7 м2
- Высота потолков
- 5 м
- Этаж
- 1 из 14
- Корпус
- 6
- Отделка
- Черновая
- Санузел
- Несколько
- ID
- 132295
Расположение
Описание
Двухкомнатная квартира, 472.6 м2 в ЖК Лаврушинский от
Продается двухкомнатная квартира в новостройке ЖК Лаврушинский по цене 1 333 330 000 рублей, расположенная по адресу Москва, Центральный (ЦАО), Якиманка, Большой Толмачёвский пер, д 3 стр 1. Компания застройщик Sminex. Квартира сдается в II квартале 2024 года с черновой отделкой, в 5 минутах пешком от метро Третьяковская. Общая площадь квартиры - 472.6 м². Этаж 1 из 3. ID квартиры на СтройкиРУ 132295, сообщите его когда будете звонить.
Подробнее о ЖК Лаврушинский
Особенности
Ход строительства
Документация
- Проектная декларация № 77-002663, корпус 7 07.06.2023718.80 кб, pdf
- Экспертиза проектной документации, корпус 7 28.10.20221.33 мб, pdf
- Извещение о начале строительства, корпус 7 30.09.2022795.50 кб, pdf
- Проект договора участия в долевом строительстве, корпус 7 29.08.20221.47 мб, pdf
- Разрешение на строительство 77-224000-020342-2022, корпус 7 25.07.20221.58 мб, pdf
- Схема планировочной организации земельного участка, корпус 7 21.06.20221.24 мб, pdf
- Градостроительный план земельного участка, корпус 7 20.06.20222.90 мб, pdf
- Проектная декларация № 77-002663, корпус 5 07.06.2023718.80 кб, pdf
- Экспертиза проектной документации, корпус 5 28.10.20221.33 мб, pdf
- Извещение о начале строительства, корпус 5 30.09.2022795.50 кб, pdf
- Проект договора участия в долевом строительстве, корпус 5 29.08.20221.47 мб, pdf
- Разрешение на строительство 77-224000-020342-2022, корпус 5 25.07.20221.58 мб, pdf
- Схема планировочной организации земельного участка, корпус 5 21.06.20221.24 мб, pdf
- Градостроительный план земельного участка, корпус 5 20.06.20222.90 мб, pdf
- Проектная декларация № 77-002663, корпус 4 07.06.2023718.80 кб, pdf
- Экспертиза проектной документации, корпус 4 28.10.20221.33 мб, pdf
- Извещение о начале строительства, корпус 4 30.09.2022795.50 кб, pdf
- Проект договора участия в долевом строительстве, корпус 4 29.08.20221.47 мб, pdf
- Разрешение на строительство 77-224000-020342-2022, корпус 4 25.07.20221.58 мб, pdf
- Схема планировочной организации земельного участка, корпус 4 21.06.20221.24 мб, pdf
- Градостроительный план земельного участка, корпус 4 20.06.20222.90 мб, pdf
- Проектная декларация № 77-002277, корпус 1 07.06.2023498.52 кб, pdf
- Экспертиза проектной документации, корпус 1 20.10.2021354.66 кб, pdf
- Проект договора участия в долевом строительстве, корпус 1 29.06.202170.78 кб, pdf
- Извещение о начале строительства, корпус 1 29.06.20215.11 мб, pdf
- Разрешение на строительство 77-224000-019604-2021, корпус 1 10.06.20211.12 мб, pdf
- Градостроительный план земельного участка, корпус 1 22.03.20212.61 мб, pdf
- Схема планировочной организации земельного участка, корпус 1 22.03.20215.31 мб, pdf
- Проектная декларация № 77-002277, корпус Западный 07.06.2023498.52 кб, pdf
- Экспертиза проектной документации, корпус Западный 20.10.2021354.66 кб, pdf
- Проект договора участия в долевом строительстве, корпус Западный 29.06.202170.78 кб, pdf
- Извещение о начале строительства, корпус Западный 29.06.20215.11 мб, pdf
- Разрешение на строительство 77-224000-019604-2021, корпус Западный 10.06.20211.12 мб, pdf
- Схема планировочной организации земельного участка, корпус Западный 22.03.20215.31 мб, pdf
- Градостроительный план земельного участка, корпус Западный 22.03.20212.61 мб, pdf
- Проектная декларация № 77-002277, корпус Центральный 07.06.2023498.52 кб, pdf
- Экспертиза проектной документации, корпус Центральный 20.10.2021354.66 кб, pdf
- Проект договора участия в долевом строительстве, корпус Центральный 29.06.202170.78 кб, pdf
- Извещение о начале строительства, корпус Центральный 29.06.20215.11 мб, pdf
- Разрешение на строительство 77-224000-019604-2021, корпус Центральный 10.06.20211.12 мб, pdf
- Градостроительный план земельного участка, корпус Центральный 22.03.20212.61 мб, pdf
- Схема планировочной организации земельного участка, корпус Центральный 22.03.20215.31 мб, pdf
- Проектная декларация № 77-002277, корпус Восточный 07.06.2023498.52 кб, pdf
- Экспертиза проектной документации, корпус Восточный 20.10.2021354.66 кб, pdf
- Извещение о начале строительства, корпус Восточный 29.06.20215.11 мб, pdf
- Проект договора участия в долевом строительстве, корпус Восточный 29.06.202170.78 кб, pdf
- Разрешение на строительство 77-224000-019604-2021, корпус Восточный 10.06.20211.12 мб, pdf
- Схема планировочной организации земельного участка, корпус Восточный 22.03.20215.31 мб, pdf
- Градостроительный план земельного участка, корпус Восточный 22.03.20212.61 мб, pdf









