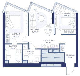
2-Комнатная квартира, 67.3 м², ID 572601
Обновлено неделю назад
49 937 000 ₽
742 006 ₽ / м2
- Срок сдачи
- II квартал 2028
- Застройщик
- нет данных
- Общая площадь
- 67.3 м2
- Жилая площадь
- 45.9 м2
- Площадь кухни
- 6.5 м2
- Высота потолков
- 3.25 м
- Этаж
- 3 из 49
- Корпус
- 2
- Отделка
- Черновая
- Санузел
- Раздельный
- ID
- 572601
Описание
Двухкомнатная квартира, 67.3 м2 в ЖК HideOUT (ХайдАут) от
Продается 2-комн. квартира в новостройке ЖК HideOUT (ХайдАут) за 49 937 000 руб, находящаяся по адресу Москва, Западный (ЗАО), Раменки, 3-й Сетуньский пр-д, д 10. Застройщик Доминанта. Квартира сдается в 2 квартале 2028 года с черновой отделкой, в 23 минутах пешком от станции метрополитена Парк Победы. Общая площадь квартиры - 67.3 кв. м. Этаж 3. ID квартиры на СтройкиРУ 572601, назовите его когда будете звонить.















