3-Комнатная квартира, 76 м², ID 575586
Обновлено Позавчера
36 100 000 ₽
475 000 ₽ / м2
- Срок сдачи
- IV квартал 2026
- Застройщик
- нет данных
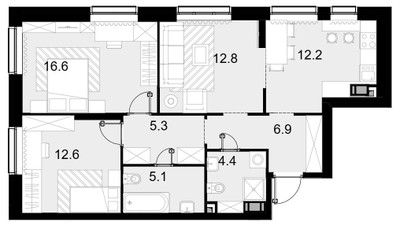
- Общая площадь
- 76 м2
- Жилая площадь
- 42 м2
- Площадь кухни
- 12.2 м2
- Высота потолков
- 3 м
- Этаж
- 13 из 47
- Корпус
- 9
- Отделка
- Черновая
- Санузел
- Раздельный
- ID
- 575586
Расположение
Описание
Трехкомнатная квартира, 76 м2 в ЖК Crystal Трилогия (Кристал) от
Продается 3-комн. квартира в новостройке ЖК Crystal Трилогия (Кристал) стоимостью 36 100 000 руб, по адресу Москва, Северо-Западный (СЗАО), Хорошёво-Мнёвники, ул Генерала Глаголева, д 16 к 1. Застройщик Концерн КРОСТ. Квартира сдается в 4 квартале 2026 года с черновой отделкой, в 15 минутах на машине от станции метро Октябрьское поле. Общая площадь квартиры - 76 кв. м. Этаж 13. ID квартиры на СтройкиРУ 575586, скажите его когда будете звонить.
Подробнее о ЖК Crystal Трилогия (Кристал)
Особенности
Ход строительства
Документация
- Проектная декларация № 77-001779, корпус 1 05.06.2023331.02 кб, pdf
- Проект договора участия в долевом строительстве, корпус 1 21.02.2022254.10 кб, pdf
- Экспертиза проектной документации, корпус 1 23.08.2021710.71 кб, pdf
- Градостроительный план земельного участка, корпус 1 27.07.20211.65 мб, pdf
- Схема планировочной организации земельного участка, корпус 1 27.07.202112.79 мб, pdf
- Извещение о начале строительства, корпус 1 24.04.2020501.79 кб, pdf
- Заключение о степени готовности 77-212000-017858-2018, корпус 1 05.08.2019192.50 кб, pdf
- Информация о выданных заключениях о соответствии застройщика и проектной декларации требованиям 214-ФЗ 77-001779 77-13-38/9, корпус 1 29.03.2019993.03 кб, pdf
- Разрешение на строительство 77-212000-017858-2018, корпус 1 19.10.20188.74 мб, pdf



















