2-Комнатная квартира, 52.5 м², ID 646433
Обновлено Сегодня, 05:44
1 из 25
28 245 000 ₽
538 000 ₽ / м2
- Срок сдачи
- III квартал 2027
- Застройщик
- нет данных
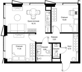
- Общая площадь
- 52.5 м2
- Жилая площадь
- 21.3 м2
- Площадь кухни
- 16.1 м2
- Высота потолков
- 2.75 м
- Этаж
- 19 из 48
- Корпус
- 7
- Отделка
- не указана
- Санузел
- Раздельный
- ID
- 646433
Расположение
Описание
Двухкомнатная квартира, 52.5 м2 в ЖК Cityzen (Ситизен) от
Продается двухкомнатная квартира в новостройке ЖК Cityzen (Ситизен) за 28 245 000 р, находящаяся по адресу Москва, Северо-Западный (СЗАО), Покровское-Стрешнево, ул Вишнёвая, д 7. Застройщик дома MR Group. Квартира сдается в III квартале 2027 года в 9 минутах пешком от станции метрополитена Тушинская. Общая площадь квартиры - 52.5 м². Этаж 19. ID квартиры на СтройкиРУ 646433, назовите его когда будете звонить.
Подробнее о ЖК Cityzen (Ситизен)
“Cityzen” - жилой комплекс бизнес-класса от девелопера MR Group возводится в районе Покровское-Стрешнево на северо-западе столицы.
Проект представляет собой 9-ти монолитно-кирпичных многоквартирных корпусов высотой от 10 до 48 этажей. Благодаря авторской концепции, разработанной специалистами столичного бюро SPEECH, комплекс станет яркой архитектурной доминантой локации.
Застройщик предлагает более сотни планировочных решений, среди них есть нестандартные и эксклюзивные форматы квартир. Приобрести можно традиционную студию или просторную 3-комнатную квартиру, так и лоты с видовой открытой террасой. Площадь недвижимости в первой очереди варьируется от 18 м2 до 110 м2. Готовые квартиры будут передаваться в собственность с улучшенной предчистовой отделкой формата MR Base. Высота потолков в помещениях до выполнения финишной отделки составит до 2,85 м.
Инфраструктура и благоустройство
До станции метро “Тушинская” - 9 минут пешком, до станции метро “Спартак” - 21 минута на транспорте, до станции “Щукинская” - 22 минуты на транспорте
В холлах предусмотрены стойки консьержей, помещения для мытья лап животным после прогулки, зоны ожидания для посетителей и гостевые санузлы
Подземный паркинг для удобства автовладельцев.
Страница ЖК >>




























