2-Комнатная квартира, 72.1 м², ID 534427
Обновлено 2 недели назад
34 168 000 ₽
473 897 ₽ / м2
- Срок сдачи
- III квартал 2027
- Застройщик
- нет данных
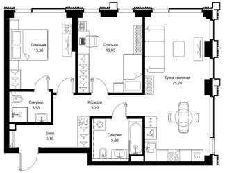
- Общая площадь
- 72.1 м2
- Жилая площадь
- 26.9 м2
- Площадь кухни
- 25.2 м2
- Высота потолков
- 2.75 м
- Этаж
- 26 из 48
- Корпус
- 2
- Отделка
- не указана
- Санузел
- Раздельный
- ID
- 534427
Расположение
Описание
Двухкомнатная квартира, 72.1 м2 в ЖК СИТИДЗЕН от
Продается двухкомнатная квартира в новостройке ЖК Cityzen (Ситизен) за 34 168 000 р, находящаяся по адресу Москва, Северо-Западный (СЗАО), Покровское-Стрешнево, ул Вишнёвая, д 7. Застройщик дома MR Group. Квартира сдается в III квартале 2027 года в 9 минутах пешком от станции метрополитена Тушинская. Общая площадь квартиры - 72.1 м². Этаж 26. ID квартиры на СтройкиРУ 534427, назовите его когда будете звонить.





































