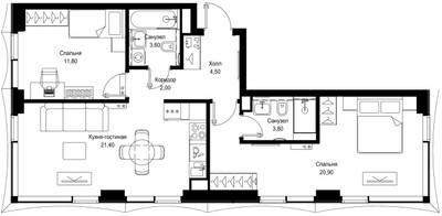
2-Комнатная квартира, 68 м², ID 534425
Обновлено 2 недели назад
32 021 000 ₽
470 897 ₽ / м2
- Срок сдачи
- III квартал 2027
- Застройщик
- нет данных
- Общая площадь
- 68 м2
- Жилая площадь
- 32.7 м2
- Площадь кухни
- 21.4 м2
- Высота потолков
- 2.75 м
- Этаж
- 9 из 48
- Корпус
- 9
- Отделка
- не указана
- Санузел
- Раздельный
- ID
- 534425
Расположение
Описание
Двухкомнатная квартира, 68 м2 в ЖК СИТИДЗЕН от
Продается двухкомнатная квартира в новостройке ЖК Cityzen (Ситизен) за 32 021 000 рублей, находящаяся по адресу Москва, Северо-Западный (СЗАО), Покровское-Стрешнево, ул Вишнёвая, д 7. Компания застройщик MR Group. Квартира сдается в III квартале 2027 года в 9 минутах пешком от станции метрополитена Тушинская. Общая площадь квартиры - 68 м². Этаж 9. ID квартиры на СтройкиРУ 534425, назовите его когда будете звонить.





































