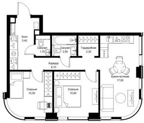
2-Комнатная квартира, 56.6 м², ID 534421
Обновлено 2 недели назад
28 889 000 ₽
510 406 ₽ / м2
- Срок сдачи
- III квартал 2027
- Застройщик
- нет данных
- Общая площадь
- 56.6 м2
- Жилая площадь
- 21.3 м2
- Площадь кухни
- 17 м2
- Высота потолков
- 2.75 м
- Этаж
- 14 из 48
- Корпус
- 1
- Отделка
- не указана
- Санузел
- Раздельный
- ID
- 534421
Расположение
Описание
Двухкомнатная квартира, 56.6 м2 в ЖК СИТИДЗЕН от
Продается 2-комн. квартира в новостройке ЖК Cityzen (Ситизен) за 28 889 000 руб, находящаяся по адресу Москва, Северо-Западный (СЗАО), Покровское-Стрешнево, ул Вишнёвая, д 7. Застройщик MR Group. Квартира сдается в 3 квартале 2027 года в 9 минутах пешком от станции метрополитена Тушинская. Общая площадь квартиры - 56.6 кв. м. Этаж 14 из 30. ID квартиры на СтройкиРУ 534421, назовите его когда будете звонить.





































