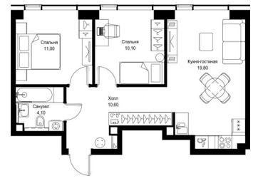
2-Комнатная квартира, 55.5 м², ID 534420
Обновлено 2 недели назад
27 212 000 ₽
490 306 ₽ / м2
- Срок сдачи
- III квартал 2027
- Застройщик
- нет данных
- Общая площадь
- 55.5 м2
- Жилая площадь
- 21.4 м2
- Площадь кухни
- 19.4 м2
- Высота потолков
- 2.75 м
- Этаж
- 38 из 48
- Корпус
- 6
- Отделка
- не указана
- Санузел
- Раздельный
- ID
- 534420
Расположение
Описание
Двухкомнатная квартира, 55.5 м2 в ЖК СИТИДЗЕН от
Продается двухкомнатная квартира в новостройке ЖК Cityzen (Ситизен) по цене 27 212 000 рублей, расположенная по адресу Москва, Северо-Западный (СЗАО), Покровское-Стрешнево, ул Вишнёвая, д 7. Компания застройщик MR Group. Квартира сдается в III квартале 2027 года в 9 минутах пешком от метро Тушинская. Общая площадь квартиры - 55.5 м². Этаж 38. ID квартиры на СтройкиРУ 534420, сообщите его когда будете звонить.





































