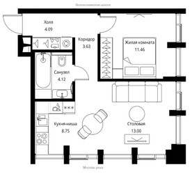
1-Комнатная квартира, 45.05 м², ID 630230
Обновлено вчера
21 669 000 ₽
480 999 ₽ / м2
- Срок сдачи
- I квартал 2027
- Застройщик
- нет данных
- Общая площадь
- 45.05 м2
- Жилая площадь
- 24.46 м2
- Площадь кухни
- 8.75 м2
- Высота потолков
- 3 м
- Этаж
- 9 из 59
- Корпус
- North Ocean 4
- Отделка
- Предчистовая
- Санузел
- Раздельный
- ID
- 630230
Расположение
Описание
Однокомнатная квартира, 45.05 м2 в ЖК City bay (Сити Бэй) от
Продается 1-комн. квартира в новостройке ЖК City bay (Сити Бэй) по цене 21 669 000 руб, расположенная по адресу Москва, Северо-Западный (СЗАО), Покровское-Стрешнево, Волоколамское шоссе, д 95-97. Застройщик MR Group. Квартира сдается в 1 квартале 2027 года с предчистовой отделкой, в 34 минутах пешком от метро Волоколамская. Общая площадь квартиры - 45.05 кв. м. Этаж 9. ID квартиры на СтройкиРУ 630230, сообщите его когда будете звонить.
Подробнее о ЖК City bay (Сити Бэй)
Особенности
Ход строительства
Документация
- Проектная декларация № 77-002343, корпус Atlantic Ocean 1 23.06.2023757.29 кб, pdf
- Проект договора участия в долевом строительстве, корпус Atlantic Ocean 1 13.04.2023578.54 кб, pdf
- Схема планировочной организации земельного участка, корпус Atlantic Ocean 1 15.02.202334.83 мб, pdf
- Градостроительный план земельного участка, корпус Atlantic Ocean 1 15.02.20231.06 мб, pdf
- Экспертиза проектной документации, корпус Atlantic Ocean 1 02.11.2022661.26 кб, sig
- Извещение о начале строительства, корпус Atlantic Ocean 1 24.11.20213.11 мб, pdf
- Разрешение на строительство 77-179000-019800-2021, корпус Atlantic Ocean 1 20.10.20212.17 мб, pdf
- Проектная декларация № 77-002029, корпус Indian Ocean 2.2 23.06.20231.41 мб, pdf
- Разрешение на ввод 77-08-011449-2023, корпус Indian Ocean 2.2 05.06.2023100.45 кб, pdf
- Экспертиза проектной документации, корпус Indian Ocean 2.2 31.03.2023510.46 кб, pdf
- Проект договора участия в долевом строительстве, корпус Indian Ocean 2.2 01.04.2022713.38 кб, pdf
- Градостроительный план земельного участка, корпус Indian Ocean 2.2 18.12.20202.60 мб, pdf
- Информация о выданных заключениях о соответствии застройщика и проектной декларации требованиям 214-ФЗ 77-002029 ЗОС/044/77-002029, корпус Indian Ocean 2.2 06.07.2020749.78 кб, pdf
- Схема планировочной организации земельного участка, корпус Indian Ocean 2.2 08.06.202033.33 мб, pdf
- Разрешение на строительство 77-179000-018925-2020, корпус Indian Ocean 2.2 05.06.20202.43 мб, pdf
- Проектная декларация № 77-002029, корпус Indian Ocean 2.1 23.06.20231.41 мб, pdf
- Разрешение на ввод 77-08-011449-2023, корпус Indian Ocean 2.1 05.06.2023100.45 кб, pdf
- Экспертиза проектной документации, корпус Indian Ocean 2.1 31.03.2023510.46 кб, pdf
- Проект договора участия в долевом строительстве, корпус Indian Ocean 2.1 01.04.2022713.38 кб, pdf
- Градостроительный план земельного участка, корпус Indian Ocean 2.1 18.12.20202.60 мб, pdf
- Информация о выданных заключениях о соответствии застройщика и проектной декларации требованиям 214-ФЗ 77-002029 ЗОС/044/77-002029, корпус Indian Ocean 2.1 06.07.2020749.78 кб, pdf
- Схема планировочной организации земельного участка, корпус Indian Ocean 2.1 08.06.202033.33 мб, pdf
- Разрешение на строительство 77-179000-018925-2020, корпус Indian Ocean 2.1 05.06.20202.43 мб, pdf
- Проектная декларация № 77-002029, корпус Indian Ocean 8 23.06.20231.41 мб, pdf
- Разрешение на ввод 77-08-011449-2023, корпус Indian Ocean 8 05.06.2023100.45 кб, pdf
- Экспертиза проектной документации, корпус Indian Ocean 8 31.03.2023510.46 кб, pdf
- Проект договора участия в долевом строительстве, корпус Indian Ocean 8 01.04.2022713.38 кб, pdf
- Градостроительный план земельного участка, корпус Indian Ocean 8 18.12.20202.60 мб, pdf
- Информация о выданных заключениях о соответствии застройщика и проектной декларации требованиям 214-ФЗ 77-002029 ЗОС/044/77-002029, корпус Indian Ocean 8 06.07.2020749.78 кб, pdf
- Схема планировочной организации земельного участка, корпус Indian Ocean 8 08.06.202033.33 мб, pdf
- Разрешение на строительство 77-179000-018925-2020, корпус Indian Ocean 8 05.06.20202.43 мб, pdf
- Проектная декларация № 77-002029, корпус Indian Ocean 7 23.06.20231.41 мб, pdf
- Разрешение на ввод 77-08-011449-2023, корпус Indian Ocean 7 05.06.2023100.45 кб, pdf
- Экспертиза проектной документации, корпус Indian Ocean 7 31.03.2023510.46 кб, pdf
- Проект договора участия в долевом строительстве, корпус Indian Ocean 7 01.04.2022713.38 кб, pdf
- Градостроительный план земельного участка, корпус Indian Ocean 7 18.12.20202.60 мб, pdf
- Информация о выданных заключениях о соответствии застройщика и проектной декларации требованиям 214-ФЗ 77-002029 ЗОС/044/77-002029, корпус Indian Ocean 7 06.07.2020749.78 кб, pdf
- Схема планировочной организации земельного участка, корпус Indian Ocean 7 08.06.202033.33 мб, pdf
- Разрешение на строительство 77-179000-018925-2020, корпус Indian Ocean 7 05.06.20202.43 мб, pdf
- Проектная декларация № 77-002029, корпус Indian Ocean 6 23.06.20231.41 мб, pdf
- Экспертиза проектной документации, корпус Indian Ocean 6 31.03.2023510.46 кб, pdf
- Проект договора участия в долевом строительстве, корпус Indian Ocean 6 01.04.2022713.38 кб, pdf
- Градостроительный план земельного участка, корпус Indian Ocean 6 18.12.20202.60 мб, pdf
- Извещение о начале строительства, корпус Indian Ocean 6 12.08.20203.00 мб, pdf
- Информация о выданных заключениях о соответствии застройщика и проектной декларации требованиям 214-ФЗ 77-002029 ЗОС/044/77-002029, корпус Indian Ocean 6 06.07.2020749.78 кб, pdf
- Схема планировочной организации земельного участка, корпус Indian Ocean 6 08.06.202033.33 мб, pdf
- Разрешение на строительство 77-179000-018925-2020, корпус Indian Ocean 6 05.06.20202.43 мб, pdf
- Проектная декларация № 77-002029, корпус Indian Ocean 5 23.06.20231.41 мб, pdf
- Разрешение на ввод 77-08-011449-2023, корпус Indian Ocean 5 05.06.2023100.45 кб, pdf
- Экспертиза проектной документации, корпус Indian Ocean 5 31.03.2023510.46 кб, pdf
- Проект договора участия в долевом строительстве, корпус Indian Ocean 5 01.04.2022713.38 кб, pdf
- Градостроительный план земельного участка, корпус Indian Ocean 5 18.12.20202.60 мб, pdf
- Информация о выданных заключениях о соответствии застройщика и проектной декларации требованиям 214-ФЗ 77-002029 ЗОС/044/77-002029, корпус Indian Ocean 5 06.07.2020749.78 кб, pdf
- Схема планировочной организации земельного участка, корпус Indian Ocean 5 08.06.202033.33 мб, pdf
- Разрешение на строительство 77-179000-018925-2020, корпус Indian Ocean 5 05.06.20202.43 мб, pdf
- Проектная декларация № 77-002029, корпус Indian Ocean 4 23.06.20231.41 мб, pdf
- Разрешение на ввод 77-08-011449-2023, корпус Indian Ocean 4 05.06.2023100.45 кб, pdf
- Экспертиза проектной документации, корпус Indian Ocean 4 31.03.2023510.46 кб, pdf
- Проект договора участия в долевом строительстве, корпус Indian Ocean 4 01.04.2022713.38 кб, pdf
- Градостроительный план земельного участка, корпус Indian Ocean 4 18.12.20202.60 мб, pdf
- Информация о выданных заключениях о соответствии застройщика и проектной декларации требованиям 214-ФЗ 77-002029 ЗОС/044/77-002029, корпус Indian Ocean 4 06.07.2020749.78 кб, pdf
- Схема планировочной организации земельного участка, корпус Indian Ocean 4 08.06.202033.33 мб, pdf
- Разрешение на строительство 77-179000-018925-2020, корпус Indian Ocean 4 05.06.20202.43 мб, pdf
- Проектная декларация № 77-002029, корпус Indian Ocean 3 23.06.20231.41 мб, pdf
- Экспертиза проектной документации, корпус Indian Ocean 3 31.03.2023510.46 кб, pdf
- Проект договора участия в долевом строительстве, корпус Indian Ocean 3 01.04.2022713.38 кб, pdf
- Градостроительный план земельного участка, корпус Indian Ocean 3 18.12.20202.60 мб, pdf
- Извещение о начале строительства, корпус Indian Ocean 3 12.08.20203.00 мб, pdf
- Информация о выданных заключениях о соответствии застройщика и проектной декларации требованиям 214-ФЗ 77-002029 ЗОС/044/77-002029, корпус Indian Ocean 3 06.07.2020749.78 кб, pdf
- Схема планировочной организации земельного участка, корпус Indian Ocean 3 08.06.202033.33 мб, pdf
- Разрешение на строительство 77-179000-018925-2020, корпус Indian Ocean 3 05.06.20202.43 мб, pdf
- Проектная декларация № 77-002029, корпус Indian Ocean 2 23.06.20231.41 мб, pdf
- Разрешение на ввод 77-08-011449-2023, корпус Indian Ocean 2 05.06.2023100.45 кб, pdf
- Экспертиза проектной документации, корпус Indian Ocean 2 31.03.2023510.46 кб, pdf
- Проект договора участия в долевом строительстве, корпус Indian Ocean 2 01.04.2022713.38 кб, pdf
- Градостроительный план земельного участка, корпус Indian Ocean 2 18.12.20202.60 мб, pdf
- Информация о выданных заключениях о соответствии застройщика и проектной декларации требованиям 214-ФЗ 77-002029 ЗОС/044/77-002029, корпус Indian Ocean 2 06.07.2020749.78 кб, pdf
- Схема планировочной организации земельного участка, корпус Indian Ocean 2 08.06.202033.33 мб, pdf
- Разрешение на строительство 77-179000-018925-2020, корпус Indian Ocean 2 05.06.20202.43 мб, pdf
- Проектная декларация № 77-002029, корпус Indian Ocean 1 23.06.20231.41 мб, pdf
- Экспертиза проектной документации, корпус Indian Ocean 1 31.03.2023510.46 кб, pdf
- Проект договора участия в долевом строительстве, корпус Indian Ocean 1 01.04.2022713.38 кб, pdf
- Градостроительный план земельного участка, корпус Indian Ocean 1 18.12.20202.60 мб, pdf
- Извещение о начале строительства, корпус Indian Ocean 1 12.08.20203.00 мб, pdf
- Информация о выданных заключениях о соответствии застройщика и проектной декларации требованиям 214-ФЗ 77-002029 ЗОС/044/77-002029, корпус Indian Ocean 1 06.07.2020749.78 кб, pdf
- Схема планировочной организации земельного участка, корпус Indian Ocean 1 08.06.202033.33 мб, pdf
- Разрешение на строительство 77-179000-018925-2020, корпус Indian Ocean 1 05.06.20202.43 мб, pdf




























