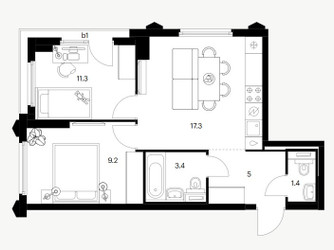
2-Комнатная квартира, 47.9 м², ID 578760
Обновлено вчера
18 614 000 ₽
388 601 ₽ / м2
- Срок сдачи
- IV квартал 2026
- Застройщик
- нет данных
- Общая площадь
- 47.9 м2
- Жилая площадь
- 20.1 м2
- Площадь кухни
- 17.3 м2
- Высота потолков
- 2.62 м
- Этаж
- 14 из 33
- Корпус
- 22.1-22.4
- Отделка
- не указана
- Санузел
- Раздельный
- ID
- 578760
Расположение
Описание
Двухкомнатная квартира, 47.9 м2 в ЖК Бусиновский парк от
Продается 2-комн. квартира в новостройке ЖК Бусиновский парк за 18 614 000 руб, находящаяся по адресу Москва, Северный (САО), Западное Дегунино, ул Ижорская, д 6. Застройщик «ПИК». Квартира сдается в 4 квартале 2026 года в 18 минутах пешком от станции метрополитена Ховрино. Общая площадь квартиры - 47.9 кв. м. Этаж 14 из 32. ID квартиры на СтройкиРУ 578760, назовите его когда будете звонить.
Подробнее о ЖК Бусиновский парк
Особенности
Ход строительства
Документация
- Проектная декларация № 77-002510, корпус 21.4 06.06.20231.05 мб, pdf
- Проект договора участия в долевом строительстве, корпус 21.4 29.12.2022198.77 кб, pdf
- Извещение о начале строительства, корпус 21.4 06.06.20221.79 мб, pdf
- Разрешение на строительство 77-I 31000-020220-2022, корпус 21.4 19.05.20221.82 мб, pdf
- Схема планировочной организации земельного участка, корпус 21.4 17.02.20228.22 мб, pdf
- Градостроительный план земельного участка, корпус 21.4 17.02.20221.98 мб, pdf
- Экспертиза проектной документации, корпус 21.4 09.02.20221.03 мб, pdf
- Проектная декларация № 77-002510, корпус 21.3 06.06.20231.05 мб, pdf
- Проект договора участия в долевом строительстве, корпус 21.3 29.12.2022198.77 кб, pdf
- Извещение о начале строительства, корпус 21.3 06.06.20221.79 мб, pdf
- Разрешение на строительство 77-I 31000-020220-2022, корпус 21.3 19.05.20221.82 мб, pdf
- Градостроительный план земельного участка, корпус 21.3 17.02.20221.98 мб, pdf
- Схема планировочной организации земельного участка, корпус 21.3 17.02.20228.22 мб, pdf
- Экспертиза проектной документации, корпус 21.3 09.02.20221.03 мб, pdf
- Проектная декларация № 77-002381, корпус 21.1 06.06.20231.02 мб, pdf
- Проект договора участия в долевом строительстве, корпус 21.1 29.12.2022198.77 кб, pdf
- Извещение о начале строительства, корпус 21.1 19.01.202286.24 кб, pdf
- Градостроительный план земельного участка, корпус 21.1 30.12.20211.98 мб, pdf
- Схема планировочной организации земельного участка, корпус 21.1 30.12.20216.12 мб, pdf
- Разрешение на строительство 77-131000-019958-2021, корпус 21.1 29.12.20212.69 мб, pdf
- Экспертиза проектной документации, корпус 21.1 16.12.2021474.68 кб, pdf
- Информация о выданных заключениях о соответствии застройщика и проектной декларации требованиям 214-ФЗ 77-002170 ЗОС/162/77-002170, корпус 21.1 09.02.2021623.73 кб, pdf
- Проектная декларация № 77-002381, корпус 21.2 06.06.20231.02 мб, pdf
- Проект договора участия в долевом строительстве, корпус 21.2 29.12.2022198.77 кб, pdf
- Извещение о начале строительства, корпус 21.2 19.01.20222.39 мб, pdf
- Схема планировочной организации земельного участка, корпус 21.2 30.12.20216.12 мб, pdf
- Градостроительный план земельного участка, корпус 21.2 30.12.20211.98 мб, pdf
- Разрешение на строительство 77-131000-019958-2021, корпус 21.2 29.12.20212.69 мб, pdf
- Экспертиза проектной документации, корпус 21.2 16.12.2021474.68 кб, pdf
- Информация о выданных заключениях о соответствии застройщика и проектной декларации требованиям 214-ФЗ 77-002170 ЗОС/162/77-002170, корпус 21.2 09.02.2021623.73 кб, pdf
- Разрешение на ввод 77-09-011192-2022, корпус 2.1 30.12.2022171.08 кб, pdf
- Проектная декларация № 77-002170, корпус 2.1 07.12.20221.11 мб, pdf
- Градостроительный план земельного участка, корпус 2.1 02.12.20221.47 мб, pdf
- Схема планировочной организации земельного участка, корпус 2.1 02.12.20229.80 мб, pdf
- Экспертиза проектной документации, корпус 2.1 01.12.2022465.32 кб, pdf
- Информация о выданных заключениях о соответствии застройщика и проектной декларации требованиям 214-ФЗ 77-002170 ЗОС/162/77-002170, корпус 2.1 09.02.2021623.73 кб, pdf
- Разрешение на строительство 77-131000-019344-2021, корпус 2.1 19.01.20212.82 мб, pdf
- Разрешение на ввод 77-09-011192-2022, корпус 2.2 30.12.2022171.08 кб, pdf
- Проектная декларация № 77-002170, корпус 2.2 07.12.20221.11 мб, pdf
- Схема планировочной организации земельного участка, корпус 2.2 02.12.20229.80 мб, pdf
- Градостроительный план земельного участка, корпус 2.2 02.12.20221.47 мб, pdf
- Экспертиза проектной документации, корпус 2.2 01.12.2022465.32 кб, pdf
- Проект договора участия в долевом строительстве, корпус 2.2 12.02.2021220.45 кб, pdf
- Извещение о начале строительства, корпус 2.2 09.02.2021101.10 кб, pdf
- Информация о выданных заключениях о соответствии застройщика и проектной декларации требованиям 214-ФЗ 77-002170 ЗОС/162/77-002170, корпус 2.2 09.02.2021623.73 кб, pdf
- Разрешение на строительство 77-131000-019344-2021, корпус 2.2 19.01.20212.82 мб, pdf
- Разрешение на ввод 77-09-011192-2022, корпус 1.2 30.12.2022171.08 кб, pdf
- Проектная декларация № 77-002170, корпус 1.2 07.12.20221.11 мб, pdf
- Градостроительный план земельного участка, корпус 1.2 02.12.20221.47 мб, pdf
- Схема планировочной организации земельного участка, корпус 1.2 02.12.20229.80 мб, pdf
- Экспертиза проектной документации, корпус 1.2 01.12.2022465.32 кб, pdf
- Информация о выданных заключениях о соответствии застройщика и проектной декларации требованиям 214-ФЗ 77-002170 ЗОС/162/77-002170, корпус 1.2 09.02.2021623.73 кб, pdf
- Разрешение на строительство 77-131000-019344-2021, корпус 1.2 19.01.20212.82 мб, pdf
- Разрешение на ввод 77-09-011192-2022, корпус 1.1 30.12.2022171.08 кб, pdf
- Проектная декларация № 77-002170, корпус 1.1 07.12.20221.11 мб, pdf
- Схема планировочной организации земельного участка, корпус 1.1 02.12.20229.80 мб, pdf
- Градостроительный план земельного участка, корпус 1.1 02.12.20221.47 мб, pdf
- Экспертиза проектной документации, корпус 1.1 01.12.2022465.32 кб, pdf
- Информация о выданных заключениях о соответствии застройщика и проектной декларации требованиям 214-ФЗ 77-002170 ЗОС/162/77-002170, корпус 1.1 09.02.2021623.73 кб, pdf
- Разрешение на строительство 77-131000-019344-2021, корпус 1.1 19.01.20212.82 мб, pdf
- Разрешение на ввод 77-09-011192-2022, корпус Корпус 2.2 30.12.2022171.08 кб, pdf
- Проектная декларация № 77-002170, корпус Корпус 2.2 07.12.20221.11 мб, pdf
- Схема планировочной организации земельного участка, корпус Корпус 2.2 02.12.20229.80 мб, pdf
- Градостроительный план земельного участка, корпус Корпус 2.2 02.12.20221.47 мб, pdf
- Экспертиза проектной документации, корпус Корпус 2.2 01.12.2022465.32 кб, pdf
- Проект договора участия в долевом строительстве, корпус Корпус 2.2 12.02.2021220.45 кб, pdf
- Информация о выданных заключениях о соответствии застройщика и проектной декларации требованиям 214-ФЗ 77-002170 ЗОС/162/77-002170, корпус Корпус 2.2 09.02.2021623.73 кб, pdf
- Извещение о начале строительства, корпус Корпус 2.2 09.02.2021101.10 кб, pdf
- Разрешение на строительство 77-131000-019344-2021, корпус Корпус 2.2 19.01.20212.82 мб, pdf
- Разрешение на ввод 77-09-011192-2022, корпус Корпус 2.1 30.12.2022171.08 кб, pdf
- Проектная декларация № 77-002170, корпус Корпус 2.1 07.12.20221.11 мб, pdf
- Градостроительный план земельного участка, корпус Корпус 2.1 02.12.20221.47 мб, pdf
- Схема планировочной организации земельного участка, корпус Корпус 2.1 02.12.20229.80 мб, pdf
- Экспертиза проектной документации, корпус Корпус 2.1 01.12.2022465.32 кб, pdf
- Информация о выданных заключениях о соответствии застройщика и проектной декларации требованиям 214-ФЗ 77-002170 ЗОС/162/77-002170, корпус Корпус 2.1 09.02.2021623.73 кб, pdf
- Разрешение на строительство 77-131000-019344-2021, корпус Корпус 2.1 19.01.20212.82 мб, pdf
- Разрешение на ввод 77-09-011192-2022, корпус Корпус 1.2 30.12.2022171.08 кб, pdf
- Проектная декларация № 77-002170, корпус Корпус 1.2 07.12.20221.11 мб, pdf
- Градостроительный план земельного участка, корпус Корпус 1.2 02.12.20221.47 мб, pdf
- Схема планировочной организации земельного участка, корпус Корпус 1.2 02.12.20229.80 мб, pdf
- Экспертиза проектной документации, корпус Корпус 1.2 01.12.2022465.32 кб, pdf
- Информация о выданных заключениях о соответствии застройщика и проектной декларации требованиям 214-ФЗ 77-002170 ЗОС/162/77-002170, корпус Корпус 1.2 09.02.2021623.73 кб, pdf
- Разрешение на строительство 77-131000-019344-2021, корпус Корпус 1.2 19.01.20212.82 мб, pdf
- Разрешение на ввод 77-09-011192-2022, корпус Корпус 1.1 30.12.2022171.08 кб, pdf
- Проектная декларация № 77-002170, корпус Корпус 1.1 07.12.20221.11 мб, pdf
- Градостроительный план земельного участка, корпус Корпус 1.1 02.12.20221.47 мб, pdf
- Схема планировочной организации земельного участка, корпус Корпус 1.1 02.12.20229.80 мб, pdf
- Экспертиза проектной документации, корпус Корпус 1.1 01.12.2022465.32 кб, pdf
- Информация о выданных заключениях о соответствии застройщика и проектной декларации требованиям 214-ФЗ 77-002170 ЗОС/162/77-002170, корпус Корпус 1.1 09.02.2021623.73 кб, pdf
- Разрешение на строительство 77-131000-019344-2021, корпус Корпус 1.1 19.01.20212.82 мб, pdf
















































