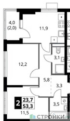
2-Комнатная квартира, 53.3 м², ID 346863
Обновлено Сегодня, 13:18
13 437 356 ₽
252 108 ₽ / м2
- Срок сдачи
- I квартал 2026
- Застройщик
- нет данных
- Общая площадь
- 53.3 м2
- Жилая площадь
- 23.7 м2
- Площадь кухни
- 11.9 м2
- Высота потолков
- 2.72 м
- Этаж
- 16 из 18
- Корпус
- 1
- Отделка
- Предчистовая
- Санузел
- Раздельный
- ID
- 346863
Расположение
Описание
Двухкомнатная квартира, 53.3 м2 в ЖК 1-й Ясеневский (Первый Ясеневский) от
Продается двухкомнатная квартира в новостройке ЖК 1-й Ясеневский (Первый Ясеневский) за 13 437 356 рублей, находящаяся по адресу Москва, Новомосковский (НАО), Мосрентген, ул Голубинская. Компания застройщик ДСК №1. Квартира сдается в I квартале 2026 года с предчистовой отделкой, в 18 минутах на машине от станции метрополитена Тёплый Стан. Общая площадь квартиры - 53.3 м². Этаж 16 из 18. ID квартиры на СтройкиРУ 346863, назовите его когда будете звонить.




















