2-Комнатная квартира, 53.3 м², ID 585146
Обновлено позавчера
23 388 000 ₽
438 799 ₽ / м2
- ЖК
- Нарвин
- Срок сдачи
- II квартал 2028
- Застройщик
- нет данных
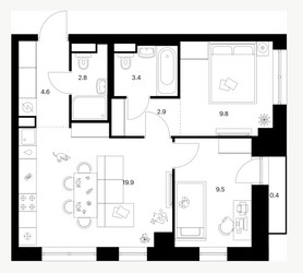
- Общая площадь
- 53.3 м2
- Жилая площадь
- 19.3 м2
- Площадь кухни
- 19.9 м2
- Высота потолков
- 2.74 м
- Этаж
- 11 из 38
- Корпус
- 1.2
- Отделка
- не указана
- Санузел
- Раздельный
- ID
- 585146
Расположение
Описание
Двухкомнатная квартира, 53.3 м2 в Нарвин от
Продается двухкомнатная квартира в новостройке Нарвин за 23 388 000 рублей, находящаяся по адресу Москва, Северный (САО), Головинский, Кронштадтский б-р. Компания застройщик «ПИК». Квартира сдается в II квартале 2028 года в 11 минутах пешком от станции метрополитена Водный стадион. Общая площадь квартиры - 53.3 м². Этаж 11 из 38. ID квартиры на СтройкиРУ 585146, назовите его когда будете звонить.


















