Реклама. Застройщик

Проектная декларация на наш.дом.рф. Токен: 2SDnjewfm2q.

Поствью

Реклама. Застройщик LEGENDA Intelligent Development

Проектная декларация на наш.дом.рф. Токен: 2SDnjewfm2q.

LEGENDA Intelligent DevelopmentПоствью

Реклама. Застройщик LEGENDA Intelligent Development

Проектная декларация на наш.дом.рф. Токен: 2SDnjewfm2q.

LEGENDA Intelligent DevelopmentПоствью

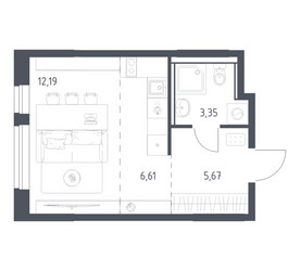
Квартира-студия, 27.82 м², ID 699785

6 914 967 ₽

248 561 ₽ / м2

Срок сдачи
III квартал 2028
Застройщик
нет данных
Общая площадь
27.82 м2
Жилая площадь
12.19 м2
Площадь кухни
27.82 м2
Этаж
9 из 17
Отделка
Черновая
ID
699785

Описание

Студия квартира, 27.82 м2 в ЖК Квартал Ивакино от

Продается квартира-студия в новостройке ЖК Квартал Ивакино за 6 914 967 р, находящаяся по адресу Химки, СНТ ИВАКИНО. Застройщик дома Группа "Самолет". Квартира сдается в III квартале 2028 года с черновой отделкой, в 24 минутах на машине от станции метрополитена Ховрино. Общая площадь квартиры - 27.82 м². Этаж 9 из 17. ID квартиры на СтройкиРУ 699785, назовите его когда будете звонить.

Подробнее о ЖК Квартал Ивакино

“Квартал Ивакино” - жилой комплекс комфорт-класса в микрорайоне Клязьма-Старбеево города Химки. Квартал расположен  в непосредственной близости к реке Клязьма и ее набережной, что добавляет желания купить квартиру в этом комплексе. Застройщиком предложены на выбор ряд лотов: от уютных студий до просторных четырехкомнатных квартир. Инфраструктура и благоустройство Транспортное сообщение хорошо развито. До платной трассы М-11 “Нева” и Дмитровского шоссе — 10 минут. Расстояние до МКАД от проекта составляет 12 км В пешей  доступности Химкинский лесопарк, до парка Мысово в Долгопрудном 20 минут на автомобиле, до парка Яковлево на берегу Клязьмы - 5 минут На территории комплекса собственные 2 школы, 3 детских сада, поликлиника и физкультурно-оздоровительный  центр На первых этажах жилого комплекса коммерческие помещения: магазины, кафетерии, рестораны, аптеки На территории комплекса концепция “двор без машин”, для удобства жителей предусмотрен наземный паркинг В жилом комплексе расположены игровые и спортивные площадки для жителей дома Все квартиры в доме отдаются покупателям с готовой отделкой в светлых тонах, что позволяет не тратить время и нервы на ремонт Страница ЖК >>
Застройщик %_NAME_% Застройщик %_NAME_%
%_YEAR_%Год основания
99Сдано корпусов в 9 ЖК
999Строится корпусов в 99 ЖК

Жилые комплексы от

Ход строительства

Популярные жилые комплексы

    Похожие квартиры

    Студия квартира, 27.82 м2

    6 914 967 ₽

    248 561 ₽ / м2

    Срок сдачи III кв. 2028

    Застройщик

    Количество объектов:

    Застройщик %_NAME_%
    Показать телефон

    Застройщик