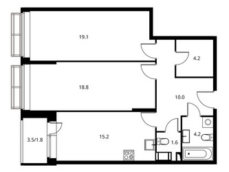
2-Комнатная квартира, 74.88 м², ID 697893
Обновлено Сегодня, 03:05
14 228 798 ₽
190 021 ₽ / м2
- Срок сдачи
- IV квартал 2023
- Застройщик
- нет данных
- Общая площадь
- 74.88 м2
- Жилая площадь
- 37.9 м2
- Площадь кухни
- 74.88 м2
- Этаж
- 7 из 16
- Отделка
- Черновая
- ID
- 697893
Описание
Двухкомнатная квартира, 74.88 м2 в ЖК Солнечный парк от
Продается двухкомнатная квартира в новостройке ЖК Солнечный парк за 14 228 798 р, находящаяся по адресу Щёлково, ул Центральная, д 71А. Застройщик дома Олимп-Альянс. Квартира сдается в IV квартале 2023 года с черновой отделкой, . Общая площадь квартиры - 74.88 м². Этаж 7 из 17. ID квартиры на СтройкиРУ 697893, назовите его когда будете звонить.
Подробнее о ЖК Солнечный парк
Особенности
Ход строительства
Документация
- Разрешение на ввод №91-RU93512000-0060-2021, корпус 2 30.11.20212.98 мб, pdf
- Проектная декларация № 91-000286, корпус 2 09.11.2021184.50 кб, pdf
- Проект договора участия в долевом строительстве, корпус 2 19.11.2020771.42 кб, pdf
- Извещение о начале строительства, корпус 2 02.09.2020350.26 кб, pdf
- Информация о выданных заключениях о соответствии застройщика и проектной декларации требованиям 214-ФЗ 91-000286 ЗОС/026/91-000286, корпус 2 29.07.20202.46 мб, pdf
- Схема планировочной организации земельного участка, корпус 2 14.07.202010.85 мб, pdf
- Градостроительный план земельного участка, корпус 2 14.07.20201.27 мб, pdf
- Разрешение на строительство 91-RU9351200-0060-2020, корпус 2 15.06.20203.34 мб, pdf
- Экспертиза проектной документации, корпус 2 15.08.20193.73 мб, pdf
- Разрешение на ввод №91-RU93512000-0060-2021, корпус 4 30.11.20212.98 мб, pdf
- Проектная декларация № 91-000286, корпус 4 09.11.2021184.50 кб, pdf
- Проект договора участия в долевом строительстве, корпус 4 19.11.2020771.42 кб, pdf
- Извещение о начале строительства, корпус 4 02.09.2020350.26 кб, pdf
- Информация о выданных заключениях о соответствии застройщика и проектной декларации требованиям 214-ФЗ 91-000286 ЗОС/026/91-000286, корпус 4 29.07.20202.46 мб, pdf
- Схема планировочной организации земельного участка, корпус 4 14.07.202010.85 мб, pdf
- Градостроительный план земельного участка, корпус 4 14.07.20201.27 мб, pdf
- Разрешение на строительство 91-RU9351200-0060-2020, корпус 4 15.06.20203.34 мб, pdf
- Экспертиза проектной документации, корпус 4 15.08.20193.73 мб, pdf
- Разрешение на ввод №91-RU93512000-0060-2021, корпус 2а 30.11.20212.98 мб, pdf
- Проектная декларация № 91-000286, корпус 2а 09.11.2021184.50 кб, pdf
- Проект договора участия в долевом строительстве, корпус 2а 19.11.2020771.42 кб, pdf
- Извещение о начале строительства, корпус 2а 02.09.2020350.26 кб, pdf
- Информация о выданных заключениях о соответствии застройщика и проектной декларации требованиям 214-ФЗ 91-000286 ЗОС/026/91-000286, корпус 2а 29.07.20202.46 мб, pdf
- Градостроительный план земельного участка, корпус 2а 14.07.20201.27 мб, pdf
- Схема планировочной организации земельного участка, корпус 2а 14.07.202010.85 мб, pdf
- Разрешение на строительство 91-RU9351200-0060-2020, корпус 2а 15.06.20203.34 мб, pdf
- Экспертиза проектной документации, корпус 2а 15.08.20193.73 мб, pdf




















