3-Комнатная квартира, 74.7 м², ID 686238
Обновлено Сегодня, 02:11
13 466 000 ₽
180 268 ₽ / м2
- Срок сдачи
- I квартал 2025
- Застройщик
- нет данных
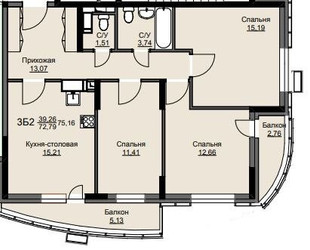
- Общая площадь
- 74.7 м2
- Площадь кухни
- 74.7 м2
- Этаж
- 17 из 10
- Отделка
- Предчистовая
- ID
- 686238
Описание
Трехкомнатная квартира, 74.7 м2 в ЖК Соболевка от
Продается трехкомнатная квартира в новостройке ЖК Соболевка стоимостью 13 466 000 рублей, по адресу Щёлково, ул Новая Фабрика, д 25. Компания застройщик Гранд. Квартира сдается в I квартале 2025 года с предчистовой отделкой, в 57 минутах на машине от станции метро Щёлковская. Общая площадь квартиры - 74.7 м². Этаж 17 из 17. ID квартиры на СтройкиРУ 686238, скажите его когда будете звонить.
Подробнее о ЖК Соболевка
Особенности
Ход строительства
Документация
- Проектная декларация № 50-002679, корпус 1 25.01.2022276.86 кб, pdf
- Разрешение на ввод RU50-14-20586-2022, корпус 1 19.01.2022192.11 кб, pdf
- Проект договора участия в долевом строительстве, корпус 1 19.08.202163.79 кб, pdf
- Схема планировочной организации земельного участка, корпус 1 02.03.202029.89 мб, pdf
- Извещение о начале строительства, корпус 1 20.02.20201.13 мб, pdf
- Информация о выданных заключениях о соответствии застройщика и проектной декларации требованиям 214-ФЗ 50-002679 ЗОС/011/50-002679, корпус 1 19.02.2020743.05 кб, pdf
- Разрешение на строительство RU50-14-14351-2019, корпус 1 24.09.2019166.65 кб, pdf
- Градостроительный план земельного участка, корпус 1 31.07.20193.45 мб, pdf
- Экспертиза проектной документации, корпус 1 22.05.2019701.70 кб, pdf















