1-Комнатная квартира, 53 м², ID 686128
Обновлено Позавчера
8 480 000 ₽
160 000 ₽ / м2
- Срок сдачи
- I квартал 2025
- Застройщик
- нет данных
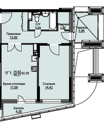
- Общая площадь
- 53 м2
- Площадь кухни
- 53 м2
- Этаж
- 9 из 10
- Отделка
- не указана
- ID
- 686128
Описание
Однокомнатная квартира, 53 м2 в ЖК Соболевка от
Продается однокомнатная квартира в новостройке ЖК Соболевка по цене 8 480 000 р, расположенная по адресу Щёлково, ул Новая Фабрика, д 25. Застройщик дома Гранд. Квартира сдается в I квартале 2025 года в 57 минутах на машине от метро Щёлковская. Общая площадь квартиры - 53 м². Этаж 9 из 17. ID квартиры на СтройкиРУ 686128, сообщите его когда будете звонить.
Подробнее о ЖК Соболевка
Особенности
Ход строительства
Документация
- Проектная декларация № 50-002679, корпус 1 25.01.2022276.86 кб, pdf
- Разрешение на ввод RU50-14-20586-2022, корпус 1 19.01.2022192.11 кб, pdf
- Проект договора участия в долевом строительстве, корпус 1 19.08.202163.79 кб, pdf
- Схема планировочной организации земельного участка, корпус 1 02.03.202029.89 мб, pdf
- Извещение о начале строительства, корпус 1 20.02.20201.13 мб, pdf
- Информация о выданных заключениях о соответствии застройщика и проектной декларации требованиям 214-ФЗ 50-002679 ЗОС/011/50-002679, корпус 1 19.02.2020743.05 кб, pdf
- Разрешение на строительство RU50-14-14351-2019, корпус 1 24.09.2019166.65 кб, pdf
- Градостроительный план земельного участка, корпус 1 31.07.20193.45 мб, pdf
- Экспертиза проектной документации, корпус 1 22.05.2019701.70 кб, pdf















