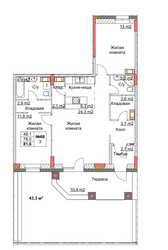
3-Комнатная квартира, 83.5 м², ID 220603
Обновлено 3 дня назад
6 998 000 ₽
83 808 ₽ / м2
- Срок сдачи
- I квартал 2022
- Застройщик
- нет данных
- Общая площадь
- 83.5 м2
- Жилая площадь
- 49.1 м2
- Площадь кухни
- 6.3 м2
- Этаж
- 1 из 8
- Корпус
- 6 дом
- Отделка
- Черновая
- Санузел
- Раздельный
- ID
- 220603
Описание
Трехкомнатная квартира, 83.5 м2 в ЖК Клюквенный от
Продается 3-комн. квартира в новостройке ЖК Клюквенный по цене 6 998 000 руб, расположенная по адресу Щёлково, ул Нагорная. Застройщик Гранд. Квартира сдается в 1 квартале 2022 года с черновой отделкой, в 50 минутах на машине от метро Щёлковская. Общая площадь квартиры - 83.5 кв. м. Этаж 1 из 7. ID квартиры на СтройкиРУ 220603, сообщите его когда будете звонить.
Подробнее о ЖК Клюквенный
Особенности
Ход строительства
Документация
- Проектная декларация № 50-002677, корпус 5 дом 15.02.2022300.60 кб, pdf
- Разрешение на ввод RU50-14-20906-2022, корпус 5 дом 15.02.2022148.35 кб, pdf
- Проект договора участия в долевом строительстве, корпус 5 дом 19.08.202169.83 кб, pdf
- Извещение о начале строительства, корпус 5 дом 10.09.2020439.10 кб, pdf
- Информация о выданных заключениях о соответствии застройщика и проектной декларации требованиям 214-ФЗ 50-002677 00299-19ИСХ/ЗОСТ, корпус 5 дом 28.08.2019743.48 кб, pdf
- Схема планировочной организации земельного участка, корпус 5 дом 28.12.201811.15 мб, pdf
- Градостроительный план земельного участка, корпус 5 дом 27.12.201814.54 мб, pdf
- Разрешение на строительство RU50-14-12346-2018, корпус 5 дом 07.12.2018203.15 кб, pdf
- Экспертиза проектной документации, корпус 5 дом 08.10.20183.62 мб, pdf
- Проектная декларация № 50-002677, корпус 6 дом 15.02.2022300.60 кб, pdf
- Разрешение на ввод RU50-14-20906-2022, корпус 6 дом 15.02.2022148.35 кб, pdf
- Проект договора участия в долевом строительстве, корпус 6 дом 19.08.202169.83 кб, pdf
- Извещение о начале строительства, корпус 6 дом 10.09.2020439.10 кб, pdf
- Информация о выданных заключениях о соответствии застройщика и проектной декларации требованиям 214-ФЗ 50-002677 00299-19ИСХ/ЗОСТ, корпус 6 дом 28.08.2019743.48 кб, pdf
- Схема планировочной организации земельного участка, корпус 6 дом 28.12.201811.15 мб, pdf
- Градостроительный план земельного участка, корпус 6 дом 27.12.201814.54 мб, pdf
- Разрешение на строительство RU50-14-12346-2018, корпус 6 дом 07.12.2018203.15 кб, pdf
- Экспертиза проектной документации, корпус 6 дом 08.10.20183.62 мб, pdf
- Проектная декларация № 50-002677, корпус 2 15.02.2022300.60 кб, pdf
- Разрешение на ввод RU50-14-20906-2022, корпус 2 15.02.2022148.35 кб, pdf
- Проект договора участия в долевом строительстве, корпус 2 19.08.202169.83 кб, pdf
- Извещение о начале строительства, корпус 2 10.09.2020439.10 кб, pdf
- Информация о выданных заключениях о соответствии застройщика и проектной декларации требованиям 214-ФЗ 50-002677 00299-19ИСХ/ЗОСТ, корпус 2 28.08.2019743.48 кб, pdf
- Схема планировочной организации земельного участка, корпус 2 28.12.201811.15 мб, pdf
- Градостроительный план земельного участка, корпус 2 27.12.201814.54 мб, pdf
- Разрешение на строительство RU50-14-12346-2018, корпус 2 07.12.2018203.15 кб, pdf
- Экспертиза проектной документации, корпус 2 08.10.20183.62 мб, pdf
- Проектная декларация № 50-002677, корпус 1 15.02.2022300.60 кб, pdf
- Разрешение на ввод RU50-14-20906-2022, корпус 1 15.02.2022148.35 кб, pdf
- Проект договора участия в долевом строительстве, корпус 1 19.08.202169.83 кб, pdf
- Извещение о начале строительства, корпус 1 10.09.2020439.10 кб, pdf
- Информация о выданных заключениях о соответствии застройщика и проектной декларации требованиям 214-ФЗ 50-002677 00299-19ИСХ/ЗОСТ, корпус 1 28.08.2019743.48 кб, pdf
- Схема планировочной организации земельного участка, корпус 1 28.12.201811.15 мб, pdf
- Градостроительный план земельного участка, корпус 1 27.12.201814.54 мб, pdf
- Разрешение на строительство RU50-14-12346-2018, корпус 1 07.12.2018203.15 кб, pdf
- Экспертиза проектной документации, корпус 1 08.10.20183.62 мб, pdf


























