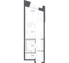
Апартаменты-студия, 29.6 м², ID 702176
Обновлено Вчера, 14:50
16 046 095 ₽
542 098 ₽ / м2
Описание
Студия апартаменты, 29.6 м2 в ЖК Скай Спутник от
Продаются апартаменты-студия в новостройке ЖК Скай Спутник по цене 16 046 095 рублей, расположенные по адресу Одинцово, деревня Раздоры, ул Липовой Рощи, д 1 к 1. Компания застройщик Группа "Самолет". Апартаменты сдаются в IV квартале 2026 года с чистовой отделкой, в 18 минутах на машине от метро Строгино. Общая площадь апартаментов - 29.6 м². Этаж 20 из 30. ID апартаментов на СтройкиРУ 702176, сообщите его когда будете звонить.
Подробнее о ЖК Скай Спутник
Особенности
Ход строительства
Документация
- Проектная декларация № 50-000147, корпус 6 07.12.20201.12 мб, pdf
- Разрешение на ввод RU50-20-15145-2019, корпус 6 31.12.201978.13 кб, pdf
- Заключение о степени готовности RU50-55-8315-2017, корпус 6 20.06.20191.51 мб, pdf
- Проект договора участия в долевом строительстве, корпус 6 27.12.2018258.07 кб, pdf
- Извещение о начале строительства, корпус 6 27.09.20181.18 мб, pdf
- Схема планировочной организации земельного участка, корпус 6 05.09.20183.12 мб, pdf
- Градостроительный план земельного участка, корпус 6 04.09.20187.89 мб, pdf
- Разрешение на строительство RU50-55-8315-2017, корпус 6 09.06.2017212.83 кб, pdf
- Информация о выданных заключениях о соответствии застройщика и проектной декларации требованиям 214-ФЗ 50-000147 20Исх-6414, корпус 6 18.04.2017255.78 кб, pdf
- Экспертиза проектной документации, корпус 6 08.02.201715.14 мб, pdf
- Проектная декларация № 50-000147, корпус 5 07.12.20201.12 мб, pdf
- Разрешение на ввод RU50-20-15145-2019, корпус 5 31.12.201978.13 кб, pdf
- Заключение о степени готовности RU50-55-8315-2017, корпус 5 20.06.20191.51 мб, pdf
- Проект договора участия в долевом строительстве, корпус 5 27.12.2018258.07 кб, pdf
- Извещение о начале строительства, корпус 5 27.09.20181.18 мб, pdf
- Схема планировочной организации земельного участка, корпус 5 05.09.20183.12 мб, pdf
- Градостроительный план земельного участка, корпус 5 04.09.20187.89 мб, pdf
- Разрешение на строительство RU50-55-8315-2017, корпус 5 09.06.2017212.83 кб, pdf
- Информация о выданных заключениях о соответствии застройщика и проектной декларации требованиям 214-ФЗ 50-000147 20Исх-6414, корпус 5 18.04.2017255.78 кб, pdf
- Экспертиза проектной документации, корпус 5 08.02.201715.14 мб, pdf
- Проектная декларация № 50-003545, корпус 20 07.06.20231.65 мб, pdf
- Проект договора участия в долевом строительстве, корпус 20 07.06.2023286.80 кб, pdf
- Извещение о начале строительства, корпус 20 18.10.202242.31 кб, pdf
- Схема планировочной организации земельного участка, корпус 20 01.08.202210.00 мб, pdf
- Градостроительный план земельного участка, корпус 20 01.08.20224.54 мб, pdf
- Разрешение на строительство RU50-20-21887-2022, корпус 20 13.07.2022185.11 кб, pdf
- Экспертиза проектной документации, корпус 20 31.05.2022523.54 кб, pdf
- Проект договора участия в долевом строительстве, корпус 19 07.06.2023286.80 кб, pdf
- Проектная декларация № 50-003545, корпус 19 07.06.20231.65 мб, pdf
- Извещение о начале строительства, корпус 19 18.10.202242.31 кб, pdf
- Схема планировочной организации земельного участка, корпус 19 01.08.202210.00 мб, pdf
- Градостроительный план земельного участка, корпус 19 01.08.20224.54 мб, pdf
- Разрешение на строительство RU50-20-21887-2022, корпус 19 13.07.2022185.11 кб, pdf
- Экспертиза проектной документации, корпус 19 31.05.2022523.54 кб, pdf
- Проект договора участия в долевом строительстве, корпус 18 07.06.2023283.12 кб, pdf
- Проектная декларация № 50-003126, корпус 18 07.06.20231.45 мб, pdf
- Извещение о начале строительства, корпус 18 08.04.202132.38 кб, pdf
- Градостроительный план земельного участка, корпус 18 15.02.20213.39 мб, pdf
- Разрешение на строительство RU50-20-17649-2021, корпус 18 12.02.202171.69 кб, pdf
- Схема планировочной организации земельного участка, корпус 18 11.02.202134.62 мб, pdf
- Экспертиза проектной документации, корпус 18 18.01.20211.41 мб, pdf
- Проектная декларация № 72-000844, корпус 12 07.06.2023235.59 кб, pdf
- Проект договора участия в долевом строительстве, корпус 12 12.05.2022353.99 кб, pdf
- Извещение о начале строительства, корпус 12 11.11.2021523.49 кб, pdf
- Градостроительный план земельного участка, корпус 12 11.10.20214.51 мб, pdf
- Схема планировочной организации земельного участка, корпус 12 11.10.20211.34 мб, pdf
- Разрешение на строительство 72-304-210-2021, корпус 12 05.10.20211.49 мб, pdf
- Экспертиза проектной документации, корпус 12 04.04.202126.98 мб, sig
- Проект договора участия в долевом строительстве, корпус 17 07.06.2023283.12 кб, pdf
- Проектная декларация № 50-003126, корпус 17 07.06.20231.45 мб, pdf
- Извещение о начале строительства, корпус 17 08.04.202132.38 кб, pdf
- Градостроительный план земельного участка, корпус 17 15.02.20213.39 мб, pdf
- Разрешение на строительство RU50-20-17649-2021, корпус 17 12.02.202171.69 кб, pdf
- Схема планировочной организации земельного участка, корпус 17 11.02.202134.62 мб, pdf
- Экспертиза проектной документации, корпус 17 18.01.20211.41 мб, pdf
- Проектная декларация № 50-003126, корпус 16 07.06.20231.45 мб, pdf
- Проект договора участия в долевом строительстве, корпус 16 07.06.2023283.12 кб, pdf
- Извещение о начале строительства, корпус 16 08.04.202132.38 кб, pdf
- Градостроительный план земельного участка, корпус 16 15.02.20213.39 мб, pdf
- Разрешение на строительство RU50-20-17649-2021, корпус 16 12.02.202171.69 кб, pdf
- Схема планировочной организации земельного участка, корпус 16 11.02.202134.62 мб, pdf
- Экспертиза проектной документации, корпус 16 18.01.20211.41 мб, pdf
- Проектная декларация № 50-002967, корпус 15 07.06.20231.83 мб, pdf
- Проект договора участия в долевом строительстве, корпус 15 07.06.2023277.47 кб, pdf
- Извещение о начале строительства, корпус 15 28.09.202026.50 кб, pdf
- Информация о выданных заключениях о соответствии застройщика и проектной декларации требованиям 214-ФЗ 50-002967 ЗОС/112/50-002967, корпус 15 23.09.2020742.44 кб, pdf
- Схема планировочной организации земельного участка, корпус 15 23.09.202032.90 мб, pdf
- Градостроительный план земельного участка, корпус 15 23.09.20203.23 мб, pdf
- Разрешение на строительство RU50-20-16525-2020, корпус 15 09.09.202067.95 кб, pdf
- Экспертиза проектной документации, корпус 15 21.08.20201.22 мб, pdf
- Проектная декларация № 50-002967, корпус 14 07.06.20231.83 мб, pdf
- Проект договора участия в долевом строительстве, корпус 14 07.06.2023277.47 кб, pdf
- Извещение о начале строительства, корпус 14 28.09.202026.50 кб, pdf
- Схема планировочной организации земельного участка, корпус 14 23.09.202032.90 мб, pdf
- Градостроительный план земельного участка, корпус 14 23.09.20203.23 мб, pdf
- Информация о выданных заключениях о соответствии застройщика и проектной декларации требованиям 214-ФЗ 50-002967 ЗОС/112/50-002967, корпус 14 23.09.2020742.44 кб, pdf
- Разрешение на строительство RU50-20-16525-2020, корпус 14 09.09.202067.95 кб, pdf
- Экспертиза проектной документации, корпус 14 21.08.20201.22 мб, pdf
- Проект договора участия в долевом строительстве, корпус 13 07.06.2023277.47 кб, pdf
- Проектная декларация № 50-002967, корпус 13 07.06.20231.83 мб, pdf
- Извещение о начале строительства, корпус 13 28.09.202026.50 кб, pdf
- Градостроительный план земельного участка, корпус 13 23.09.20203.23 мб, pdf
- Информация о выданных заключениях о соответствии застройщика и проектной декларации требованиям 214-ФЗ 50-002967 ЗОС/112/50-002967, корпус 13 23.09.2020742.44 кб, pdf
- Схема планировочной организации земельного участка, корпус 13 23.09.202032.90 мб, pdf
- Разрешение на строительство RU50-20-16525-2020, корпус 13 09.09.202067.95 кб, pdf
- Экспертиза проектной документации, корпус 13 21.08.20201.22 мб, pdf
- Разрешение на ввод RU50-20-19365-2021, корпус 10 08.09.2021176.06 кб, pdf
- Проектная декларация № 50-000810, корпус 10 07.09.20211.37 мб, pdf
- Заключение о степени готовности RU50-20-10873-2018, корпус 10 20.06.20191.51 мб, pdf
- Проект договора участия в долевом строительстве, корпус 10 01.11.2018229.17 кб, pdf
- Извещение о начале строительства, корпус 10 12.09.20181.62 мб, pdf
- Схема планировочной организации земельного участка, корпус 10 05.09.2018453.58 кб, pdf
- Градостроительный план земельного участка, корпус 10 04.09.20185.16 мб, pdf
- Разрешение на строительство RU50-20-10873-2018, корпус 10 09.06.2018304.96 кб, pdf
- Экспертиза проектной документации, корпус 10 28.04.2018787.91 кб, pdf
- Разрешение на ввод RU50-20-19365-2021, корпус 9 08.09.2021176.06 кб, pdf
- Проектная декларация № 50-000810, корпус 9 07.09.20211.37 мб, pdf
- Заключение о степени готовности RU50-20-10873-2018, корпус 9 20.06.20191.51 мб, pdf
- Проект договора участия в долевом строительстве, корпус 9 01.11.2018229.17 кб, pdf
- Извещение о начале строительства, корпус 9 12.09.20181.62 мб, pdf
- Схема планировочной организации земельного участка, корпус 9 05.09.2018453.58 кб, pdf
- Градостроительный план земельного участка, корпус 9 04.09.20185.16 мб, pdf
- Разрешение на строительство RU50-20-10873-2018, корпус 9 09.06.2018304.96 кб, pdf
- Экспертиза проектной документации, корпус 9 28.04.2018787.91 кб, pdf
- Разрешение на ввод RU50-20-19365-2021, корпус 8 08.09.2021176.06 кб, pdf
- Проектная декларация № 50-000810, корпус 8 07.09.20211.37 мб, pdf
- Заключение о степени готовности RU50-20-10873-2018, корпус 8 20.06.20191.51 мб, pdf
- Проект договора участия в долевом строительстве, корпус 8 01.11.2018229.17 кб, pdf
- Извещение о начале строительства, корпус 8 12.09.20181.62 мб, pdf
- Схема планировочной организации земельного участка, корпус 8 05.09.2018453.58 кб, pdf
- Градостроительный план земельного участка, корпус 8 04.09.20185.16 мб, pdf
- Разрешение на строительство RU50-20-10873-2018, корпус 8 09.06.2018304.96 кб, pdf
- Экспертиза проектной документации, корпус 8 28.04.2018787.91 кб, pdf
- Разрешение на ввод RU50-20-19365-2021, корпус 7 08.09.2021176.06 кб, pdf
- Проектная декларация № 50-000810, корпус 7 07.09.20211.37 мб, pdf
- Заключение о степени готовности RU50-20-10873-2018, корпус 7 20.06.20191.51 мб, pdf
- Проект договора участия в долевом строительстве, корпус 7 01.11.2018229.17 кб, pdf
- Извещение о начале строительства, корпус 7 12.09.20181.62 мб, pdf
- Схема планировочной организации земельного участка, корпус 7 05.09.2018453.58 кб, pdf
- Градостроительный план земельного участка, корпус 7 04.09.20185.16 мб, pdf
- Разрешение на строительство RU50-20-10873-2018, корпус 7 09.06.2018304.96 кб, pdf
- Экспертиза проектной документации, корпус 7 28.04.2018787.91 кб, pdf
























