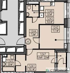
2-Комнатная квартира, 52.5 м², ID 346040
Обновлено сегодня
18 711 000 ₽
356 400 ₽ / м2
- Срок сдачи
- II квартал 2026
- Застройщик
- нет данных
- Общая площадь
- 52.5 м2
- Жилая площадь
- 26.2 м2
- Площадь кухни
- 10.5 м2
- Высота потолков
- 3 м
- Этаж
- 21 из 45
- Корпус
- 2
- Отделка
- Предчистовая
- Санузел
- Несколько
- ID
- 346040
Расположение
Описание
Двухкомнатная квартира, 52.5 м2 в ЖК Sky Garden (Скай Гарден) от
Продается двухкомнатная квартира в новостройке ЖК Sky Garden (Скай Гарден) за 18 711 000 рублей, находящаяся по адресу Москва, Северо-Западный (СЗАО), Покровское-Стрешнево, Строительный проезд, д 9. Компания застройщик ФСК. Квартира сдается в III квартале 2026 года с предчистовой отделкой, в 5 минутах на машине от станции метрополитена Сходненская. Общая площадь квартиры - 52.5 м². Этаж 21 из 44. ID квартиры на СтройкиРУ 346040, назовите его когда будете звонить.


























