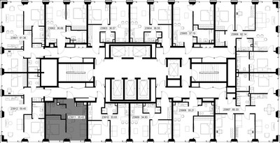
1-Комнатная квартира, 35.4 м², ID 619578
Обновлено 3 дня назад
23 312 940 ₽
658 558 ₽ / м2
- Срок сдачи
- III квартал 2028
- Застройщик
- нет данных
- Общая площадь
- 35.4 м2
- Этаж
- 39 из 59
- Корпус
- Б
- Отделка
- Черновая
- ID
- 619578
Расположение
Описание
Однокомнатная квартира, 35.4 м2 в ЖК SET (Сет) от
Продается 1-комн. квартира в новостройке ЖК SET (Сет) стоимостью 23 312 940 ₽, по адресу Москва, Западный (ЗАО), Можайский, ул Верейская, д 29 стр 32Б. Строится компанией MR Group. Квартира сдается в 3 квартале 2028 года с черновой отделкой, в 13 минутах на машине от станции метро Давыдково. Общая площадь квартиры - 35.4 кв. м. Этаж 39. ID квартиры на СтройкиРУ 619578, скажите его когда будете звонить.












