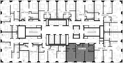
2-Комнатная квартира, 54.4 м², ID 619570
Обновлено 3 дня назад
30 142 620 ₽
554 092 ₽ / м2
- Срок сдачи
- III квартал 2028
- Застройщик
- нет данных
- Общая площадь
- 54.4 м2
- Этаж
- 44 из 59
- Корпус
- Б
- Отделка
- Черновая
- ID
- 619570
Расположение
Описание
Двухкомнатная квартира, 54.4 м2 в ЖК SET (Сет) от
Продается 2-комн. квартира в новостройке ЖК SET (Сет) стоимостью 30 142 620 ₽, по адресу Москва, Западный (ЗАО), Можайский, ул Верейская, д 29 стр 32Б. Строится компанией MR Group. Квартира сдается в 3 квартале 2028 года с черновой отделкой, в 13 минутах на машине от станции метро Давыдково. Общая площадь квартиры - 54.4 кв. м. Этаж 44. ID квартиры на СтройкиРУ 619570, скажите его когда будете звонить.












