1-Комнатная квартира, 36.7 м², ID 619566
Обновлено вчера
23 898 210 ₽
651 177 ₽ / м2
- Срок сдачи
- III квартал 2028
- Застройщик
- нет данных
- Общая площадь
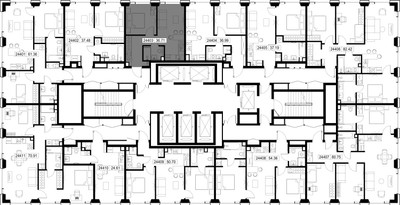
- 36.7 м2
- Этаж
- 44 из 59
- Корпус
- Б
- Отделка
- Черновая
- ID
- 619566
Расположение
Описание
Однокомнатная квартира, 36.7 м2 в ЖК SET (Сет) от
Продается 1-комн. квартира в новостройке ЖК SET (Сет) за 23 898 210 ₽, находящаяся по адресу Москва, Западный (ЗАО), Можайский, ул Верейская, д 29 стр 32Б. Строится компанией MR Group. Квартира сдается в 3 квартале 2028 года с черновой отделкой, в 13 минутах на машине от станции метрополитена Давыдково. Общая площадь квартиры - 36.7 кв. м. Этаж 44. ID квартиры на СтройкиРУ 619566, назовите его когда будете звонить.












