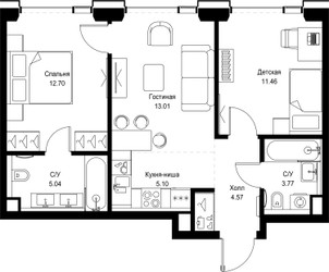
2-Комнатная квартира, 55.6 м², ID 613186
Обновлено вчера
26 725 912 ₽
480 682 ₽ / м2
- Срок сдачи
- III квартал 2028
- Застройщик
- нет данных
- Общая площадь
- 55.6 м2
- Этаж
- 38 из 59
- Корпус
- А
- Отделка
- Черновая
- ID
- 613186
Расположение
Описание
Двухкомнатная квартира, 55.6 м2 в ЖК SET (Сет) от
Продается двухкомнатная квартира в новостройке ЖК SET (Сет) по цене 26 725 912 рублей, расположенная по адресу Москва, Западный (ЗАО), Можайский, ул Верейская, д 29 стр 32Б. Компания застройщик MR Group. Квартира сдается в III квартале 2028 года с черновой отделкой, в 13 минутах на машине от метро Давыдково. Общая площадь квартиры - 55.6 м². Этаж 38. ID квартиры на СтройкиРУ 613186, сообщите его когда будете звонить.












