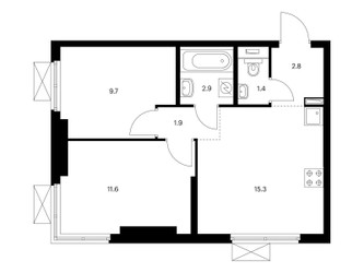
2-Комнатная квартира, 45.6 м², ID 203185
Обновлено 6 дня назад
24 702 000 ₽
541 711 ₽ / м2
- Срок сдачи
- II квартал 2025
- Застройщик
- нет данных
- Общая площадь
- 45.6 м2
- Жилая площадь
- 21.3 м2
- Площадь кухни
- 15.3 м2
- Высота потолков
- 2.65 м
- Этаж
- 2 из 32
- Корпус
- 2.7
- Отделка
- не указана
- Санузел
- Раздельный
- ID
- 203185
Расположение
Описание
Двухкомнатная квартира, 45.6 м2 в ЖК Руставели 14 от
Продается 2-комн. квартира в новостройке ЖК Руставели 14 по цене 24 702 000 ₽, расположенная по адресу Москва, Северо-Восточный (СВАО), Бутырский, ул Руставели, д 14. Строится компанией «ПИК». Квартира сдается в 2 квартале 2025 года в 2 минутах пешком от метро Бутырская. Общая площадь квартиры - 45.6 кв. м. Этаж 2. ID квартиры на СтройкиРУ 203185, сообщите его когда будете звонить.
Подробнее о ЖК Руставели 14
Особенности
Ход строительства
Документация
- Проектная декларация № 77-002500, корпус 2.1 02.06.2023510.27 кб, pdf
- Проект договора участия в долевом строительстве, корпус 2.1 09.01.2023170.63 кб, pdf
- Извещение о начале строительства, корпус 2.1 01.06.20224.25 мб, pdf
- Схема планировочной организации земельного участка, корпус 2.1 13.05.20224.16 мб, pdf
- Градостроительный план земельного участка, корпус 2.1 12.05.20222.70 мб, pdf
- Разрешение на строительство 77-115000-020182-2022, корпус 2.1 29.04.20221.79 мб, pdf
- Экспертиза проектной документации, корпус 2.1 12.04.20221.07 мб, pdf
- Проектная декларация № 77-002090, корпус 1.3 02.06.2023453.66 кб, pdf
- Экспертиза проектной документации, корпус 1.3 26.04.20236.94 мб, pdf
- Схема планировочной организации земельного участка, корпус 1.3 31.03.20232.28 мб, pdf
- Проект договора участия в долевом строительстве, корпус 1.3 09.01.2023170.63 кб, pdf
- Извещение о начале строительства, корпус 1.3 15.04.20221.91 мб, pdf
- Информация о выданных заключениях о соответствии застройщика и проектной декларации требованиям 214-ФЗ 77-002090 ЗОС/099/77-002090, корпус 1.3 21.10.20202.05 мб, pdf
- Градостроительный план земельного участка, корпус 1.3 17.09.20201.83 мб, pdf
- Разрешение на строительство 77-115000-019074-2020, корпус 1.3 21.08.20202.21 мб, pdf
- Проектная декларация № 77-002345, корпус 2.3 02.06.2023484.73 кб, pdf
- Проект договора участия в долевом строительстве, корпус 2.3 09.01.2023169.01 кб, pdf
- Схема планировочной организации земельного участка, корпус 2.3 13.04.202214.14 мб, pdf
- Экспертиза проектной документации, корпус 2.3 12.04.2022624.34 кб, pdf
- Извещение о начале строительства, корпус 2.3 02.12.20217.77 мб, pdf
- Градостроительный план земельного участка, корпус 2.3 27.10.20212.70 мб, pdf
- Разрешение на строительство 77-115000-019812-2021, корпус 2.3 25.10.20212.14 мб, pdf
- Проектная декларация № 77-002089, корпус 1.1 02.06.2023422.22 кб, pdf
- Экспертиза проектной документации, корпус 1.1 26.04.20236.94 мб, pdf
- Проект договора участия в долевом строительстве, корпус 1.1 09.01.2023170.63 кб, pdf
- Схема планировочной организации земельного участка, корпус 1.1 09.01.20236.75 мб, pdf
- Разрешение на строительство 77-115000-019073-2020, корпус 1.1 21.08.20202.15 мб, pdf
- Проектная декларация № 77-002089, корпус 1.2. 02.06.2023422.22 кб, pdf
- Экспертиза проектной документации, корпус 1.2. 26.04.20236.94 мб, pdf
- Схема планировочной организации земельного участка, корпус 1.2. 09.01.20236.75 мб, pdf
- Проект договора участия в долевом строительстве, корпус 1.2. 09.01.2023170.63 кб, pdf
- Разрешение на строительство 77-115000-019073-2020, корпус 1.2. 21.08.20202.15 мб, pdf
- Проектная декларация № 77-002801, корпус 2.4 02.06.2023711.05 кб, pdf
- Проект договора участия в долевом строительстве, корпус 2.4 09.01.2023162.71 кб, pdf
- Извещение о начале строительства, корпус 2.4 27.12.20225.60 мб, pdf
- Схема планировочной организации земельного участка, корпус 2.4 13.09.20225.72 мб, pdf
- Градостроительный план земельного участка, корпус 2.4 16.08.20222.70 мб, pdf
- Разрешение на строительство 77-115000-020180-2022, корпус 2.4 29.04.20221.52 мб, pdf
- Экспертиза проектной документации, корпус 2.4 12.04.20221.07 мб, pdf
- Проектная декларация № 77-002089, корпус 2.2 02.06.2023422.22 кб, pdf
- Экспертиза проектной документации, корпус 2.2 26.04.20236.94 мб, pdf
- Схема планировочной организации земельного участка, корпус 2.2 09.01.20236.75 мб, pdf
- Проект договора участия в долевом строительстве, корпус 2.2 09.01.2023170.63 кб, pdf
- Разрешение на строительство 77-115000-019073-2020, корпус 2.2 21.08.20202.15 мб, pdf
- Проектная декларация № 77-002089, корпус Корпус 1.3 02.06.2023422.22 кб, pdf
- Экспертиза проектной документации, корпус Корпус 1.3 26.04.20236.94 мб, pdf
- Проект договора участия в долевом строительстве, корпус Корпус 1.3 09.01.2023170.63 кб, pdf
- Схема планировочной организации земельного участка, корпус Корпус 1.3 09.01.20236.75 мб, pdf
- Разрешение на строительство 77-115000-019073-2020, корпус Корпус 1.3 21.08.20202.15 мб, pdf











































