2-Комнатная квартира, 52.7 м², ID 346622
Обновлено вчера
22 450 000 ₽
425 996 ₽ / м2
- Срок сдачи
- IV квартал 2025
- Застройщик
- нет данных
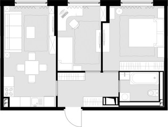
- Общая площадь
- 52.7 м2
- Жилая площадь
- 24 м2
- Площадь кухни
- 12 м2
- Высота потолков
- 3 м
- Этаж
- 25 из 28
- Корпус
- 1
- Отделка
- не указана
- Санузел
- Раздельный
- ID
- 346622
Расположение
Описание
Двухкомнатная квартира, 52.7 м2 в ЖК MALEVICH (Малевич) от
Продается двухкомнатная квартира в новостройке ЖК MALEVICH (Малевич) по цене 22 450 000 р, расположенная по адресу Москва, Северо-Восточный (СВАО), Отрадное, ул Отрадная, д 8. Застройщик дома Концерн КРОСТ. Квартира сдается в IV квартале 2025 года в 5 минутах пешком от метро Отрадное. Общая площадь квартиры - 52.7 м². Этаж 25 из 28. ID квартиры на СтройкиРУ 346622, сообщите его когда будете звонить.







