2-Комнатная квартира, 70.5 м², ID 534424
Обновлено 5 дня назад
26 099 000 ₽
370 199 ₽ / м2
- Срок сдачи
- III квартал 2027
- Застройщик
- нет данных
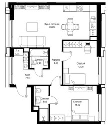
- Общая площадь
- 70.5 м2
- Жилая площадь
- 26.3 м2
- Площадь кухни
- 26.2 м2
- Высота потолков
- 2.75 м
- Этаж
- 2 из 48
- Корпус
- 7
- Отделка
- не указана
- Санузел
- Раздельный
- ID
- 534424
Расположение
Описание
Двухкомнатная квартира, 70.5 м2 в ЖК Cityzen (Ситизен) от
Продается двухкомнатная квартира в новостройке ЖК Cityzen (Ситизен) стоимостью 26 099 000 р, по адресу Москва, Северо-Западный (СЗАО), Покровское-Стрешнево, ул Вишнёвая, д 7. Застройщик дома MR Group. Квартира сдается в III квартале 2027 года в 9 минутах пешком от станции метро Тушинская. Общая площадь квартиры - 70.5 м². Этаж 2. ID квартиры на СтройкиРУ 534424, скажите его когда будете звонить.































