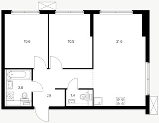
2-Комнатная квартира, 55.7 м², ID 269605
Обновлено 5 дня назад
20 296 000 ₽
364 381 ₽ / м2
- Срок сдачи
- IV квартал 2025
- Застройщик
- нет данных
- Общая площадь
- 55.7 м2
- Жилая площадь
- 21.1 м2
- Площадь кухни
- 21.6 м2
- Высота потолков
- 2.62 м
- Этаж
- 24 из 24
- Корпус
- 3.4
- Отделка
- Предчистовая
- Санузел
- Раздельный
- ID
- 269605
Расположение
Описание
Двухкомнатная квартира, 55.7 м2 в ЖК Большая Академическая 85 от
Продается 2-комн. квартира в новостройке ЖК Большая Академическая 85 за 20 296 000 ₽, находящаяся по адресу Москва, Северный (САО), Тимирязевский, 3-й Нижнелихоборский проезд, д 1. Строится компанией «ПИК». Квартира сдается в 4 квартале 2025 года с предчистовой отделкой, в 15 минутах пешком от станции метрополитена Окружная. Общая площадь квартиры - 55.7 кв. м. Этаж 24. ID квартиры на СтройкиРУ 269605, назовите его когда будете звонить.
Подробнее о ЖК Большая Академическая 85
Особенности
Ход строительства
Документация
- Разрешение на ввод 77-206000-010767-2022, корпус 1.2 18.05.20221.79 мб, pdf
- Проектная декларация № 77-002117, корпус 1.2 08.05.2022743.98 кб, pdf
- Схема планировочной организации земельного участка, корпус 1.2 22.04.20224.93 мб, pdf
- Экспертиза проектной документации, корпус 1.2 20.04.20221.06 мб, pdf
- Извещение о начале строительства, корпус 1.2 10.02.2021101.85 кб, pdf
- Проект договора участия в долевом строительстве, корпус 1.2 10.12.2020276.08 кб, pdf
- Информация о выданных заключениях о соответствии застройщика и проектной декларации требованиям 214-ФЗ 77-002117 ЗОС/114/77-002117, корпус 1.2 05.11.2020700.45 кб, pdf
- Разрешение на строительство 77-206000-019204-2020, корпус 1.2 19.10.20202.31 мб, pdf
- Градостроительный план земельного участка, корпус 1.2 14.10.20201.96 мб, pdf
- Разрешение на ввод 77-206000-010858-2022, корпус 1.3 25.07.2022187.95 кб, pdf
- Проектная декларация № 77-002163, корпус 1.3 06.07.2022880.91 кб, pdf
- Схема планировочной организации земельного участка, корпус 1.3 22.04.20225.48 мб, pdf
- Экспертиза проектной документации, корпус 1.3 20.04.20221.06 мб, pdf
- Извещение о начале строительства, корпус 1.3 17.02.2021899.96 кб, pdf
- Проект договора участия в долевом строительстве, корпус 1.3 09.02.2021225.26 кб, pdf
- Информация о выданных заключениях о соответствии застройщика и проектной декларации требованиям 214-ФЗ 77-002163 ЗОС/157/77-002163, корпус 1.3 02.02.2021624.18 кб, pdf
- Градостроительный план земельного участка, корпус 1.3 14.01.20211.96 мб, pdf
- Разрешение на строительство 77-206000-019273-2020, корпус 1.3 07.12.20201.63 мб, pdf
- Разрешение на ввод 77-206000-010858-2022, корпус Корпус 1.3 25.07.2022187.95 кб, pdf
- Проектная декларация № 77-002163, корпус Корпус 1.3 06.07.2022880.91 кб, pdf
- Схема планировочной организации земельного участка, корпус Корпус 1.3 22.04.20225.48 мб, pdf
- Экспертиза проектной документации, корпус Корпус 1.3 20.04.20221.06 мб, pdf
- Извещение о начале строительства, корпус Корпус 1.3 17.02.2021899.96 кб, pdf
- Проект договора участия в долевом строительстве, корпус Корпус 1.3 09.02.2021225.26 кб, pdf
- Информация о выданных заключениях о соответствии застройщика и проектной декларации требованиям 214-ФЗ 77-002163 ЗОС/157/77-002163, корпус Корпус 1.3 02.02.2021624.18 кб, pdf
- Градостроительный план земельного участка, корпус Корпус 1.3 14.01.20211.96 мб, pdf
- Разрешение на строительство 77-206000-019273-2020, корпус Корпус 1.3 07.12.20201.63 мб, pdf
- Разрешение на ввод 77-206000-010767-2022, корпус Корпус 1.2 18.05.20221.79 мб, pdf
- Проектная декларация № 77-002117, корпус Корпус 1.2 08.05.2022743.98 кб, pdf
- Схема планировочной организации земельного участка, корпус Корпус 1.2 22.04.20224.93 мб, pdf
- Экспертиза проектной документации, корпус Корпус 1.2 20.04.20221.06 мб, pdf
- Извещение о начале строительства, корпус Корпус 1.2 10.02.2021101.85 кб, pdf
- Проект договора участия в долевом строительстве, корпус Корпус 1.2 10.12.2020276.08 кб, pdf
- Информация о выданных заключениях о соответствии застройщика и проектной декларации требованиям 214-ФЗ 77-002117 ЗОС/114/77-002117, корпус Корпус 1.2 05.11.2020700.45 кб, pdf
- Разрешение на строительство 77-206000-019204-2020, корпус Корпус 1.2 19.10.20202.31 мб, pdf
- Градостроительный план земельного участка, корпус Корпус 1.2 14.10.20201.96 мб, pdf






























