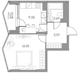
1-Комнатная квартира, 37.4 м², ID 601872
Обновлено вчера
26 407 367 ₽
706 079 ₽ / м2
- Срок сдачи
- II квартал 2027
- Застройщик
- нет данных
- Общая площадь
- 37.4 м2
- Этаж
- 24 из 28
- Корпус
- 1
- Отделка
- Предчистовая
- ID
- 601872
Расположение
Описание
Однокомнатная квартира, 37.4 м2 в ЖК Аквилон Beside 2.0 от
Продается однокомнатная квартира в новостройке ЖК Аквилон Beside 2.0 стоимостью 26 407 367 рублей, по адресу Москва, Юго-Восточный (ЮВАО), Нижегородский, Рязанский пр-кт, д 2. Компания застройщик Группа Аквилон. Квартира сдается в II квартале 2027 года с предчистовой отделкой, в 10 минутах пешком от станции метро Нижегородская. Общая площадь квартиры - 37.4 м². Этаж 24. ID квартиры на СтройкиРУ 601872, скажите его когда будете звонить.














