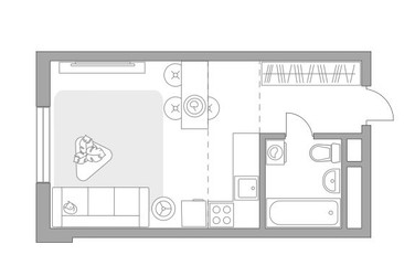
Квартира-студия, 28.17 м², ID 690708
Обновлено Вчера, 14:56
5 997 471 ₽
212 903 ₽ / м2
Описание
Студия квартира, 28.17 м2 в ЖК Императорские Мытищи от
Продается квартира-студия в новостройке ЖК Императорские Мытищи по цене 5 997 471 р, расположенная по адресу Мытищи, Тенистый б-р. Застройщик дома Гранель. Квартира сдается в IV квартале 2027 года с черновой отделкой, в 16 минутах на машине от метро Медведково. Общая площадь квартиры - 28.17 м². Этаж 9 из 12. ID квартиры на СтройкиРУ 690708, сообщите его когда будете звонить.
Подробнее о ЖК Императорские Мытищи
Особенности
Ход строительства
Документация
- Проектная декларация № 50-000475, корпус 13 20.03.2020449.42 кб, pdf
- Разрешение на ввод RU50-12-14318-2019, корпус 13 18.09.201970.16 кб, pdf
- Извещение о начале строительства, корпус 13 04.09.20192.07 мб, pdf
- Проект договора участия в долевом строительстве, корпус 13 16.07.2019291.60 кб, pdf
- Заключение о степени готовности RU50-12-13257-2019, корпус 13 03.07.20191,004.90 кб, pdf
- Разрешение на строительство RU50-12-13257-2019, корпус 13 27.03.201967.05 кб, pdf
- Схема планировочной организации земельного участка, корпус 13 01.03.20191.96 мб, pdf
- Градостроительный план земельного участка, корпус 13 01.03.2019381.44 кб, pdf
- Сведения об уплате застройщиком обязательных отчислений, корпус 13 17.01.2019158.56 кб, pdf
- Экспертиза проектной документации, корпус 13 16.07.201811.44 мб, pdf
- Разрешение на ввод RU50-12-23163-2023, корпус 3 10.01.2023103.24 кб, pdf
- Проектная декларация № 50-003353, корпус 3 09.01.2023515.55 кб, pdf
- Извещение о начале строительства, корпус 3 17.03.2022405.56 кб, pdf
- Проект договора участия в долевом строительстве, корпус 3 20.01.2022292.58 кб, pdf
- Экспертиза проектной документации, корпус 3 22.12.20211.06 мб, xml
- Схема планировочной организации земельного участка, корпус 3 20.12.20211,006.10 кб, pdf
- Градостроительный план земельного участка, корпус 3 02.12.2021371.53 кб, pdf
- Разрешение на строительство RU50-12-13074-2019, корпус 3 26.02.201966.27 кб, pdf
- Проектная декларация № 50-001314, корпус 8 29.07.2021347.18 кб, pdf
- Разрешение на ввод RU50-12-18949-2021, корпус 8 28.07.2021140.32 кб, pdf
- Проект договора участия в долевом строительстве, корпус 8 27.07.2020300.04 кб, pdf
- Градостроительный план земельного участка, корпус 8 27.07.2020318.25 кб, pdf
- Извещение о начале строительства, корпус 8 16.07.20201.70 мб, pdf
- Схема планировочной организации земельного участка, корпус 8 16.12.20191.20 мб, pdf
- Сведения об уплате застройщиком обязательных отчислений, корпус 8 03.12.2018157.76 кб, pdf
- Информация о выданных заключениях о соответствии застройщика и проектной декларации требованиям 214-ФЗ 50-001314 00432-18ИСХ/ЗОСТ, корпус 8 24.08.2018737.17 кб, pdf
- Разрешение на строительство RU50-12-11125-2018, корпус 8 29.06.2018193.36 кб, pdf
- Экспертиза проектной документации, корпус 8 22.05.201815.17 мб, pdf
- Проектная декларация № 50-001393, корпус 17 09.12.2020360.81 кб, pdf
- Разрешение на ввод RU50-12-16898-2020, корпус 17 03.11.2020146.17 кб, pdf
- Градостроительный план земельного участка, корпус 17 27.07.2020319.96 кб, pdf
- Схема планировочной организации земельного участка, корпус 17 16.12.20191.87 мб, pdf
- Извещение о начале строительства, корпус 17 04.09.20191.69 мб, pdf
- Заключение о степени готовности RU50-12-10997-2018, корпус 17 18.07.20191,019.11 кб, pdf
- Проект договора участия в долевом строительстве, корпус 17 12.02.2019290.28 кб, pdf
- Сведения об уплате застройщиком обязательных отчислений, корпус 17 29.11.2018156.14 кб, pdf
- Информация о выданных заключениях о соответствии застройщика и проектной декларации требованиям 214-ФЗ 50-001393 00461-18ИСХ/ЗОСТ, корпус 17 29.08.2018737.37 кб, pdf
- Разрешение на строительство RU50-12-10997-2018, корпус 17 21.06.2018125.86 кб, pdf
- Экспертиза проектной документации, корпус 17 16.04.201813.33 мб, pdf
- Разрешение на ввод RU50-12-20505-2022, корпус 7 01.01.2022138.19 кб, pdf
- Проектная декларация № 50-002974, корпус 7 22.12.2021679.51 кб, pdf
- Градостроительный план земельного участка, корпус 7 21.12.20212.59 мб, pdf
- Проект договора участия в долевом строительстве, корпус 7 17.11.202070.92 кб, pdf
- Извещение о начале строительства, корпус 7 29.10.20201.65 мб, pdf
- Информация о выданных заключениях о соответствии застройщика и проектной декларации требованиям 214-ФЗ 50-002974 ЗОС/139/50-002974, корпус 7 27.10.2020742.64 кб, pdf
- Схема планировочной организации земельного участка, корпус 7 26.08.202011.09 мб, pdf
- Разрешение на строительство RU50-45-12571-2018, корпус 7 25.12.2018181.79 кб, pdf
- Экспертиза проектной документации, корпус 7 15.11.201818.25 мб, pdf
- Проектная декларация № 50-001312, корпус 4 10.05.2020396.96 кб, pdf
- Разрешение на ввод RU50-12-15168-2020 , корпус 4 14.01.202070.29 кб, pdf
- Схема планировочной организации земельного участка, корпус 4 16.12.20191.66 мб, pdf
- Экспертиза проектной документации, корпус 4 21.11.2019268.60 кб, pdf
- Извещение о начале строительства, корпус 4 04.09.20191.77 мб, pdf
- Заключение о степени готовности RU50-12-10876-2018, корпус 4 03.07.2019968.14 кб, pdf
- Градостроительный план земельного участка, корпус 4 01.03.2019381.44 кб, pdf
- Проект договора участия в долевом строительстве, корпус 4 12.02.2019290.28 кб, pdf
- Сведения об уплате застройщиком обязательных отчислений, корпус 4 02.10.2018275.71 кб, pdf
- Информация о выданных заключениях о соответствии застройщика и проектной декларации требованиям 214-ФЗ 50-001312 00436-18ИСХ/ЗОСТ, корпус 4 24.08.2018737.16 кб, pdf
- Разрешение на строительство RU50-12-10876-2018, корпус 4 09.06.2018165.58 кб, pdf
- Разрешение на ввод RU50-12-17306-2020, корпус 9 24.12.202070.22 кб, pdf
- Проектная декларация № 50-001920, корпус 9 09.12.2020376.26 кб, pdf
- Схема планировочной организации земельного участка, корпус 9 16.12.20191.61 мб, pdf
- Заключение о степени готовности RU50-12-11139-2018, корпус 9 18.07.20191,022.42 кб, pdf
- Проект договора участия в долевом строительстве, корпус 9 25.06.2019305.20 кб, pdf
- Сведения об уплате застройщиком обязательных отчислений, корпус 9 25.06.2019157.92 кб, pdf
- Извещение о начале строительства, корпус 9 25.06.20191.68 мб, pdf
- Градостроительный план земельного участка, корпус 9 01.03.2019381.44 кб, pdf
- Информация о выданных заключениях о соответствии застройщика и проектной декларации требованиям 214-ФЗ 50-001920 00683-18ИСХ/ЗОСТ, корпус 9 19.12.2018727.04 кб, pdf
- Разрешение на строительство RU50-12-11139-2018, корпус 9 29.06.2018170.87 кб, pdf
- Экспертиза проектной документации, корпус 9 22.05.201815.36 мб, pdf
- Проектная декларация № 50-003422, корпус 2 06.06.2023511.09 кб, pdf
- Проект договора участия в долевом строительстве, корпус 2 10.03.2023338.38 кб, pdf
- Извещение о начале строительства, корпус 2 18.07.2022401.64 кб, pdf
- Схема планировочной организации земельного участка, корпус 2 24.01.20221.13 мб, pdf
- Градостроительный план земельного участка, корпус 2 02.12.2021371.53 кб, pdf
- Разрешение на строительство RU50-12-13075-2019, корпус 2 26.02.201966.28 кб, pdf
- Экспертиза проектной документации, корпус 2 15.11.201816.91 мб, pdf





















