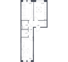
2-Комнатная квартира, 56.15 м², ID 707018
Обновлено Сегодня, 03:10
16 132 316 ₽
287 308 ₽ / м2
- Срок сдачи
- II квартал 2024
- Застройщик
- нет данных
- Общая площадь
- 56.15 м2
- Жилая площадь
- 27.91 м2
- Площадь кухни
- 56.15 м2
- Этаж
- 2 из 18
- Отделка
- Чистовая
- ID
- 707018
Описание
Двухкомнатная квартира, 56.15 м2 в ЖК Пригород Лесное от
Продается 2-комн. квартира в новостройке ЖК Пригород Лесное по цене 16 132 316 руб, расположенная по адресу Видное, мкр Пригород Лесное (деревня Мисайлово), Литературный б-р. Застройщик Группа "Самолет". Квартира сдается в 3 квартале 2026 года с чистовой отделкой, в 15 минутах на машине от метро Домодедовская. Общая площадь квартиры - 56.15 кв. м. Этаж 2 из 17. ID квартиры на СтройкиРУ 707018, сообщите его когда будете звонить.
Подробнее о ЖК Пригород Лесное
Особенности
Ход строительства
Документация
- Проектная декларация № 50-003755, корпус 14.2 07.06.2023699.43 кб, pdf
- Проект договора участия в долевом строительстве, корпус 14.2 07.06.2023566.87 кб, pdf
- Извещение о начале строительства, корпус 14.2 13.04.2023233.50 кб, pdf
- Градостроительный план земельного участка, корпус 14.2 23.03.20231.50 мб, pdf
- Схема планировочной организации земельного участка, корпус 14.2 23.03.202325.18 мб, pdf
- Разрешение на строительство RU50-21-23556-2023, корпус 14.2 20.03.2023117.00 кб, pdf
- Экспертиза проектной документации, корпус 14.2 28.02.20231.38 мб, pdf
- Проектная декларация № 50-003755, корпус 14.1 07.06.2023699.43 кб, pdf
- Проект договора участия в долевом строительстве, корпус 14.1 07.06.2023566.87 кб, pdf
- Извещение о начале строительства, корпус 14.1 13.04.2023233.50 кб, pdf
- Градостроительный план земельного участка, корпус 14.1 23.03.20231.50 мб, pdf
- Схема планировочной организации земельного участка, корпус 14.1 23.03.202325.18 мб, pdf
- Разрешение на строительство RU50-21-23556-2023, корпус 14.1 20.03.2023117.00 кб, pdf
- Экспертиза проектной документации, корпус 14.1 28.02.20231.38 мб, pdf
- Проектная декларация № 50-003753, корпус 13.2 07.06.2023706.16 кб, pdf
- Проект договора участия в долевом строительстве, корпус 13.2 07.06.2023566.87 кб, pdf
- Извещение о начале строительства, корпус 13.2 13.04.2023306.64 кб, pdf
- Градостроительный план земельного участка, корпус 13.2 17.03.20231.34 мб, pdf
- Схема планировочной организации земельного участка, корпус 13.2 17.03.202327.63 мб, pdf
- Разрешение на строительство RU50-21-23523-2023, корпус 13.2 15.03.2023117.78 кб, pdf
- Экспертиза проектной документации, корпус 13.2 28.02.20231.38 мб, pdf
- Проектная декларация № 50-003753, корпус 13.1 07.06.2023706.16 кб, pdf
- Проект договора участия в долевом строительстве, корпус 13.1 07.06.2023566.87 кб, pdf
- Извещение о начале строительства, корпус 13.1 13.04.2023306.64 кб, pdf
- Градостроительный план земельного участка, корпус 13.1 17.03.20231.34 мб, pdf
- Схема планировочной организации земельного участка, корпус 13.1 17.03.202327.63 мб, pdf
- Разрешение на строительство RU50-21-23523-2023, корпус 13.1 15.03.2023117.78 кб, pdf
- Экспертиза проектной документации, корпус 13.1 28.02.20231.38 мб, pdf
- Проект договора участия в долевом строительстве, корпус 6 07.06.2023566.87 кб, pdf
- Проектная декларация № 50-003562, корпус 6 07.06.2023398.63 кб, pdf
- Извещение о начале строительства, корпус 6 23.08.2022253.82 кб, pdf
- Схема планировочной организации земельного участка, корпус 6 09.08.202214.27 мб, pdf
- Градостроительный план земельного участка, корпус 6 09.08.20222.00 мб, pdf
- Разрешение на строительство RU50-21-21971-2022, корпус 6 01.08.2022128.75 кб, pdf
- Экспертиза проектной документации, корпус 6 18.05.20222.83 мб, pdf
- Проектная декларация № 50-003560, корпус 5.1 07.06.2023655.52 кб, pdf
- Проект договора участия в долевом строительстве, корпус 5.1 07.06.2023566.87 кб, pdf
- Извещение о начале строительства, корпус 5.1 23.08.2022263.63 кб, pdf
- Схема планировочной организации земельного участка, корпус 5.1 08.08.202218.89 мб, pdf
- Градостроительный план земельного участка, корпус 5.1 08.08.20222.03 мб, pdf
- Разрешение на строительство RU50-21-21977-2022, корпус 5.1 02.08.2022133.17 кб, pdf
- Экспертиза проектной документации, корпус 5.1 19.05.20223.30 мб, pdf
- Проект договора участия в долевом строительстве, корпус 5.2 07.06.2023566.87 кб, pdf
- Проектная декларация № 50-003560, корпус 5.2 07.06.2023655.52 кб, pdf
- Извещение о начале строительства, корпус 5.2 23.08.2022263.63 кб, pdf
- Схема планировочной организации земельного участка, корпус 5.2 08.08.202218.89 мб, pdf
- Градостроительный план земельного участка, корпус 5.2 08.08.20222.03 мб, pdf
- Разрешение на строительство RU50-21-21977-2022, корпус 5.2 02.08.2022133.17 кб, pdf
- Экспертиза проектной документации, корпус 5.2 19.05.20223.30 мб, pdf
- Проект договора участия в долевом строительстве, корпус 11.2 07.06.2023566.87 кб, pdf
- Проектная декларация № 50-003500, корпус 11.2 07.06.2023675.17 кб, pdf
- Извещение о начале строительства, корпус 11.2 15.07.2022204.04 кб, pdf
- Градостроительный план земельного участка, корпус 11.2 07.07.20222.01 мб, pdf
- Схема планировочной организации земельного участка, корпус 11.2 06.07.202215.79 мб, pdf
- Разрешение на строительство RU50-21-21813-2022, корпус 11.2 30.06.2022129.65 кб, pdf
- Экспертиза проектной документации, корпус 11.2 16.06.20221.45 мб, pdf
- Проект договора участия в долевом строительстве, корпус 11.1 07.06.2023566.87 кб, pdf
- Проектная декларация № 50-003500, корпус 11.1 07.06.2023675.17 кб, pdf
- Извещение о начале строительства, корпус 11.1 15.07.2022204.04 кб, pdf
- Градостроительный план земельного участка, корпус 11.1 07.07.20222.01 мб, pdf
- Схема планировочной организации земельного участка, корпус 11.1 06.07.202215.79 мб, pdf
- Разрешение на строительство RU50-21-21813-2022, корпус 11.1 30.06.2022129.65 кб, pdf
- Экспертиза проектной документации, корпус 11.1 16.06.20221.45 мб, pdf
- Проектная декларация № 50-003278, корпус 7.2 07.06.2023473.65 кб, pdf
- Проект договора участия в долевом строительстве, корпус 7.2 07.06.2023566.87 кб, pdf
- Извещение о начале строительства, корпус 7.2 23.11.2021249.30 кб, pdf
- Разрешение на строительство RU50-21-19864-2021, корпус 7.2 29.10.2021184.83 кб, pdf
- Градостроительный план земельного участка, корпус 7.2 01.10.20211.55 мб, pdf
- Схема планировочной организации земельного участка, корпус 7.2 30.09.202114.17 мб, pdf
- Экспертиза проектной документации, корпус 7.2 17.09.2021478.91 кб, pdf
- Проектная декларация № 50-003278, корпус 7.1 07.06.2023473.65 кб, pdf
- Проект договора участия в долевом строительстве, корпус 7.1 07.06.2023566.87 кб, pdf
- Извещение о начале строительства, корпус 7.1 23.11.2021249.30 кб, pdf
- Разрешение на строительство RU50-21-19864-2021, корпус 7.1 29.10.2021184.83 кб, pdf
- Градостроительный план земельного участка, корпус 7.1 01.10.20211.55 мб, pdf
- Схема планировочной организации земельного участка, корпус 7.1 30.09.202114.17 мб, pdf
- Экспертиза проектной документации, корпус 7.1 17.09.2021478.91 кб, pdf
- Проектная декларация № 50-003345, корпус 10.1 07.06.2023637.77 кб, pdf
- Проект договора участия в долевом строительстве, корпус 10.1 07.06.2023566.87 кб, pdf
- Извещение о начале строительства, корпус 10.1 25.01.2022292.47 кб, pdf
- Схема планировочной организации земельного участка, корпус 10.1 13.01.202230.30 мб, pdf
- Градостроительный план земельного участка, корпус 10.1 10.01.20221.30 мб, pdf
- Разрешение на строительство RU50-21-20422-2021, корпус 10.1 28.12.2021129.29 кб, pdf
- Экспертиза проектной документации, корпус 10.1 09.12.2021557.73 кб, pdf
- Проектная декларация № 50-003345, корпус 10.2 07.06.2023637.77 кб, pdf
- Проект договора участия в долевом строительстве, корпус 10.2 07.06.2023566.87 кб, pdf
- Извещение о начале строительства, корпус 10.2 25.01.2022292.47 кб, pdf
- Схема планировочной организации земельного участка, корпус 10.2 13.01.202230.30 мб, pdf
- Градостроительный план земельного участка, корпус 10.2 10.01.20221.30 мб, pdf
- Разрешение на строительство RU50-21-20422-2021, корпус 10.2 28.12.2021129.29 кб, pdf
- Экспертиза проектной документации, корпус 10.2 09.12.2021557.73 кб, pdf
- Проектная декларация № 50-000461, корпус 4.1 07.12.20202.24 мб, pdf
- Разрешение на ввод RU50-21-15531-2020, корпус 4.1 18.03.202079.19 кб, pdf
- Проект договора участия в долевом строительстве, корпус 4.1 28.01.2020377.54 кб, pdf
- Извещение о начале строительства, корпус 4.1 05.08.20194.30 мб, pdf
- Заключение о степени готовности RU50-21-11052-2018, корпус 4.1 28.06.20191.10 мб, pdf
- Экспертиза проектной документации, корпус 4.1 15.03.201910.42 мб, pdf
- Градостроительный план земельного участка, корпус 4.1 31.08.20182.97 мб, pdf
- Схема планировочной организации земельного участка, корпус 4.1 31.08.2018515.96 кб, pdf
- Сведения об уплате застройщиком обязательных отчислений, корпус 4.1 23.07.2018689.85 кб, pdf
- Разрешение на строительство RU50-21-11052-2018, корпус 4.1 26.06.2018156.41 кб, pdf
- Информация о выданных заключениях о соответствии застройщика и проектной декларации требованиям 214-ФЗ 50-000461 20Исх-15638/9.1, корпус 4.1 04.09.2017261.93 кб, pdf
- Проектная декларация № 50-000461, корпус 4.2 07.12.20202.24 мб, pdf
- Разрешение на ввод RU50-21-15531-2020, корпус 4.2 18.03.202079.19 кб, pdf
- Проект договора участия в долевом строительстве, корпус 4.2 28.01.2020377.54 кб, pdf
- Извещение о начале строительства, корпус 4.2 05.08.20194.30 мб, pdf
- Заключение о степени готовности RU50-21-11052-2018, корпус 4.2 28.06.20191.10 мб, pdf
- Экспертиза проектной документации, корпус 4.2 15.03.201910.42 мб, pdf
- Градостроительный план земельного участка, корпус 4.2 31.08.20182.97 мб, pdf
- Схема планировочной организации земельного участка, корпус 4.2 31.08.2018515.96 кб, pdf
- Сведения об уплате застройщиком обязательных отчислений, корпус 4.2 23.07.2018689.85 кб, pdf
- Разрешение на строительство RU50-21-11052-2018, корпус 4.2 26.06.2018156.41 кб, pdf
- Информация о выданных заключениях о соответствии застройщика и проектной декларации требованиям 214-ФЗ 50-000461 20Исх-15638/9.1, корпус 4.2 04.09.2017261.93 кб, pdf
- Проектная декларация № 50-000461, корпус 8.1 07.12.20202.24 мб, pdf
- Разрешение на ввод RU50-21-15531-2020, корпус 8.1 18.03.202079.19 кб, pdf
- Проект договора участия в долевом строительстве, корпус 8.1 28.01.2020377.54 кб, pdf
- Извещение о начале строительства, корпус 8.1 05.08.20194.30 мб, pdf
- Заключение о степени готовности RU50-21-11052-2018, корпус 8.1 28.06.20191.10 мб, pdf
- Экспертиза проектной документации, корпус 8.1 15.03.201910.42 мб, pdf
- Градостроительный план земельного участка, корпус 8.1 31.08.20182.97 мб, pdf
- Схема планировочной организации земельного участка, корпус 8.1 31.08.2018515.96 кб, pdf
- Сведения об уплате застройщиком обязательных отчислений, корпус 8.1 23.07.2018689.85 кб, pdf
- Разрешение на строительство RU50-21-11052-2018, корпус 8.1 26.06.2018156.41 кб, pdf
- Информация о выданных заключениях о соответствии застройщика и проектной декларации требованиям 214-ФЗ 50-000461 20Исх-15638/9.1, корпус 8.1 04.09.2017261.93 кб, pdf
- Проектная декларация № 50-000461, корпус 8.2 07.12.20202.24 мб, pdf
- Разрешение на ввод RU50-21-15531-2020, корпус 8.2 18.03.202079.19 кб, pdf
- Проект договора участия в долевом строительстве, корпус 8.2 28.01.2020377.54 кб, pdf
- Извещение о начале строительства, корпус 8.2 05.08.20194.30 мб, pdf
- Заключение о степени готовности RU50-21-11052-2018, корпус 8.2 28.06.20191.10 мб, pdf
- Экспертиза проектной документации, корпус 8.2 15.03.201910.42 мб, pdf
- Схема планировочной организации земельного участка, корпус 8.2 31.08.2018515.96 кб, pdf
- Градостроительный план земельного участка, корпус 8.2 31.08.20182.97 мб, pdf
- Сведения об уплате застройщиком обязательных отчислений, корпус 8.2 23.07.2018689.85 кб, pdf
- Разрешение на строительство RU50-21-11052-2018, корпус 8.2 26.06.2018156.41 кб, pdf
- Информация о выданных заключениях о соответствии застройщика и проектной декларации требованиям 214-ФЗ 50-000461 20Исх-15638/9.1, корпус 8.2 04.09.2017261.93 кб, pdf
- Проектная декларация № 50-000461, корпус 9.1 07.12.20202.24 мб, pdf
- Разрешение на ввод RU50-21-15531-2020, корпус 9.1 18.03.202079.19 кб, pdf
- Проект договора участия в долевом строительстве, корпус 9.1 28.01.2020377.54 кб, pdf
- Извещение о начале строительства, корпус 9.1 05.08.20194.30 мб, pdf
- Заключение о степени готовности RU50-21-11052-2018, корпус 9.1 28.06.20191.10 мб, pdf
- Экспертиза проектной документации, корпус 9.1 15.03.201910.42 мб, pdf
- Схема планировочной организации земельного участка, корпус 9.1 31.08.2018515.96 кб, pdf
- Градостроительный план земельного участка, корпус 9.1 31.08.20182.97 мб, pdf
- Сведения об уплате застройщиком обязательных отчислений, корпус 9.1 23.07.2018689.85 кб, pdf
- Разрешение на строительство RU50-21-11052-2018, корпус 9.1 26.06.2018156.41 кб, pdf
- Информация о выданных заключениях о соответствии застройщика и проектной декларации требованиям 214-ФЗ 50-000461 20Исх-15638/9.1, корпус 9.1 04.09.2017261.93 кб, pdf
- Проектная декларация № 50-000461, корпус 61 07.12.20202.24 мб, pdf
- Разрешение на ввод RU50-21-15531-2020, корпус 61 18.03.202079.19 кб, pdf
- Проект договора участия в долевом строительстве, корпус 61 28.01.2020377.54 кб, pdf
- Извещение о начале строительства, корпус 61 05.08.20194.30 мб, pdf
- Заключение о степени готовности RU50-21-11052-2018, корпус 61 28.06.20191.10 мб, pdf
- Экспертиза проектной документации, корпус 61 15.03.201910.42 мб, pdf
- Градостроительный план земельного участка, корпус 61 31.08.20182.97 мб, pdf
- Схема планировочной организации земельного участка, корпус 61 31.08.2018515.96 кб, pdf
- Сведения об уплате застройщиком обязательных отчислений, корпус 61 23.07.2018689.85 кб, pdf
- Разрешение на строительство RU50-21-11052-2018, корпус 61 26.06.2018156.41 кб, pdf
- Информация о выданных заключениях о соответствии застройщика и проектной декларации требованиям 214-ФЗ 50-000461 20Исх-15638/9.1, корпус 61 04.09.2017261.93 кб, pdf
- Проектная декларация № 50-000461, корпус 60 07.12.20202.24 мб, pdf
- Разрешение на ввод RU50-21-15531-2020, корпус 60 18.03.202079.19 кб, pdf
- Проект договора участия в долевом строительстве, корпус 60 28.01.2020377.54 кб, pdf
- Извещение о начале строительства, корпус 60 05.08.20194.30 мб, pdf
- Заключение о степени готовности RU50-21-11052-2018, корпус 60 28.06.20191.10 мб, pdf
- Экспертиза проектной документации, корпус 60 15.03.201910.42 мб, pdf
- Схема планировочной организации земельного участка, корпус 60 31.08.2018515.96 кб, pdf
- Градостроительный план земельного участка, корпус 60 31.08.20182.97 мб, pdf
- Сведения об уплате застройщиком обязательных отчислений, корпус 60 23.07.2018689.85 кб, pdf
- Разрешение на строительство RU50-21-11052-2018, корпус 60 26.06.2018156.41 кб, pdf
- Информация о выданных заключениях о соответствии застройщика и проектной декларации требованиям 214-ФЗ 50-000461 20Исх-15638/9.1, корпус 60 04.09.2017261.93 кб, pdf
- Проектная декларация № 50-000461, корпус 9 07.12.20202.24 мб, pdf
- Разрешение на ввод RU50-21-15531-2020, корпус 9 18.03.202079.19 кб, pdf
- Проект договора участия в долевом строительстве, корпус 9 28.01.2020377.54 кб, pdf
- Извещение о начале строительства, корпус 9 05.08.20194.30 мб, pdf
- Заключение о степени готовности RU50-21-11052-2018, корпус 9 28.06.20191.10 мб, pdf
- Экспертиза проектной документации, корпус 9 15.03.201910.42 мб, pdf
- Градостроительный план земельного участка, корпус 9 31.08.20182.97 мб, pdf
- Схема планировочной организации земельного участка, корпус 9 31.08.2018515.96 кб, pdf
- Сведения об уплате застройщиком обязательных отчислений, корпус 9 23.07.2018689.85 кб, pdf
- Разрешение на строительство RU50-21-11052-2018, корпус 9 26.06.2018156.41 кб, pdf
- Информация о выданных заключениях о соответствии застройщика и проектной декларации требованиям 214-ФЗ 50-000461 20Исх-15638/9.1, корпус 9 04.09.2017261.93 кб, pdf
- Проектная декларация № 50-000461, корпус 58 07.12.20202.24 мб, pdf
- Разрешение на ввод RU50-21-15531-2020, корпус 58 18.03.202079.19 кб, pdf
- Проект договора участия в долевом строительстве, корпус 58 28.01.2020377.54 кб, pdf
- Извещение о начале строительства, корпус 58 05.08.20194.30 мб, pdf
- Заключение о степени готовности RU50-21-11052-2018, корпус 58 28.06.20191.10 мб, pdf
- Экспертиза проектной документации, корпус 58 15.03.201910.42 мб, pdf
- Схема планировочной организации земельного участка, корпус 58 31.08.2018515.96 кб, pdf
- Градостроительный план земельного участка, корпус 58 31.08.20182.97 мб, pdf
- Сведения об уплате застройщиком обязательных отчислений, корпус 58 23.07.2018689.85 кб, pdf
- Разрешение на строительство RU50-21-11052-2018, корпус 58 26.06.2018156.41 кб, pdf
- Информация о выданных заключениях о соответствии застройщика и проектной декларации требованиям 214-ФЗ 50-000461 20Исх-15638/9.1, корпус 58 04.09.2017261.93 кб, pdf
- Проектная декларация № 50-000461, корпус 57 07.12.20202.24 мб, pdf
- Разрешение на ввод RU50-21-15531-2020, корпус 57 18.03.202079.19 кб, pdf
- Проект договора участия в долевом строительстве, корпус 57 28.01.2020377.54 кб, pdf
- Извещение о начале строительства, корпус 57 05.08.20194.30 мб, pdf
- Заключение о степени готовности RU50-21-11052-2018, корпус 57 28.06.20191.10 мб, pdf
- Экспертиза проектной документации, корпус 57 15.03.201910.42 мб, pdf
- Схема планировочной организации земельного участка, корпус 57 31.08.2018515.96 кб, pdf
- Градостроительный план земельного участка, корпус 57 31.08.20182.97 мб, pdf
- Сведения об уплате застройщиком обязательных отчислений, корпус 57 23.07.2018689.85 кб, pdf
- Разрешение на строительство RU50-21-11052-2018, корпус 57 26.06.2018156.41 кб, pdf
- Информация о выданных заключениях о соответствии застройщика и проектной декларации требованиям 214-ФЗ 50-000461 20Исх-15638/9.1, корпус 57 04.09.2017261.93 кб, pdf
- Проектная декларация № 50-000461, корпус 59 07.12.20202.24 мб, pdf
- Разрешение на ввод RU50-21-15531-2020, корпус 59 18.03.202079.19 кб, pdf
- Проект договора участия в долевом строительстве, корпус 59 28.01.2020377.54 кб, pdf
- Извещение о начале строительства, корпус 59 05.08.20194.30 мб, pdf
- Заключение о степени готовности RU50-21-11052-2018, корпус 59 28.06.20191.10 мб, pdf
- Экспертиза проектной документации, корпус 59 15.03.201910.42 мб, pdf
- Градостроительный план земельного участка, корпус 59 31.08.20182.97 мб, pdf
- Схема планировочной организации земельного участка, корпус 59 31.08.2018515.96 кб, pdf
- Сведения об уплате застройщиком обязательных отчислений, корпус 59 23.07.2018689.85 кб, pdf
- Разрешение на строительство RU50-21-11052-2018, корпус 59 26.06.2018156.41 кб, pdf
- Информация о выданных заключениях о соответствии застройщика и проектной декларации требованиям 214-ФЗ 50-000461 20Исх-15638/9.1, корпус 59 04.09.2017261.93 кб, pdf
- Проектная декларация № 50-000461, корпус 63 07.12.20202.24 мб, pdf
- Разрешение на ввод RU50-21-15531-2020, корпус 63 18.03.202079.19 кб, pdf
- Проект договора участия в долевом строительстве, корпус 63 28.01.2020377.54 кб, pdf
- Извещение о начале строительства, корпус 63 05.08.20194.30 мб, pdf
- Заключение о степени готовности RU50-21-11052-2018, корпус 63 28.06.20191.10 мб, pdf
- Экспертиза проектной документации, корпус 63 15.03.201910.42 мб, pdf
- Схема планировочной организации земельного участка, корпус 63 31.08.2018515.96 кб, pdf
- Градостроительный план земельного участка, корпус 63 31.08.20182.97 мб, pdf
- Сведения об уплате застройщиком обязательных отчислений, корпус 63 23.07.2018689.85 кб, pdf
- Разрешение на строительство RU50-21-11052-2018, корпус 63 26.06.2018156.41 кб, pdf
- Информация о выданных заключениях о соответствии застройщика и проектной декларации требованиям 214-ФЗ 50-000461 20Исх-15638/9.1, корпус 63 04.09.2017261.93 кб, pdf
- Проектная декларация № 50-000461, корпус 62 07.12.20202.24 мб, pdf
- Разрешение на ввод RU50-21-15531-2020, корпус 62 18.03.202079.19 кб, pdf
- Проект договора участия в долевом строительстве, корпус 62 28.01.2020377.54 кб, pdf
- Извещение о начале строительства, корпус 62 05.08.20194.30 мб, pdf
- Заключение о степени готовности RU50-21-11052-2018, корпус 62 28.06.20191.10 мб, pdf
- Экспертиза проектной документации, корпус 62 15.03.201910.42 мб, pdf
- Градостроительный план земельного участка, корпус 62 31.08.20182.97 мб, pdf
- Схема планировочной организации земельного участка, корпус 62 31.08.2018515.96 кб, pdf
- Сведения об уплате застройщиком обязательных отчислений, корпус 62 23.07.2018689.85 кб, pdf
- Разрешение на строительство RU50-21-11052-2018, корпус 62 26.06.2018156.41 кб, pdf
- Информация о выданных заключениях о соответствии застройщика и проектной декларации требованиям 214-ФЗ 50-000461 20Исх-15638/9.1, корпус 62 04.09.2017261.93 кб, pdf
- Проектная декларация № 50-000461, корпус 2.2 07.12.20202.24 мб, pdf
- Разрешение на ввод RU50-21-15531-2020, корпус 2.2 18.03.202079.19 кб, pdf
- Проект договора участия в долевом строительстве, корпус 2.2 28.01.2020377.54 кб, pdf
- Извещение о начале строительства, корпус 2.2 05.08.20194.30 мб, pdf
- Заключение о степени готовности RU50-21-11052-2018, корпус 2.2 28.06.20191.10 мб, pdf
- Экспертиза проектной документации, корпус 2.2 15.03.201910.42 мб, pdf
- Градостроительный план земельного участка, корпус 2.2 31.08.20182.97 мб, pdf
- Схема планировочной организации земельного участка, корпус 2.2 31.08.2018515.96 кб, pdf
- Сведения об уплате застройщиком обязательных отчислений, корпус 2.2 23.07.2018689.85 кб, pdf
- Разрешение на строительство RU50-21-11052-2018, корпус 2.2 26.06.2018156.41 кб, pdf
- Информация о выданных заключениях о соответствии застройщика и проектной декларации требованиям 214-ФЗ 50-000461 20Исх-15638/9.1, корпус 2.2 04.09.2017261.93 кб, pdf
- Проектная декларация № 50-000461, корпус 3.1 07.12.20202.24 мб, pdf
- Разрешение на ввод RU50-21-15531-2020, корпус 3.1 18.03.202079.19 кб, pdf
- Проект договора участия в долевом строительстве, корпус 3.1 28.01.2020377.54 кб, pdf
- Извещение о начале строительства, корпус 3.1 05.08.20194.30 мб, pdf
- Заключение о степени готовности RU50-21-11052-2018, корпус 3.1 28.06.20191.10 мб, pdf
- Экспертиза проектной документации, корпус 3.1 15.03.201910.42 мб, pdf
- Градостроительный план земельного участка, корпус 3.1 31.08.20182.97 мб, pdf
- Схема планировочной организации земельного участка, корпус 3.1 31.08.2018515.96 кб, pdf
- Сведения об уплате застройщиком обязательных отчислений, корпус 3.1 23.07.2018689.85 кб, pdf
- Разрешение на строительство RU50-21-11052-2018, корпус 3.1 26.06.2018156.41 кб, pdf
- Информация о выданных заключениях о соответствии застройщика и проектной декларации требованиям 214-ФЗ 50-000461 20Исх-15638/9.1, корпус 3.1 04.09.2017261.93 кб, pdf
- Проектная декларация № 50-000461, корпус 1.1 07.12.20202.24 мб, pdf
- Разрешение на ввод RU50-21-15531-2020, корпус 1.1 18.03.202079.19 кб, pdf
- Проект договора участия в долевом строительстве, корпус 1.1 28.01.2020377.54 кб, pdf
- Извещение о начале строительства, корпус 1.1 05.08.20194.30 мб, pdf
- Заключение о степени готовности RU50-21-11052-2018, корпус 1.1 28.06.20191.10 мб, pdf
- Экспертиза проектной документации, корпус 1.1 15.03.201910.42 мб, pdf
- Градостроительный план земельного участка, корпус 1.1 31.08.20182.97 мб, pdf
- Схема планировочной организации земельного участка, корпус 1.1 31.08.2018515.96 кб, pdf
- Сведения об уплате застройщиком обязательных отчислений, корпус 1.1 23.07.2018689.85 кб, pdf
- Разрешение на строительство RU50-21-11052-2018, корпус 1.1 26.06.2018156.41 кб, pdf
- Информация о выданных заключениях о соответствии застройщика и проектной декларации требованиям 214-ФЗ 50-000461 20Исх-15638/9.1, корпус 1.1 04.09.2017261.93 кб, pdf
- Проектная декларация № 50-000461, корпус 2.1 07.12.20202.24 мб, pdf
- Разрешение на ввод RU50-21-15531-2020, корпус 2.1 18.03.202079.19 кб, pdf
- Проект договора участия в долевом строительстве, корпус 2.1 28.01.2020377.54 кб, pdf
- Извещение о начале строительства, корпус 2.1 05.08.20194.30 мб, pdf
- Заключение о степени готовности RU50-21-11052-2018, корпус 2.1 28.06.20191.10 мб, pdf
- Экспертиза проектной документации, корпус 2.1 15.03.201910.42 мб, pdf
- Градостроительный план земельного участка, корпус 2.1 31.08.20182.97 мб, pdf
- Схема планировочной организации земельного участка, корпус 2.1 31.08.2018515.96 кб, pdf
- Сведения об уплате застройщиком обязательных отчислений, корпус 2.1 23.07.2018689.85 кб, pdf
- Разрешение на строительство RU50-21-11052-2018, корпус 2.1 26.06.2018156.41 кб, pdf
- Информация о выданных заключениях о соответствии застройщика и проектной декларации требованиям 214-ФЗ 50-000461 20Исх-15638/9.1, корпус 2.1 04.09.2017261.93 кб, pdf
- Проектная декларация № 50-000461, корпус 1.2 07.12.20202.24 мб, pdf
- Разрешение на ввод RU50-21-15531-2020, корпус 1.2 18.03.202079.19 кб, pdf
- Проект договора участия в долевом строительстве, корпус 1.2 28.01.2020377.54 кб, pdf
- Извещение о начале строительства, корпус 1.2 05.08.20194.30 мб, pdf
- Заключение о степени готовности RU50-21-11052-2018, корпус 1.2 28.06.20191.10 мб, pdf
- Экспертиза проектной документации, корпус 1.2 15.03.201910.42 мб, pdf
- Градостроительный план земельного участка, корпус 1.2 31.08.20182.97 мб, pdf
- Схема планировочной организации земельного участка, корпус 1.2 31.08.2018515.96 кб, pdf
- Сведения об уплате застройщиком обязательных отчислений, корпус 1.2 23.07.2018689.85 кб, pdf
- Разрешение на строительство RU50-21-11052-2018, корпус 1.2 26.06.2018156.41 кб, pdf
- Информация о выданных заключениях о соответствии застройщика и проектной декларации требованиям 214-ФЗ 50-000461 20Исх-15638/9.1, корпус 1.2 04.09.2017261.93 кб, pdf
- Проектная декларация № 50-000461, корпус 3.2 07.12.20202.24 мб, pdf
- Разрешение на ввод RU50-21-15531-2020, корпус 3.2 18.03.202079.19 кб, pdf
- Проект договора участия в долевом строительстве, корпус 3.2 28.01.2020377.54 кб, pdf
- Извещение о начале строительства, корпус 3.2 05.08.20194.30 мб, pdf
- Заключение о степени готовности RU50-21-11052-2018, корпус 3.2 28.06.20191.10 мб, pdf
- Экспертиза проектной документации, корпус 3.2 15.03.201910.42 мб, pdf
- Схема планировочной организации земельного участка, корпус 3.2 31.08.2018515.96 кб, pdf
- Градостроительный план земельного участка, корпус 3.2 31.08.20182.97 мб, pdf
- Сведения об уплате застройщиком обязательных отчислений, корпус 3.2 23.07.2018689.85 кб, pdf
- Разрешение на строительство RU50-21-11052-2018, корпус 3.2 26.06.2018156.41 кб, pdf
- Информация о выданных заключениях о соответствии застройщика и проектной декларации требованиям 214-ФЗ 50-000461 20Исх-15638/9.1, корпус 3.2 04.09.2017261.93 кб, pdf
- Проектная декларация № 50-000461, корпус 1 07.12.20202.24 мб, pdf
- Разрешение на ввод RU50-21-15531-2020, корпус 1 18.03.202079.19 кб, pdf
- Проект договора участия в долевом строительстве, корпус 1 28.01.2020377.54 кб, pdf
- Извещение о начале строительства, корпус 1 05.08.20194.30 мб, pdf
- Заключение о степени готовности RU50-21-11052-2018, корпус 1 28.06.20191.10 мб, pdf
- Экспертиза проектной документации, корпус 1 15.03.201910.42 мб, pdf
- Градостроительный план земельного участка, корпус 1 31.08.20182.97 мб, pdf
- Схема планировочной организации земельного участка, корпус 1 31.08.2018515.96 кб, pdf
- Сведения об уплате застройщиком обязательных отчислений, корпус 1 23.07.2018689.85 кб, pdf
- Разрешение на строительство RU50-21-11052-2018, корпус 1 26.06.2018156.41 кб, pdf
- Информация о выданных заключениях о соответствии застройщика и проектной декларации требованиям 214-ФЗ 50-000461 20Исх-15638/9.1, корпус 1 04.09.2017261.93 кб, pdf
























