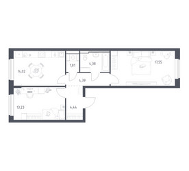
2-Комнатная квартира, 59.82 м², ID 701240
Обновлено Сегодня, 15:49
10 623 254 ₽
177 587 ₽ / м2
- Срок сдачи
- IV квартал 2025
- Застройщик
- нет данных
- Общая площадь
- 59.82 м2
- Жилая площадь
- 30.78 м2
- Площадь кухни
- 59.82 м2
- Этаж
- 2 из 17
- Отделка
- Черновая
- ID
- 701240
Описание
Двухкомнатная квартира, 59.82 м2 в ЖК Новое Видное от
Продается двухкомнатная квартира в новостройке ЖК Новое Видное за 10 623 254 рублей, находящаяся по адресу Видное, деревня Белеутово, ул Родниковая. Компания застройщик Группа "Самолет". Квартира сдается в II квартале 2026 года с черновой отделкой, в 36 минутах на машине от станции метрополитена Домодедовская. Общая площадь квартиры - 59.82 м². Этаж 2 из 17. ID квартиры на СтройкиРУ 701240, назовите его когда будете звонить.
Подробнее о ЖК Новое Видное
Особенности
Ход строительства
Документация
- Проектная декларация № 50-003749, корпус 13.2 07.06.2023375.82 кб, pdf
- Проект договора участия в долевом строительстве, корпус 13.2 06.06.2023742.65 кб, pdf
- Извещение о начале строительства, корпус 13.2 20.03.202338.42 кб, pdf
- Градостроительный план земельного участка, корпус 13.2 13.03.20231.85 мб, pdf
- Схема планировочной организации земельного участка, корпус 13.2 13.03.202324.06 мб, pdf
- Разрешение на строительство RU50-21-23476-2023, корпус 13.2 07.03.2023113.14 кб, pdf
- Экспертиза проектной документации, корпус 13.2 09.02.20231.55 мб, pdf
- Проектная декларация № 50-003750, корпус 17 07.06.2023437.15 кб, pdf
- Проект договора участия в долевом строительстве, корпус 17 06.06.2023742.65 кб, pdf
- Извещение о начале строительства, корпус 17 20.03.2023201.47 кб, pdf
- Градостроительный план земельного участка, корпус 17 15.03.20232.01 мб, pdf
- Схема планировочной организации земельного участка, корпус 17 15.03.202330.89 мб, pdf
- Разрешение на строительство RU50-21-23506-2023, корпус 17 13.03.2023110.13 кб, pdf
- Экспертиза проектной документации, корпус 17 09.02.20231.33 мб, pdf
- Проектная декларация № 50-003749, корпус 13.1 07.06.2023375.82 кб, pdf
- Проект договора участия в долевом строительстве, корпус 13.1 06.06.2023742.65 кб, pdf
- Извещение о начале строительства, корпус 13.1 20.03.202338.42 кб, pdf
- Градостроительный план земельного участка, корпус 13.1 13.03.20231.85 мб, pdf
- Схема планировочной организации земельного участка, корпус 13.1 13.03.202324.06 мб, pdf
- Разрешение на строительство RU50-21-23476-2023, корпус 13.1 07.03.2023113.14 кб, pdf
- Экспертиза проектной документации, корпус 13.1 09.02.20231.55 мб, pdf
- Проектная декларация № 50-003736, корпус 16.2 07.06.2023510.16 кб, pdf
- Проект договора участия в долевом строительстве, корпус 16.2 06.06.2023742.65 кб, pdf
- Извещение о начале строительства, корпус 16.2 27.02.2023197.00 кб, pdf
- Разрешение на строительство RU50-21-23321-2023, корпус 16.2 09.02.2023113.57 кб, pdf
- Градостроительный план земельного участка, корпус 16.2 29.01.20232.02 мб, pdf
- Схема планировочной организации земельного участка, корпус 16.2 29.01.202310.52 мб, pdf
- Экспертиза проектной документации, корпус 16.2 29.12.20221.60 мб, pdf
- Проектная декларация № 50-003736, корпус 16.1 07.06.2023510.16 кб, pdf
- Проект договора участия в долевом строительстве, корпус 16.1 06.06.2023742.65 кб, pdf
- Извещение о начале строительства, корпус 16.1 27.02.2023197.00 кб, pdf
- Разрешение на строительство RU50-21-23321-2023, корпус 16.1 09.02.2023113.57 кб, pdf
- Схема планировочной организации земельного участка, корпус 16.1 29.01.202310.52 мб, pdf
- Градостроительный план земельного участка, корпус 16.1 29.01.20232.02 мб, pdf
- Экспертиза проектной документации, корпус 16.1 29.12.20221.60 мб, pdf
- Проектная декларация № 50-003742, корпус 15 07.06.2023436.32 кб, pdf
- Проект договора участия в долевом строительстве, корпус 15 06.06.2023742.65 кб, pdf
- Извещение о начале строительства, корпус 15 27.02.2023199.23 кб, pdf
- Разрешение на строительство RU50-21-23353-2023, корпус 15 15.02.2023110.25 кб, pdf
- Схема планировочной организации земельного участка, корпус 15 29.01.202310.97 мб, pdf
- Градостроительный план земельного участка, корпус 15 29.01.20231.88 мб, pdf
- Экспертиза проектной документации, корпус 15 29.12.20221.31 мб, pdf


















