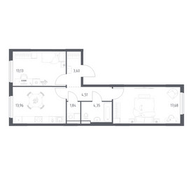
2-Комнатная квартира, 59.07 м², ID 704294
Обновлено Сегодня, 04:37
13 951 212 ₽
236 181 ₽ / м2
- Срок сдачи
- IV квартал 2024
- Застройщик
- нет данных
- Общая площадь
- 59.07 м2
- Жилая площадь
- 30.81 м2
- Площадь кухни
- 59.07 м2
- Этаж
- 12 из 17
- Отделка
- Предчистовая
- ID
- 704294
Описание
Двухкомнатная квартира, 59.07 м2 в ЖК Горки Парк от
Продается 2-комн. квартира в новостройке ЖК Горки Парк за 13 951 212 ₽, находящаяся по адресу Видное, деревня Коробово, ул Лесная. Строится компанией Группа "Самолет". Квартира сдается в 3 квартале 2026 года с предчистовой отделкой, в 18 минутах на машине от станции метрополитена Домодедовская. Общая площадь квартиры - 59.07 кв. м. Этаж 12 из 17. ID квартиры на СтройкиРУ 704294, назовите его когда будете звонить.
Подробнее о ЖК Горки Парк
Особенности
Ход строительства
Документация
- Проектная декларация № 50-003677, корпус 4.2 08.06.2023566.33 кб, pdf
- Проект договора участия в долевом строительстве, корпус 4.2 08.06.2023742.51 кб, pdf
- Извещение о начале строительства, корпус 4.2 28.11.2022196.56 кб, pdf
- Градостроительный план земельного участка, корпус 4.2 21.10.20221.93 мб, pdf
- Схема планировочной организации земельного участка, корпус 4.2 21.10.202234.56 мб, pdf
- Разрешение на строительство RU50-21-22503-2022, корпус 4.2 20.10.2022448.63 кб, pdf
- Экспертиза проектной документации, корпус 4.2 14.09.20221.40 мб, pdf
- Проектная декларация № 50-003677, корпус 4.1 08.06.2023566.33 кб, pdf
- Проект договора участия в долевом строительстве, корпус 4.1 08.06.2023742.51 кб, pdf
- Извещение о начале строительства, корпус 4.1 28.11.2022196.56 кб, pdf
- Градостроительный план земельного участка, корпус 4.1 21.10.20221.93 мб, pdf
- Схема планировочной организации земельного участка, корпус 4.1 21.10.202234.56 мб, pdf
- Разрешение на строительство RU50-21-22503-2022, корпус 4.1 20.10.2022448.63 кб, pdf
- Экспертиза проектной документации, корпус 4.1 14.09.20221.40 мб, pdf
- Проект договора участия в долевом строительстве, корпус 3.1 08.06.2023742.51 кб, pdf
- Проектная декларация № 50-003555, корпус 3.1 08.06.2023547.99 кб, pdf
- Извещение о начале строительства, корпус 3.1 10.11.2022106.71 кб, pdf
- Схема планировочной организации земельного участка, корпус 3.1 04.08.202241.55 мб, pdf
- Градостроительный план земельного участка, корпус 3.1 31.07.20222.07 мб, pdf
- Разрешение на строительство RU50-21-21967-2022, корпус 3.1 28.07.2022124.89 кб, pdf
- Экспертиза проектной документации, корпус 3.1 29.06.20221.14 мб, pdf
- Проект договора участия в долевом строительстве, корпус 3.2 08.06.2023742.51 кб, pdf
- Проектная декларация № 50-003555, корпус 3.2 08.06.2023547.99 кб, pdf
- Извещение о начале строительства, корпус 3.2 10.11.2022106.71 кб, pdf
- Схема планировочной организации земельного участка, корпус 3.2 04.08.202241.55 мб, pdf
- Градостроительный план земельного участка, корпус 3.2 31.07.20222.07 мб, pdf
- Разрешение на строительство RU50-21-21967-2022, корпус 3.2 28.07.2022124.89 кб, pdf
- Экспертиза проектной документации, корпус 3.2 29.06.20221.14 мб, pdf
- Проектная декларация № 50-003293, корпус 7.2 08.06.2023554.26 кб, pdf
- Проект договора участия в долевом строительстве, корпус 7.2 08.06.2023742.51 кб, pdf
- Схема планировочной организации земельного участка, корпус 7.2 16.12.202142.22 мб, pdf
- Извещение о начале строительства, корпус 7.2 16.12.2021204.07 кб, pdf
- Градостроительный план земельного участка, корпус 7.2 13.12.20212.08 мб, pdf
- Разрешение на строительство RU50-21-20125-2021, корпус 7.2 06.12.2021183.63 кб, pdf
- Экспертиза проектной документации, корпус 7.2 04.08.2021767.67 кб, pdf
- Проект договора участия в долевом строительстве, корпус 7.1 08.06.2023742.51 кб, pdf
- Проектная декларация № 50-003293, корпус 7.1 08.06.2023554.26 кб, pdf
- Схема планировочной организации земельного участка, корпус 7.1 16.12.202142.22 мб, pdf
- Извещение о начале строительства, корпус 7.1 16.12.2021204.07 кб, pdf
- Градостроительный план земельного участка, корпус 7.1 13.12.20212.08 мб, pdf
- Разрешение на строительство RU50-21-20125-2021, корпус 7.1 06.12.2021183.63 кб, pdf
- Экспертиза проектной документации, корпус 7.1 04.08.2021767.67 кб, pdf
- Проект договора участия в долевом строительстве, корпус 5.2 08.06.2023742.51 кб, pdf
- Проектная декларация № 50-003247, корпус 5.2 08.06.2023561.31 кб, pdf
- Извещение о начале строительства, корпус 5.2 07.10.2021218.70 кб, pdf
- Схема планировочной организации земельного участка, корпус 5.2 16.09.202132.06 мб, pdf
- Градостроительный план земельного участка, корпус 5.2 15.09.2021943.12 кб, pdf
- Разрешение на строительство RU50-21-19416-2021, корпус 5.2 14.09.2021183.00 кб, pdf
- Экспертиза проектной документации, корпус 5.2 03.09.2021552.30 кб, xml
- Проектная декларация № 50-003247, корпус 5.1 08.06.2023561.31 кб, pdf
- Проект договора участия в долевом строительстве, корпус 5.1 08.06.2023742.51 кб, pdf
- Извещение о начале строительства, корпус 5.1 07.10.2021218.70 кб, pdf
- Схема планировочной организации земельного участка, корпус 5.1 16.09.202132.06 мб, pdf
- Градостроительный план земельного участка, корпус 5.1 15.09.2021943.12 кб, pdf
- Разрешение на строительство RU50-21-19416-2021, корпус 5.1 14.09.2021183.00 кб, pdf
- Экспертиза проектной документации, корпус 5.1 03.09.2021552.30 кб, xml
- Проект договора участия в долевом строительстве, корпус 2.1 08.06.2023742.51 кб, pdf
- Проектная декларация № 50-003226, корпус 2.1 08.06.2023555.25 кб, pdf
- Извещение о начале строительства, корпус 2.1 09.09.2021208.37 кб, pdf
- Схема планировочной организации земельного участка, корпус 2.1 09.08.202149.21 мб, pdf
- Градостроительный план земельного участка, корпус 2.1 08.08.20212.26 мб, pdf
- Разрешение на строительство RU50-21-19002-2021, корпус 2.1 02.08.2021177.60 кб, pdf
- Экспертиза проектной документации, корпус 2.1 23.07.2021685.20 кб, pdf
- Проектная декларация № 50-003226, корпус 2.2 08.06.2023555.25 кб, pdf
- Проект договора участия в долевом строительстве, корпус 2.2 08.06.2023742.51 кб, pdf
- Извещение о начале строительства, корпус 2.2 09.09.2021208.37 кб, pdf
- Схема планировочной организации земельного участка, корпус 2.2 09.08.202149.21 мб, pdf
- Градостроительный план земельного участка, корпус 2.2 08.08.20212.26 мб, pdf
- Разрешение на строительство RU50-21-19002-2021, корпус 2.2 02.08.2021177.60 кб, pdf
- Экспертиза проектной документации, корпус 2.2 23.07.2021685.20 кб, pdf
- Проект договора участия в долевом строительстве, корпус 1.3 08.06.2023742.51 кб, pdf
- Проектная декларация № 50-003225, корпус 1.3 08.06.2023517.18 кб, pdf
- Извещение о начале строительства, корпус 1.3 09.09.2021202.09 кб, pdf
- Схема планировочной организации земельного участка, корпус 1.3 08.08.202145.09 мб, pdf
- Градостроительный план земельного участка, корпус 1.3 08.08.20212.26 мб, pdf
- Разрешение на строительство RU50-21-19001-2021, корпус 1.3 02.08.2021127.00 кб, pdf
- Экспертиза проектной документации, корпус 1.3 21.07.2021839.84 кб, pdf
- Проект договора участия в долевом строительстве, корпус 1.2 08.06.2023742.51 кб, pdf
- Проектная декларация № 50-003225, корпус 1.2 08.06.2023517.18 кб, pdf
- Извещение о начале строительства, корпус 1.2 09.09.2021202.09 кб, pdf
- Градостроительный план земельного участка, корпус 1.2 08.08.20212.26 мб, pdf
- Схема планировочной организации земельного участка, корпус 1.2 08.08.202145.09 мб, pdf
- Разрешение на строительство RU50-21-19001-2021, корпус 1.2 02.08.2021127.00 кб, pdf
- Экспертиза проектной документации, корпус 1.2 21.07.2021839.84 кб, pdf
- Проект договора участия в долевом строительстве, корпус 1.1 08.06.2023742.51 кб, pdf
- Проектная декларация № 50-003225, корпус 1.1 08.06.2023517.18 кб, pdf
- Извещение о начале строительства, корпус 1.1 09.09.2021202.09 кб, pdf
- Градостроительный план земельного участка, корпус 1.1 08.08.20212.26 мб, pdf
- Схема планировочной организации земельного участка, корпус 1.1 08.08.202145.09 мб, pdf
- Разрешение на строительство RU50-21-19001-2021, корпус 1.1 02.08.2021127.00 кб, pdf
- Экспертиза проектной документации, корпус 1.1 21.07.2021839.84 кб, pdf
- Проектная декларация № 50-003247, корпус 5 08.06.2023561.31 кб, pdf
- Проект договора участия в долевом строительстве, корпус 5 08.06.2023742.51 кб, pdf
- Извещение о начале строительства, корпус 5 07.10.2021218.70 кб, pdf
- Схема планировочной организации земельного участка, корпус 5 16.09.202132.06 мб, pdf
- Градостроительный план земельного участка, корпус 5 15.09.2021943.12 кб, pdf
- Разрешение на строительство RU50-21-19416-2021, корпус 5 14.09.2021183.00 кб, pdf
- Экспертиза проектной документации, корпус 5 03.09.2021552.30 кб, xml
- Проект договора участия в долевом строительстве, корпус 4 08.06.2023742.51 кб, pdf
- Проектная декларация № 50-003677, корпус 4 08.06.2023566.33 кб, pdf
- Извещение о начале строительства, корпус 4 28.11.2022196.56 кб, pdf
- Схема планировочной организации земельного участка, корпус 4 21.10.202234.56 мб, pdf
- Градостроительный план земельного участка, корпус 4 21.10.20221.93 мб, pdf
- Разрешение на строительство RU50-21-22503-2022, корпус 4 20.10.2022448.63 кб, pdf
- Экспертиза проектной документации, корпус 4 14.09.20221.40 мб, pdf
- Проектная декларация № 50-003555, корпус 3 08.06.2023547.99 кб, pdf
- Проект договора участия в долевом строительстве, корпус 3 08.06.2023742.51 кб, pdf
- Извещение о начале строительства, корпус 3 10.11.2022106.71 кб, pdf
- Схема планировочной организации земельного участка, корпус 3 04.08.202241.55 мб, pdf
- Градостроительный план земельного участка, корпус 3 31.07.20222.07 мб, pdf
- Разрешение на строительство RU50-21-21967-2022, корпус 3 28.07.2022124.89 кб, pdf
- Экспертиза проектной документации, корпус 3 29.06.20221.14 мб, pdf
- Проект договора участия в долевом строительстве, корпус 2 08.06.2023742.51 кб, pdf
- Проектная декларация № 50-003226, корпус 2 08.06.2023555.25 кб, pdf
- Извещение о начале строительства, корпус 2 09.09.2021208.37 кб, pdf
- Схема планировочной организации земельного участка, корпус 2 09.08.202149.21 мб, pdf
- Градостроительный план земельного участка, корпус 2 08.08.20212.26 мб, pdf
- Разрешение на строительство RU50-21-19002-2021, корпус 2 02.08.2021177.60 кб, pdf
- Экспертиза проектной документации, корпус 2 23.07.2021685.20 кб, pdf
- Проектная декларация № 50-003225, корпус 1 08.06.2023517.18 кб, pdf
- Проект договора участия в долевом строительстве, корпус 1 08.06.2023742.51 кб, pdf
- Извещение о начале строительства, корпус 1 09.09.2021202.09 кб, pdf
- Градостроительный план земельного участка, корпус 1 08.08.20212.26 мб, pdf
- Схема планировочной организации земельного участка, корпус 1 08.08.202145.09 мб, pdf
- Разрешение на строительство RU50-21-19001-2021, корпус 1 02.08.2021127.00 кб, pdf
- Экспертиза проектной документации, корпус 1 21.07.2021839.84 кб, pdf





















