3-Комнатная квартира, 75.7 м², ID 731299
Обновлено Вчера, 19:13
21 134 154 ₽
279 183 ₽ / м2
- Срок сдачи
- IV квартал 2024
- Застройщик
- нет данных
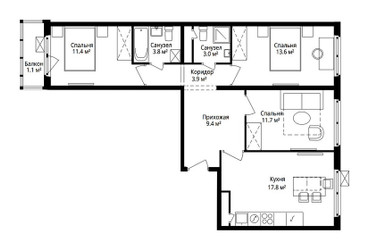
- Общая площадь
- 75.7 м2
- Жилая площадь
- 69.7 м2
- Площадь кухни
- 75.7 м2
- Этаж
- 17 из 18
- Отделка
- Чистовая
- ID
- 731299
Описание
Трехкомнатная квартира, 75.7 м2 в ЖК Эко Видное 2.0 от
Продается трехкомнатная квартира в новостройке ЖК Эко Видное 2.0 стоимостью 21 134 154 р, по адресу Видное, кв-л Центральный. Застройщик дома MR Group. Квартира сдается в IV квартале 2024 года с чистовой отделкой, в 20 минутах пешком от станции метро Домодедовская. Общая площадь квартиры - 75.7 м². Этаж 17 из 17. ID квартиры на СтройкиРУ 731299, скажите его когда будете звонить.





























