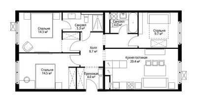
3-Комнатная квартира, 80.9 м², ID 731297
Обновлено Сегодня, 04:30
20 629 420 ₽
254 999 ₽ / м2
- Срок сдачи
- IV квартал 2024
- Застройщик
- нет данных
- Общая площадь
- 80.9 м2
- Жилая площадь
- 74.9 м2
- Площадь кухни
- 80.9 м2
- Этаж
- 17 из 18
- Отделка
- Предчистовая
- ID
- 731297
Описание
Трехкомнатная квартира, 80.9 м2 в ЖК Эко Видное 2.0 от
Продается трехкомнатная квартира в новостройке ЖК Эко Видное 2.0 по цене 20 629 420 р, расположенная по адресу Видное, кв-л Центральный. Застройщик дома MR Group. Квартира сдается в III квартале 2024 года с предчистовой отделкой, в 20 минутах пешком от метро Домодедовская. Общая площадь квартиры - 80.9 м². Этаж 17 из 17. ID квартиры на СтройкиРУ 731297, сообщите его когда будете звонить.





























