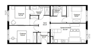
3-Комнатная квартира, 80.8 м², ID 731293
Обновлено Сегодня, 04:30
20 231 836 ₽
250 394 ₽ / м2
- Срок сдачи
- IV квартал 2024
- Застройщик
- нет данных
- Общая площадь
- 80.8 м2
- Жилая площадь
- 74.8 м2
- Площадь кухни
- 80.8 м2
- Этаж
- 12 из 18
- Отделка
- Предчистовая
- ID
- 731293
Описание
Трехкомнатная квартира, 80.8 м2 в ЖК Эко Видное 2.0 от
Продается трехкомнатная квартира в новостройке ЖК Эко Видное 2.0 по цене 20 231 836 рублей, расположенная по адресу Видное, кв-л Центральный. Компания застройщик MR Group. Квартира сдается в III квартале 2024 года с предчистовой отделкой, в 20 минутах пешком от метро Домодедовская. Общая площадь квартиры - 80.8 м². Этаж 12 из 17. ID квартиры на СтройкиРУ 731293, сообщите его когда будете звонить.





























