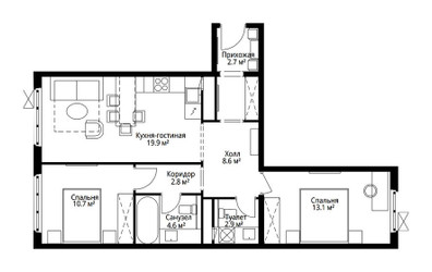
2-Комнатная квартира, 65.3 м², ID 731283
Обновлено Вчера, 14:59
18 394 422 ₽
281 691 ₽ / м2
- Срок сдачи
- IV квартал 2024
- Застройщик
- нет данных
- Общая площадь
- 65.3 м2
- Жилая площадь
- 59.3 м2
- Площадь кухни
- 65.3 м2
- Этаж
- 9 из 18
- Отделка
- Чистовая
- ID
- 731283
Описание
Двухкомнатная квартира, 65.3 м2 в ЖК Эко Видное 2.0 от
Продается двухкомнатная квартира в новостройке ЖК Эко Видное 2.0 за 18 394 422 рублей, находящаяся по адресу Видное, кв-л Центральный. Компания застройщик MR Group. Квартира сдается в IV квартале 2024 года с чистовой отделкой, в 20 минутах пешком от станции метрополитена Домодедовская. Общая площадь квартиры - 65.3 м². Этаж 9 из 17. ID квартиры на СтройкиРУ 731283, назовите его когда будете звонить.





























