3-Комнатная квартира, 79.92 м², ID 650513
Обновлено Сегодня, 05:47
1 из 3
9 990 000 ₽
125 000 ₽ / м2
- Срок сдачи
- I квартал 2027
- Застройщик
- нет данных
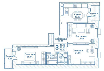
- Общая площадь
- 79.92 м2
- Жилая площадь
- 45.78 м2
- Площадь кухни
- 13.27 м2
- Высота потолков
- 2.8 м
- Этаж
- 7 из 7
- Корпус
- 11
- Отделка
- Черновая
- Санузел
- Раздельный
- ID
- 650513
Описание
Трехкомнатная квартира, 79.92 м2 в ЖК Новоград Монино от
Продается 3-комн. квартира в новостройке ЖК Новоград Монино стоимостью 9 990 000 ₽, по адресу Щёлково, платформа Монино. Строится компанией СЗ Аверус. Квартира сдается в 1 квартале 2027 года с черновой отделкой, в 65 минутах на машине от станции метро Щёлковская. Общая площадь квартиры - 79.92 кв. м. Этаж 7. ID квартиры на СтройкиРУ 650513, скажите его когда будете звонить.
Подробнее о ЖК Новоград Монино
“Новоград Монино” - жилой комплекс комфорт-класса от специального застройщика “Аверус” в Щелково.
ЖК "Новоград Монино" находится в поселке Монино Московской области. Первая очередь уже сдана, она состоит из трёх монолитно-кирпичных домов, высотой 7 этажей, рассчитанных на 466 квартир.
Инфраструктура и благоустройство
До станции метро “Щелковская” - 65 минут на транспорте
Для автомобилистов предусмотрена крытая парковка и многоуровневый паркинг на 710 и 3 866 машиномест соответственно
Широкий выбор 1, 2-х и 3-х комнатных планировок, в которых отведены места для размещения встроенных шкафов и гардеробных комнат. Площадь 1 комнатных квартир от 33,47 м2, в 4-х комнатных от 78,24 м2. На первых этажах жилых домов находятся коммерческие помещения.
Страница ЖК >>




