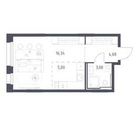
Квартира-студия, 29.1 м², ID 699957
Обновлено Сегодня, 03:42
11 082 124 ₽
380 829 ₽ / м2
Описание
Студия квартира, 29.1 м2 в ЖК Заречье Парк от
Продается квартира-студия в новостройке ЖК Заречье Парк по цене 11 082 124 ₽, расположенная по адресу Одинцово, рп Заречье, ул Луговая. Строится компанией Группа "Самолет". Квартира сдается в 2 квартале 2026 года с черновой отделкой, в 15 минутах на машине от метро Озерная. Общая площадь квартиры - 29.1 кв. м. Этаж 4 из 9. ID квартиры на СтройкиРУ 699957, сообщите его когда будете звонить.
Подробнее о ЖК Заречье Парк
Особенности
Ход строительства
Документация
- Проектная декларация № 33-000449, корпус 3.2 09.06.2023396.70 кб, pdf
- Экспертиза проектной документации, корпус 3.2 12.12.20226.04 мб, pdf
- Схема планировочной организации земельного участка, корпус 3.2 12.05.202215.07 мб, pdf
- Проект договора участия в долевом строительстве, корпус 3.2 22.04.20221.17 мб, pdf
- Извещение о начале строительства, корпус 3.2 09.05.2021740.58 кб, pdf
- Информация о выданных заключениях о соответствии застройщика и проектной декларации требованиям 214-ФЗ 33-000449 ЗОС/041/33-000449, корпус 3.2 29.04.202136.27 кб, pdf
- Градостроительный план земельного участка, корпус 3.2 28.11.20204.09 мб, pdf
- Разрешение на строительство 33-000-58-2018, корпус 3.2 21.06.20182.39 мб, pdf
- Проектная декларация № 33-000449, корпус 3.1 09.06.2023396.70 кб, pdf
- Экспертиза проектной документации, корпус 3.1 12.12.20226.04 мб, pdf
- Схема планировочной организации земельного участка, корпус 3.1 12.05.202215.07 мб, pdf
- Проект договора участия в долевом строительстве, корпус 3.1 22.04.20221.17 мб, pdf
- Извещение о начале строительства, корпус 3.1 09.05.2021740.58 кб, pdf
- Информация о выданных заключениях о соответствии застройщика и проектной декларации требованиям 214-ФЗ 33-000449 ЗОС/041/33-000449, корпус 3.1 29.04.202136.27 кб, pdf
- Градостроительный план земельного участка, корпус 3.1 28.11.20204.09 мб, pdf
- Разрешение на строительство 33-000-58-2018, корпус 3.1 21.06.20182.39 мб, pdf
- Проектная декларация № 50-003038, корпус 1 10.11.2022416.27 кб, pdf
- Разрешение на ввод RU50-20-22605-2022, корпус 1 07.11.2022268.74 кб, pdf
- Проект договора участия в долевом строительстве, корпус 1 08.09.2022384.09 кб, pdf
- Извещение о начале строительства, корпус 1 12.01.202152.93 кб, pdf
- Информация о выданных заключениях о соответствии застройщика и проектной декларации требованиям 214-ФЗ 50-003038 ЗОС/178/50-003038, корпус 1 29.12.2020741.63 кб, pdf
- Разрешение на строительство RU50-20-17264-2020, корпус 1 22.12.202068.85 кб, pdf
- Схема планировочной организации земельного участка, корпус 1 09.12.20206.24 мб, pdf
- Градостроительный план земельного участка, корпус 1 09.12.20202.95 мб, pdf
- Экспертиза проектной документации, корпус 1 07.12.2020458.52 кб, pdf
- Проектная декларация № 50-003038, корпус 2.1 10.11.2022416.27 кб, pdf
- Разрешение на ввод RU50-20-22605-2022, корпус 2.1 07.11.2022268.74 кб, pdf
- Проект договора участия в долевом строительстве, корпус 2.1 08.09.2022384.09 кб, pdf
- Извещение о начале строительства, корпус 2.1 12.01.202152.93 кб, pdf
- Информация о выданных заключениях о соответствии застройщика и проектной декларации требованиям 214-ФЗ 50-003038 ЗОС/178/50-003038, корпус 2.1 29.12.2020741.63 кб, pdf
- Разрешение на строительство RU50-20-17264-2020, корпус 2.1 22.12.202068.85 кб, pdf
- Градостроительный план земельного участка, корпус 2.1 09.12.20202.95 мб, pdf
- Схема планировочной организации земельного участка, корпус 2.1 09.12.20206.24 мб, pdf
- Экспертиза проектной документации, корпус 2.1 07.12.2020458.52 кб, pdf
- Проектная декларация № 50-003038, корпус 1.1 10.11.2022416.27 кб, pdf
- Разрешение на ввод RU50-20-22605-2022, корпус 1.1 07.11.2022268.74 кб, pdf
- Проект договора участия в долевом строительстве, корпус 1.1 08.09.2022384.09 кб, pdf
- Извещение о начале строительства, корпус 1.1 12.01.202152.93 кб, pdf
- Информация о выданных заключениях о соответствии застройщика и проектной декларации требованиям 214-ФЗ 50-003038 ЗОС/178/50-003038, корпус 1.1 29.12.2020741.63 кб, pdf
- Разрешение на строительство RU50-20-17264-2020, корпус 1.1 22.12.202068.85 кб, pdf
- Градостроительный план земельного участка, корпус 1.1 09.12.20202.95 мб, pdf
- Схема планировочной организации земельного участка, корпус 1.1 09.12.20206.24 мб, pdf
- Экспертиза проектной документации, корпус 1.1 07.12.2020458.52 кб, pdf






















