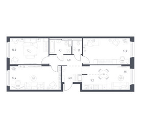
3-Комнатная квартира, 79.2 м², ID 706125
Обновлено Вчера, 14:26
25 603 624 ₽
323 278 ₽ / м2
- Срок сдачи
- II квартал 2025
- Застройщик
- нет данных
- Общая площадь
- 79.2 м2
- Жилая площадь
- 59.9 м2
- Площадь кухни
- 79.2 м2
- Этаж
- 14 из 17
- Отделка
- Чистовая
- ID
- 706125
Описание
Трехкомнатная квартира, 79.2 м2 в ЖК Мытищи Парк от
Продается 3-комн. квартира в новостройке ЖК Мытищи Парк по цене 25 603 624 ₽, расположенная по адресу Мытищи, ул Силикатная, к 1 стр 1. Строится компанией Группа "Самолет". Квартира сдается в 2 квартале 2025 года с чистовой отделкой, в 25 минутах на машине от метро Бабушкинская. Общая площадь квартиры - 79.2 кв. м. Этаж 14 из 17. ID квартиры на СтройкиРУ 706125, сообщите его когда будете звонить.
Подробнее о ЖК Мытищи Парк
Особенности
Ход строительства
Документация
- Проектная декларация № 50-003277, корпус 3 06.06.2023805.59 кб, pdf
- Проект договора участия в долевом строительстве, корпус 3 06.06.2023189.66 кб, pdf
- Извещение о начале строительства, корпус 3 22.11.202167.24 кб, pdf
- Разрешение на строительство RU50-12-19973-2021, корпус 3 17.11.2021487.73 кб, pdf
- Схема планировочной организации земельного участка, корпус 3 08.08.20215.61 мб, pdf
- Градостроительный план земельного участка, корпус 3 22.07.20212.83 мб, pdf
- Экспертиза проектной документации, корпус 3 15.07.2021682.28 кб, pdf
- Проектная декларация № 50-003171, корпус 2 05.05.2023681.76 кб, pdf
- Разрешение на ввод RU50-12-23913-2023, корпус 2 05.05.2023102.52 кб, pdf
- Проект договора участия в долевом строительстве, корпус 2 02.08.2022180.01 кб, pdf
- Экспертиза проектной документации, корпус 2 14.01.2022271.56 кб, pdf
- Извещение о начале строительства, корпус 2 01.06.202124.81 кб, pdf
- Информация о выданных заключениях о соответствии застройщика и проектной декларации требованиям 214-ФЗ 50-003171 ЗОС/256/50-003171, корпус 2 31.05.2021139.62 кб, pdf
- Разрешение на строительство RU50-12-18306-2021, корпус 2 30.04.2021272.94 кб, pdf
- Схема планировочной организации земельного участка, корпус 2 22.04.202127.91 мб, pdf
- Градостроительный план земельного участка, корпус 2 19.04.20212.86 мб, pdf
- Проектная декларация № 50-003039, корпус 1 24.03.2023657.52 кб, pdf
- Разрешение на ввод RU50-12-23385-2023, корпус 1 20.02.2023104.13 кб, pdf
- Экспертиза проектной документации, корпус 1 23.11.2022672.55 кб, pdf
- Проект договора участия в долевом строительстве, корпус 1 02.08.2022180.02 кб, pdf
- Градостроительный план земельного участка, корпус 1 11.04.20222.37 мб, pdf
- Извещение о начале строительства, корпус 1 09.02.202133.52 кб, pdf
- Информация о выданных заключениях о соответствии застройщика и проектной декларации требованиям 214-ФЗ 50-003039 ЗОС/177/50-003039, корпус 1 29.12.2020741.75 кб, pdf
- Разрешение на строительство RU50-12-17265-2020, корпус 1 22.12.2020551.61 кб, pdf
- Схема планировочной организации земельного участка, корпус 1 16.12.202010.20 мб, pdf





















